Информационная система
«Ёшкин Кот»

Скачать базу одним архивом
Скачать обновления
История создания базы
Карта сайта

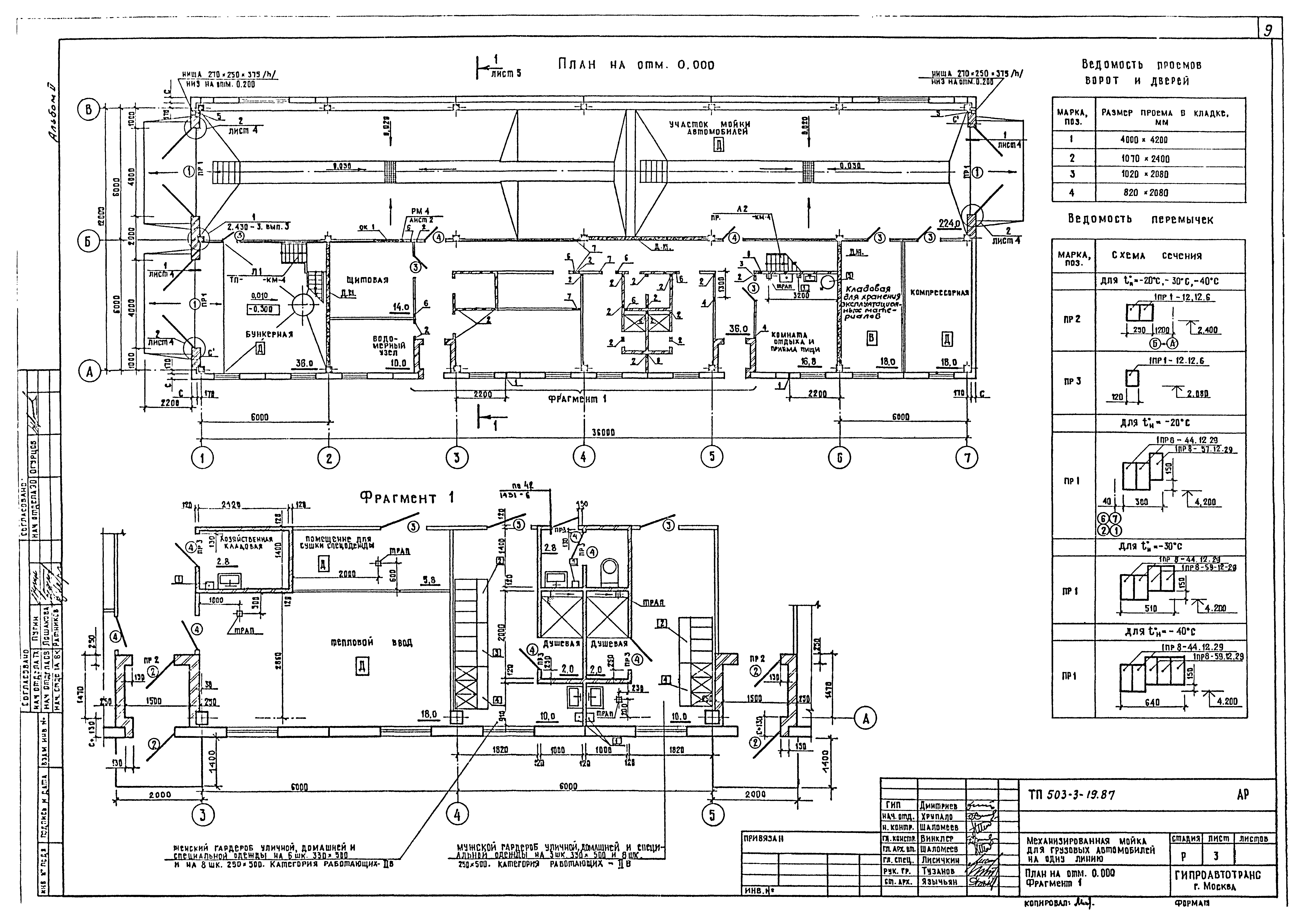
Скачать Типовой проект 503-3-19.87 Альбом II. Технологические решения. Архитектурно-строительные решения. Конструкции железобетонные и металлические. Внутренний водопровод и канализация. Отопление и вентиляция. Силовое электрооборудование. Электрическое освещение. Автоматизация. Связь и сигнализация

Дата актуализации: 10.08.2017

Типовой проект 503-3-19.87

Альбом II. Технологические решения. Архитектурно-строительные решения. Конструкции железобетонные и металлические. Внутренний водопровод и канализация. Отопление и вентиляция. Силовое электрооборудование. Электрическое освещение. Автоматизация. Связь и сигнализация

Обозначение: Типовой проект 503-3-19.87
Обозначение англ: 503-3-19.87
Статус:действует
Название рус.:Альбом II. Технологические решения. Архитектурно-строительные решения. Конструкции железобетонные и металлические. Внутренний водопровод и канализация. Отопление и вентиляция. Силовое электрооборудование. Электрическое освещение. Автоматизация. Связь и сигнализация
Дата добавления в базу:01.02.2017
Дата актуализации:05.05.2017
Разработан: Гипроавтотранс
Утверждён:25.07.1986 Министерство автомобильного транспорта РСФСР (17)
Издан: ЦИТП Госстроя СССР (CITP, Gosstroy (USSR) 1988 г. )
Расположен в:Техническая документация Строительство Справочные документы Типовые строительные конструкции, изделия и узлы Общероссийский строительный каталог Промышленные предприятия, здания и сооружения Предприятия, здания и сооружения транспорта Транспорт автомобильный Мойки и профилактории для грузовых и легковых автомобилей и автобусов
Типовой проект 503-3-19.87Типовой проект 503-3-19.87Типовой проект 503-3-19.87Типовой проект 503-3-19.87Типовой проект 503-3-19.87Типовой проект 503-3-19.87Типовой проект 503-3-19.87Типовой проект 503-3-19.87Типовой проект 503-3-19.87Типовой проект 503-3-19.87Типовой проект 503-3-19.87Типовой проект 503-3-19.87Типовой проект 503-3-19.87Типовой проект 503-3-19.87Типовой проект 503-3-19.87Типовой проект 503-3-19.87Типовой проект 503-3-19.87Типовой проект 503-3-19.87Типовой проект 503-3-19.87Типовой проект 503-3-19.87Типовой проект 503-3-19.87Типовой проект 503-3-19.87Типовой проект 503-3-19.87Типовой проект 503-3-19.87Типовой проект 503-3-19.87Типовой проект 503-3-19.87Типовой проект 503-3-19.87Типовой проект 503-3-19.87Типовой проект 503-3-19.87Типовой проект 503-3-19.87Типовой проект 503-3-19.87Типовой проект 503-3-19.87Типовой проект 503-3-19.87Типовой проект 503-3-19.87Типовой проект 503-3-19.87Типовой проект 503-3-19.87Типовой проект 503-3-19.87Типовой проект 503-3-19.87Типовой проект 503-3-19.87Типовой проект 503-3-19.87Типовой проект 503-3-19.87Типовой проект 503-3-19.87Типовой проект 503-3-19.87Типовой проект 503-3-19.87Типовой проект 503-3-19.87Типовой проект 503-3-19.87Типовой проект 503-3-19.87Типовой проект 503-3-19.87Типовой проект 503-3-19.87Типовой проект 503-3-19.87Типовой проект 503-3-19.87Типовой проект 503-3-19.87Типовой проект 503-3-19.87Типовой проект 503-3-19.87Типовой проект 503-3-19.87Типовой проект 503-3-19.87Типовой проект 503-3-19.87Типовой проект 503-3-19.87Типовой проект 503-3-19.87Типовой проект 503-3-19.87Типовой проект 503-3-19.87Типовой проект 503-3-19.87Типовой проект 503-3-19.87Типовой проект 503-3-19.87Типовой проект 503-3-19.87Типовой проект 503-3-19.87Типовой проект 503-3-19.87Типовой проект 503-3-19.87Типовой проект 503-3-19.87Типовой проект 503-3-19.87Типовой проект 503-3-19.87Типовой проект 503-3-19.87Типовой проект 503-3-19.87Типовой проект 503-3-19.87Типовой проект 503-3-19.87Типовой проект 503-3-19.87Типовой проект 503-3-19.87Типовой проект 503-3-19.87Типовой проект 503-3-19.87Типовой проект 503-3-19.87Типовой проект 503-3-19.87Типовой проект 503-3-19.87Типовой проект 503-3-19.87Типовой проект 503-3-19.87Типовой проект 503-3-19.87Типовой проект 503-3-19.87Типовой проект 503-3-19.87Типовой проект 503-3-19.87Типовой проект 503-3-19.87Типовой проект 503-3-19.87

© 2013 Ёшкин Кот :-) Карта сайта