Информационная система
«Ёшкин Кот»

Скачать базу одним архивом
Скачать обновления
История создания базы
Карта сайта

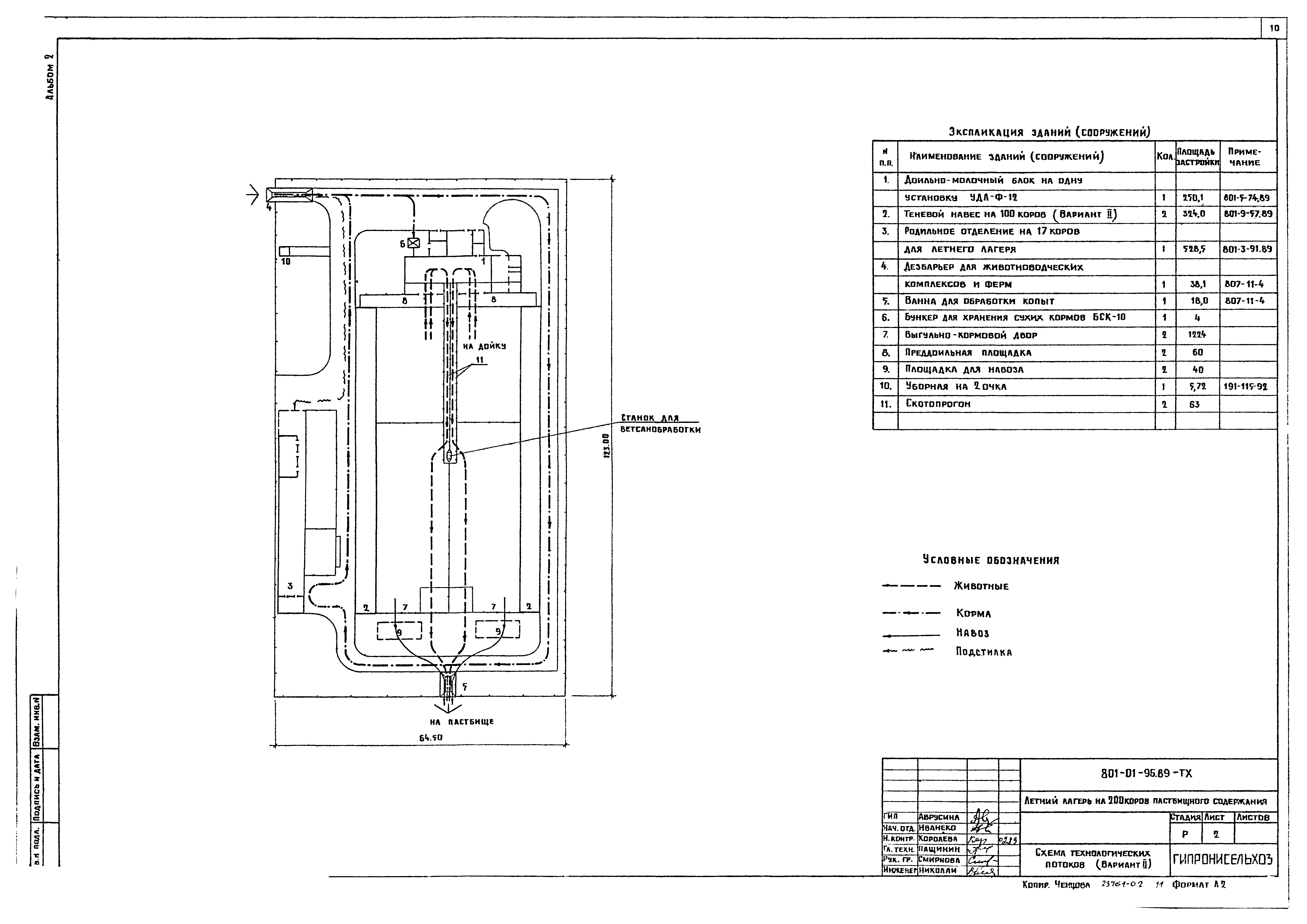
Скачать Типовые материалы для проектирования 801-01-95.89 Альбом II. Схемы генеральных планов. Сводные планы инженерных сетей. Стройгенпланы. Схемы технологических потоков. Строительные характеристики зданий и сооружений

Дата актуализации: 10.08.2017

Типовые материалы для проектирования 801-01-95.89

Альбом II. Схемы генеральных планов. Сводные планы инженерных сетей. Стройгенпланы. Схемы технологических потоков. Строительные характеристики зданий и сооружений

Обозначение: Типовые материалы для проектирования 801-01-95.89
Обозначение англ: 801-01-95.89
Статус:не определен законодательством
Название рус.:Альбом II. Схемы генеральных планов. Сводные планы инженерных сетей. Стройгенпланы. Схемы технологических потоков. Строительные характеристики зданий и сооружений
Дата добавления в базу:01.02.2017
Дата актуализации:05.05.2017
Дата введения:01.03.1989
Разработан: ФГНУ НПЦ Гипронисельхоз
Утверждён:17.02.1989 Госагропром СССР (USSR Gosagroprom 805-42/15)
Издан: ЦИТП Госстроя СССР (CITP, Gosstroy (USSR) 1990 г. )
Расположен в:Техническая документация Строительство Справочные документы Типовые строительные конструкции, изделия и узлы Общероссийский строительный каталог Сельскохозяйственные предприятия, здания и сооружения Предприятия, здания и сооружения для крупного рогатого скота Комплексы и фермы Производство молока
Типовые материалы для проектирования 801-01-95.89Типовые материалы для проектирования 801-01-95.89Типовые материалы для проектирования 801-01-95.89Типовые материалы для проектирования 801-01-95.89Типовые материалы для проектирования 801-01-95.89Типовые материалы для проектирования 801-01-95.89Типовые материалы для проектирования 801-01-95.89Типовые материалы для проектирования 801-01-95.89Типовые материалы для проектирования 801-01-95.89Типовые материалы для проектирования 801-01-95.89Типовые материалы для проектирования 801-01-95.89Типовые материалы для проектирования 801-01-95.89Типовые материалы для проектирования 801-01-95.89

© 2013 Ёшкин Кот :-) Карта сайта