Информационная система
«Ёшкин Кот»

Скачать базу одним архивом
Скачать обновления
История создания базы
Карта сайта

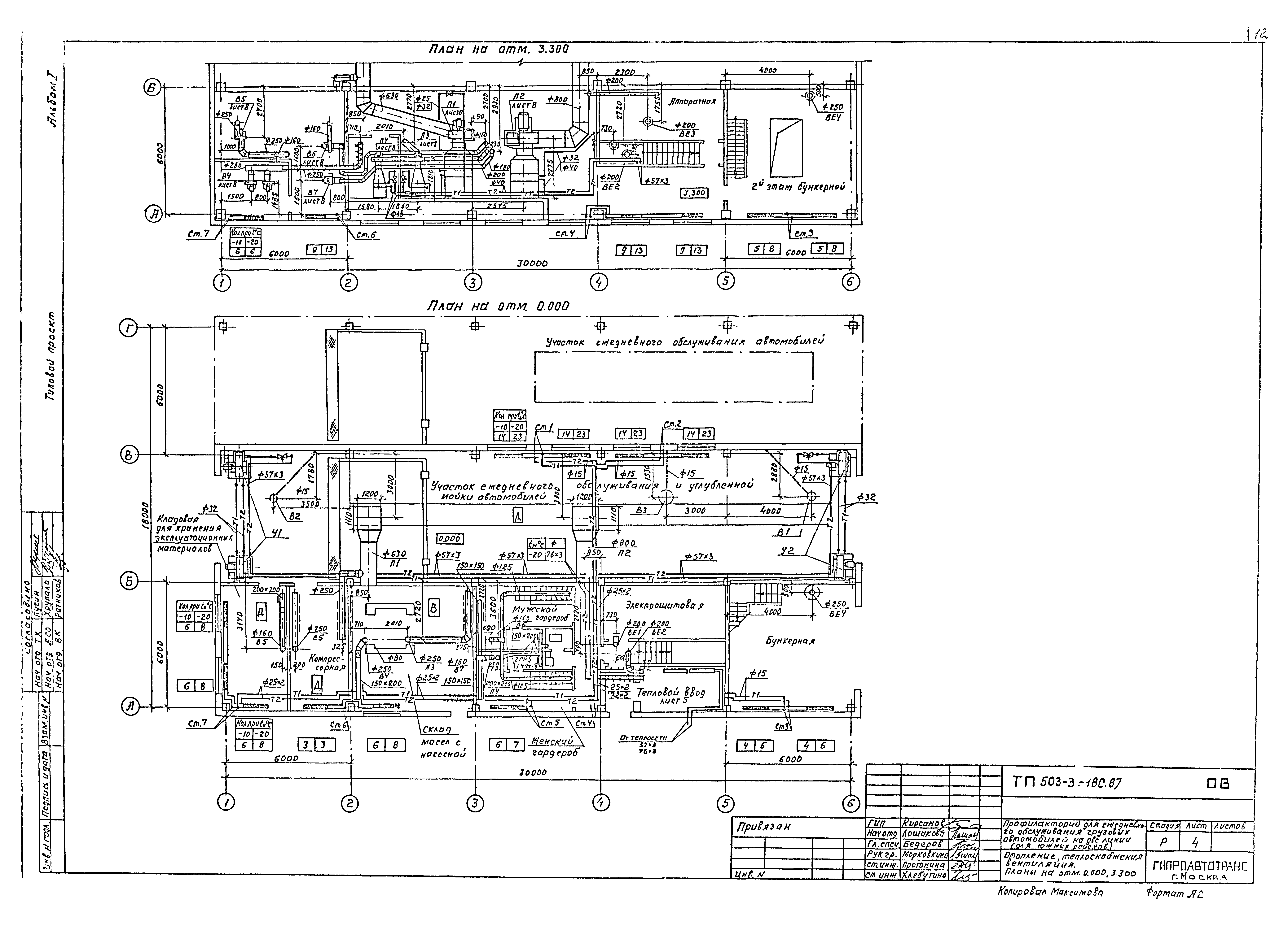
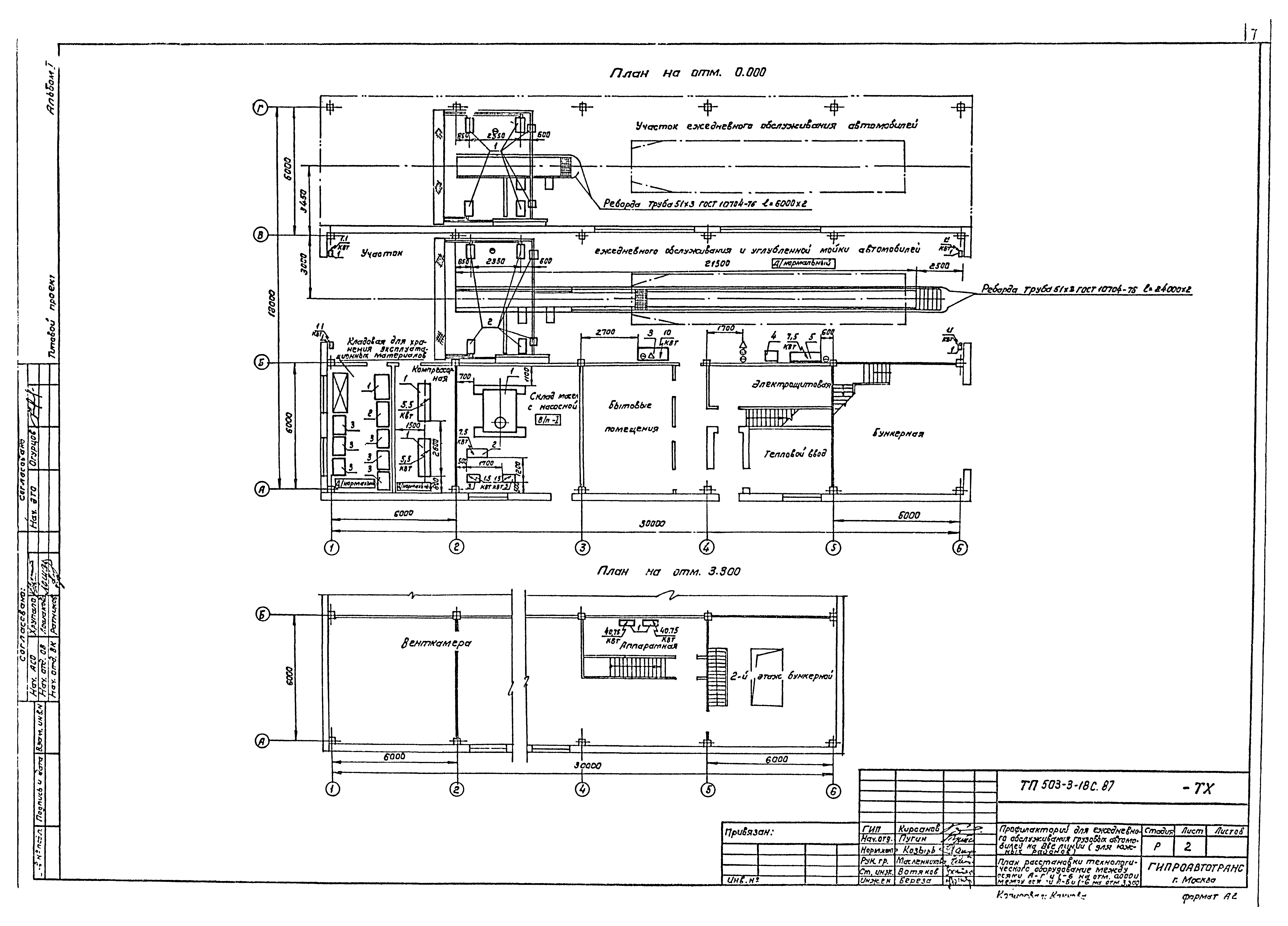
Скачать Типовой проект 503-3-18с.87 Альбом I. Общая пояснительная записка. Технология производства. Отопление и вентиляция. Внутренний водопровод и канализация

Дата актуализации: 10.08.2017

Типовой проект 503-3-18с.87

Альбом I. Общая пояснительная записка. Технология производства. Отопление и вентиляция. Внутренний водопровод и канализация

Обозначение: Типовой проект 503-3-18с.87
Обозначение англ: 503-3-18с.87
Статус:не определен законодательством
Название рус.:Альбом I. Общая пояснительная записка. Технология производства. Отопление и вентиляция. Внутренний водопровод и канализация
Дата добавления в базу:01.02.2017
Дата актуализации:05.05.2017
Дата введения:01.04.1986
Разработан: Гипроавтотранс
Утверждён:01.04.1986 Минавтотранс РСФСР (Russian Federation Minavtotrans 4)
Издан: ЦИТП Госстроя СССР (CITP, Gosstroy (USSR) 1988 г. )
Расположен в:Техническая документация Строительство Справочные документы Типовые строительные конструкции, изделия и узлы Общероссийский строительный каталог Промышленные предприятия, здания и сооружения Предприятия, здания и сооружения транспорта Транспорт автомобильный Мойки и профилактории для грузовых и легковых автомобилей и автобусов
Нормативные ссылки:
Типовой проект 503-3-18с.87Типовой проект 503-3-18с.87Типовой проект 503-3-18с.87Типовой проект 503-3-18с.87Типовой проект 503-3-18с.87Типовой проект 503-3-18с.87Типовой проект 503-3-18с.87Типовой проект 503-3-18с.87Типовой проект 503-3-18с.87Типовой проект 503-3-18с.87Типовой проект 503-3-18с.87Типовой проект 503-3-18с.87Типовой проект 503-3-18с.87Типовой проект 503-3-18с.87Типовой проект 503-3-18с.87Типовой проект 503-3-18с.87Типовой проект 503-3-18с.87Типовой проект 503-3-18с.87Типовой проект 503-3-18с.87Типовой проект 503-3-18с.87Типовой проект 503-3-18с.87Типовой проект 503-3-18с.87Типовой проект 503-3-18с.87Типовой проект 503-3-18с.87Типовой проект 503-3-18с.87Типовой проект 503-3-18с.87

© 2013 Ёшкин Кот :-) Карта сайта