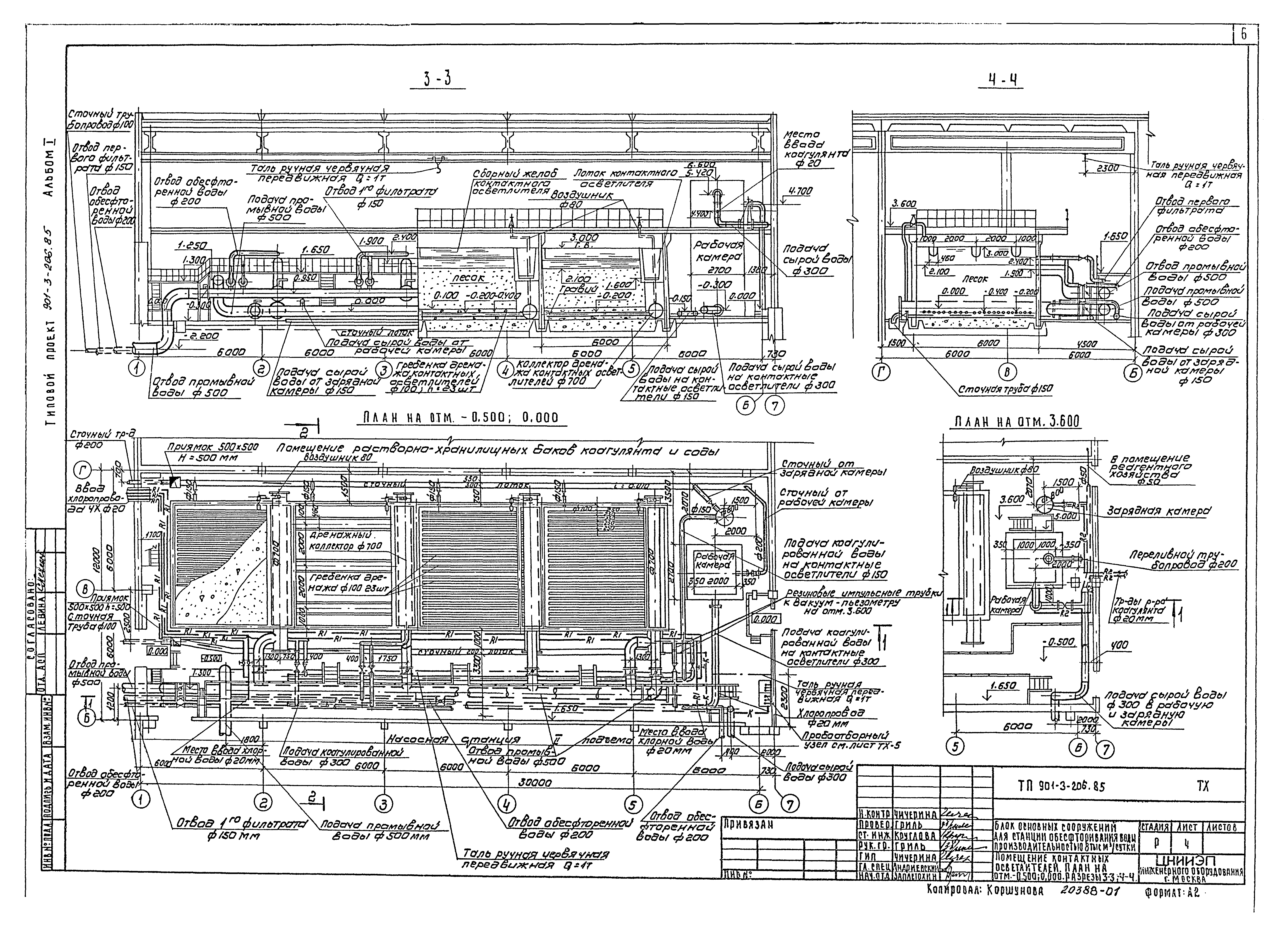
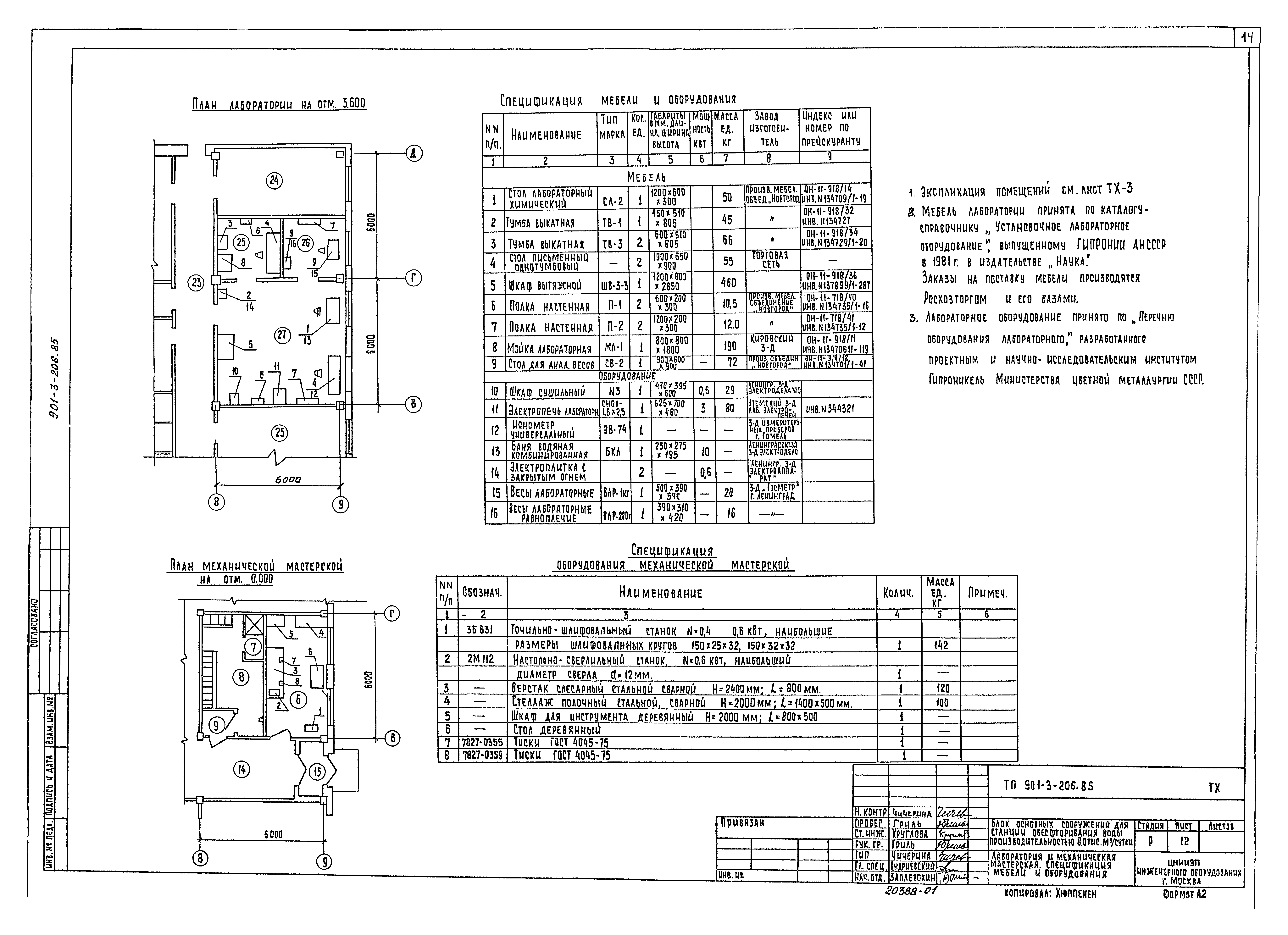
Скачать Типовой проект 901-3-206.85 Альбом I. Технологическая, санитарно-техническая части и нестандартизированное оборудованиеДата актуализации: 10.08.2017 Типовой проект 901-3-206.85
Альбом I. Технологическая, санитарно-техническая части и нестандартизированное оборудованиеОбозначение: | Типовой проект 901-3-206.85 | Обозначение англ: | 901-3-206.85 | Статус: | не определен законодательством | Название рус.: | Альбом I. Технологическая, санитарно-техническая части и нестандартизированное оборудование | Дата добавления в базу: | 01.02.2017 | Дата актуализации: | 05.05.2017 | Дата введения: | 21.12.1984 | Разработан: | ЦНИИЭП инженерного оборудования
| Утверждён: | 22.07.1981 Госгражданстрой (Gosgrazhdanstroy 219)
| Издан: | ЦИТП Госстроя СССР (CITP, Gosstroy (USSR) 1985 г. )
| Расположен в: |
|
                                
|