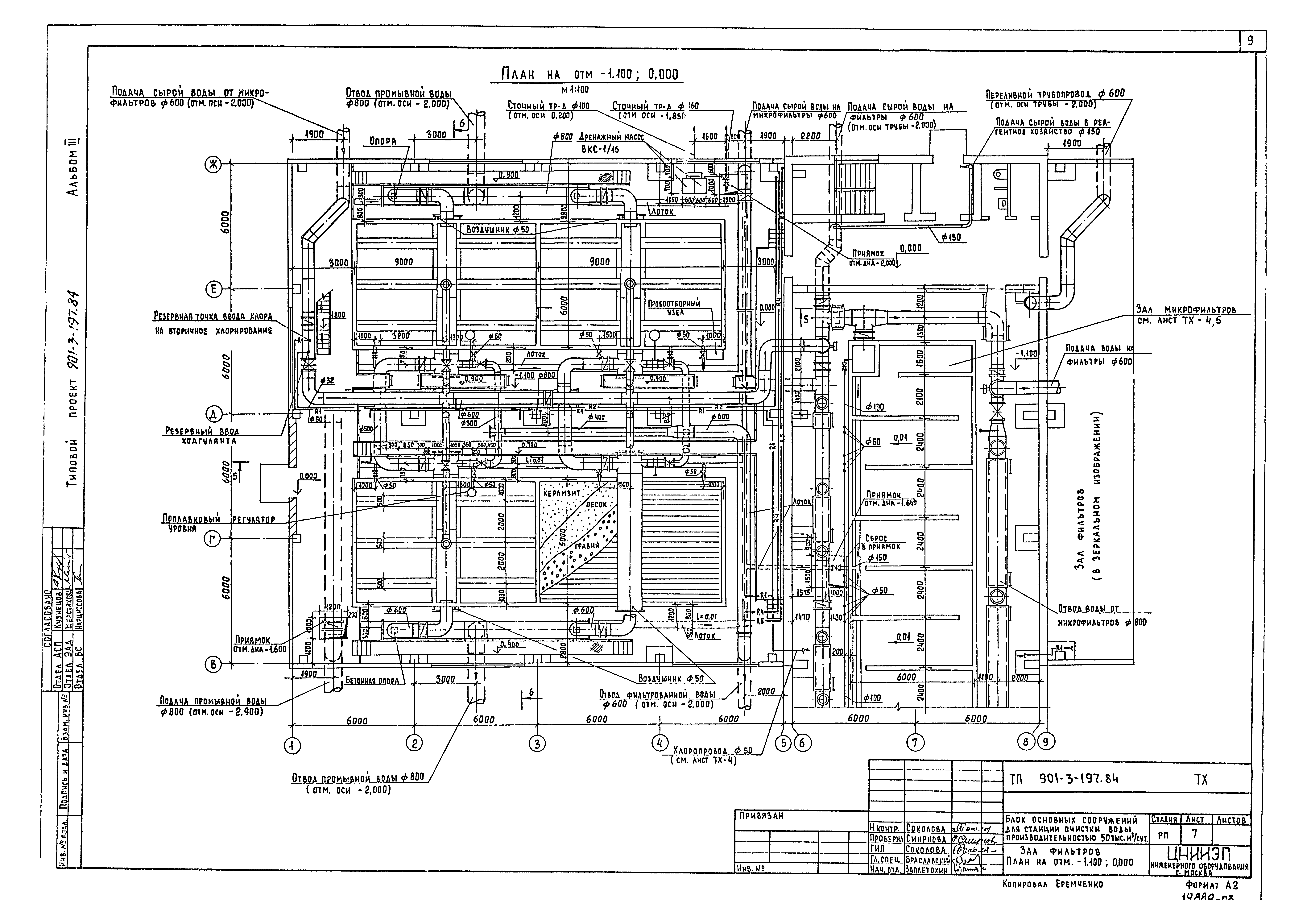
Скачать Типовой проект 901-3-197.84 Альбом III. Технологическая, сантехническая части, нестандартизированное оборудованиеДата актуализации: 10.08.2017 Типовой проект 901-3-197.84
Альбом III. Технологическая, сантехническая части, нестандартизированное оборудованиеОбозначение: | Типовой проект 901-3-197.84 | Обозначение англ: | 901-3-197.84 | Статус: | не определен законодательством | Название рус.: | Альбом III. Технологическая, сантехническая части, нестандартизированное оборудование | Дата добавления в базу: | 01.02.2017 | Дата актуализации: | 05.05.2017 | Дата введения: | 21.05.1984 | Разработан: | ЦНИИЭП инженерного оборудования
| Утверждён: | 31.01.1984 Госгражданстрой (Gosgrazhdanstroy 31)
| Издан: | ЦИТП Госстроя СССР (CITP, Gosstroy (USSR) 1985 г. )
| Расположен в: |
|
                          
|