Информационная система
«Ёшкин Кот»

Скачать базу одним архивом
Скачать обновления
История создания базы
Карта сайта

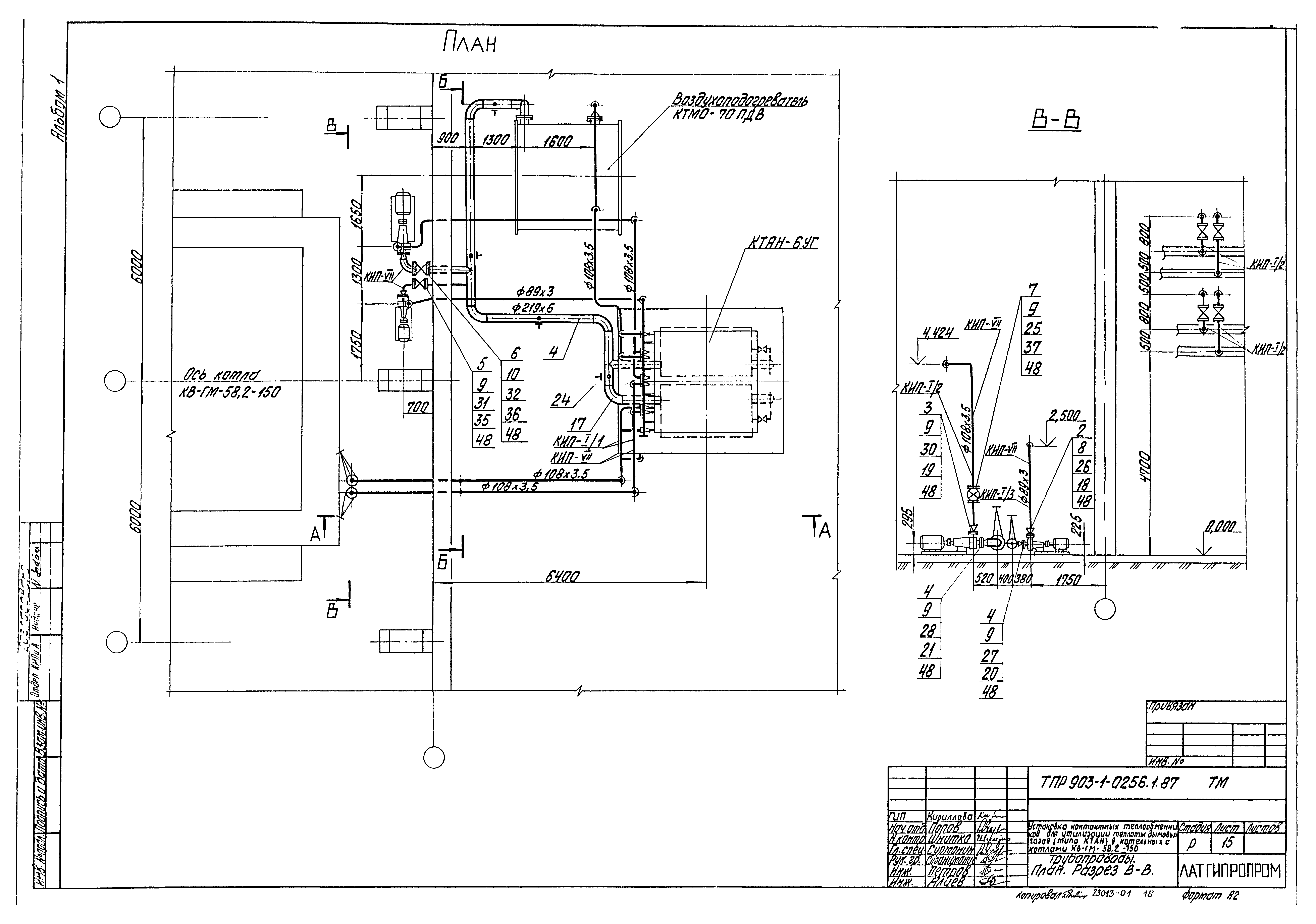
Скачать Типовые проектные решения 903-1-0256.1.87 Альбом 1. Решения тепломеханические. Автоматизация. Спецификации оборудования. Ведомости потребности в материалах

Дата актуализации: 10.08.2017

Типовые проектные решения 903-1-0256.1.87

Альбом 1. Решения тепломеханические. Автоматизация. Спецификации оборудования. Ведомости потребности в материалах

Обозначение: Типовые проектные решения 903-1-0256.1.87
Обозначение англ: 903-1-0256.1.87
Статус:cправочные материалы, мп, тпр
Название рус.:Альбом 1. Решения тепломеханические. Автоматизация. Спецификации оборудования. Ведомости потребности в материалах
Дата добавления в базу:01.02.2017
Дата актуализации:05.05.2017
Дата введения:22.01.1988
Разработан: Латгипропром
Утверждён:22.01.1988 Госстрой Латвийской ССР (11)
Расположен в:Техническая документация Строительство Справочные документы Типовые строительные конструкции, изделия и узлы Общероссийский строительный каталог Промышленные предприятия, здания и сооружения Здания и сооружения санитарно-технические Теплоснабжение Котельные установки Общие материалы
Нормативные ссылки:
Типовые проектные решения 903-1-0256.1.87Типовые проектные решения 903-1-0256.1.87Типовые проектные решения 903-1-0256.1.87Типовые проектные решения 903-1-0256.1.87Типовые проектные решения 903-1-0256.1.87Типовые проектные решения 903-1-0256.1.87Типовые проектные решения 903-1-0256.1.87Типовые проектные решения 903-1-0256.1.87Типовые проектные решения 903-1-0256.1.87Типовые проектные решения 903-1-0256.1.87Типовые проектные решения 903-1-0256.1.87Типовые проектные решения 903-1-0256.1.87Типовые проектные решения 903-1-0256.1.87Типовые проектные решения 903-1-0256.1.87Типовые проектные решения 903-1-0256.1.87Типовые проектные решения 903-1-0256.1.87Типовые проектные решения 903-1-0256.1.87Типовые проектные решения 903-1-0256.1.87Типовые проектные решения 903-1-0256.1.87Типовые проектные решения 903-1-0256.1.87Типовые проектные решения 903-1-0256.1.87Типовые проектные решения 903-1-0256.1.87Типовые проектные решения 903-1-0256.1.87Типовые проектные решения 903-1-0256.1.87Типовые проектные решения 903-1-0256.1.87Типовые проектные решения 903-1-0256.1.87Типовые проектные решения 903-1-0256.1.87Типовые проектные решения 903-1-0256.1.87Типовые проектные решения 903-1-0256.1.87Типовые проектные решения 903-1-0256.1.87Типовые проектные решения 903-1-0256.1.87Типовые проектные решения 903-1-0256.1.87Типовые проектные решения 903-1-0256.1.87Типовые проектные решения 903-1-0256.1.87Типовые проектные решения 903-1-0256.1.87Типовые проектные решения 903-1-0256.1.87Типовые проектные решения 903-1-0256.1.87Типовые проектные решения 903-1-0256.1.87Типовые проектные решения 903-1-0256.1.87

© 2013 Ёшкин Кот :-) Карта сайта