Информационная система
«Ёшкин Кот»

Скачать базу одним архивом
Скачать обновления
История создания базы
Карта сайта

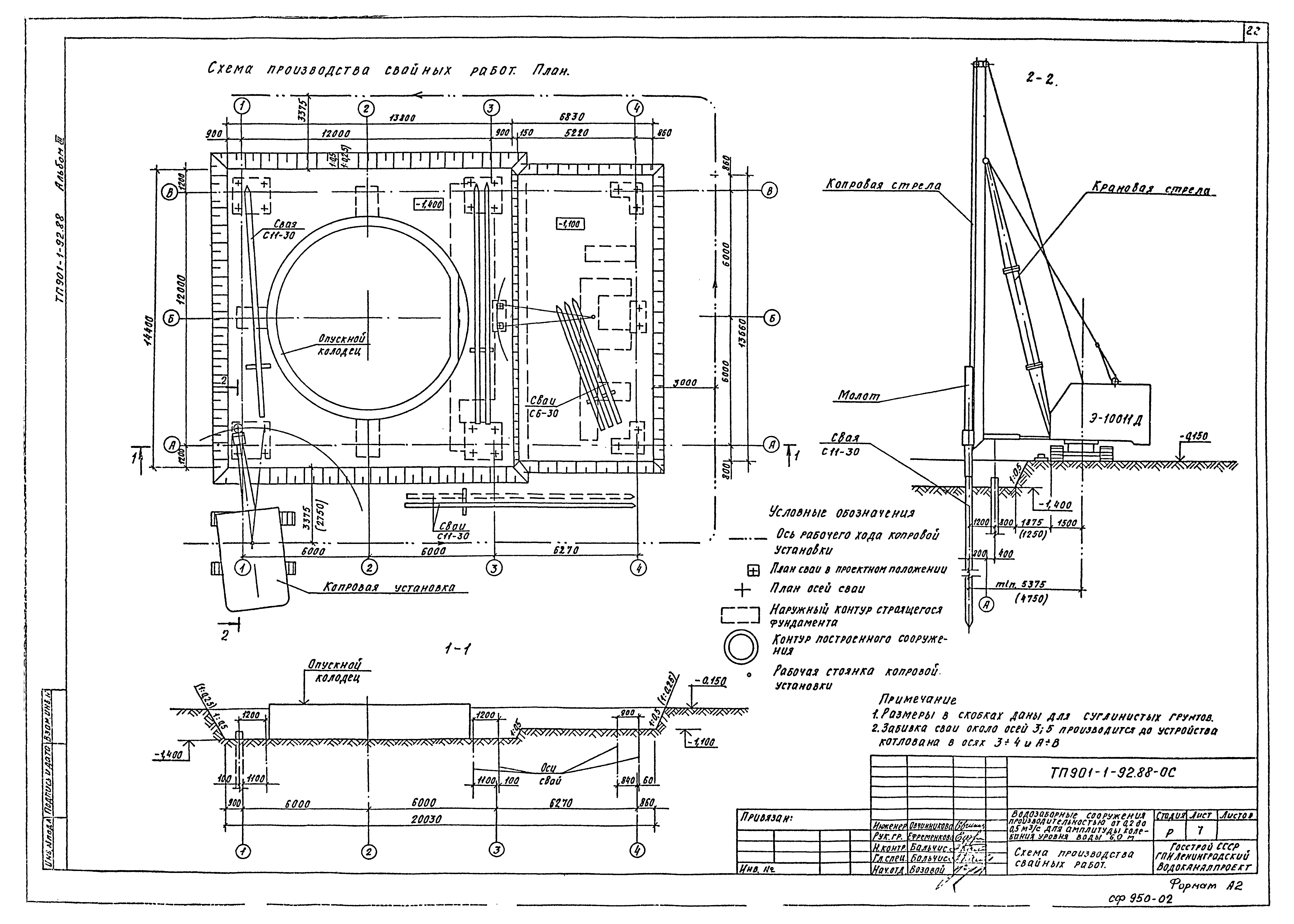
Скачать Типовой проект 901-1-92.88 Альбом III. Архитектурно-строительные решения (подземная часть). Указания по производству строительных работ

Дата актуализации: 10.08.2017

Типовой проект 901-1-92.88

Альбом III. Архитектурно-строительные решения (подземная часть). Указания по производству строительных работ

Обозначение: Типовой проект 901-1-92.88
Обозначение англ: 901-1-92.88
Статус:не определен законодательством
Название рус.:Альбом III. Архитектурно-строительные решения (подземная часть). Указания по производству строительных работ
Дата добавления в базу:01.02.2017
Дата актуализации:05.05.2017
Дата введения:05.07.1988
Разработан: Ленинградский Водоканалпроект
Утверждён:06.04.1988 Госстрой СССР (25)
Издан: ЦИТП Госстроя СССР (CITP, Gosstroy (USSR) 1988 г. )
Расположен в:Техническая документация Строительство Справочные документы Типовые строительные конструкции, изделия и узлы Общероссийский строительный каталог Промышленные предприятия, здания и сооружения Здания и сооружения санитарно-технические Водоснабжение Водозаборные сооружения
Нормативные ссылки:
Типовой проект 901-1-92.88Типовой проект 901-1-92.88Типовой проект 901-1-92.88Типовой проект 901-1-92.88Типовой проект 901-1-92.88Типовой проект 901-1-92.88Типовой проект 901-1-92.88Типовой проект 901-1-92.88Типовой проект 901-1-92.88Типовой проект 901-1-92.88Типовой проект 901-1-92.88Типовой проект 901-1-92.88Типовой проект 901-1-92.88Типовой проект 901-1-92.88Типовой проект 901-1-92.88Типовой проект 901-1-92.88Типовой проект 901-1-92.88Типовой проект 901-1-92.88Типовой проект 901-1-92.88Типовой проект 901-1-92.88Типовой проект 901-1-92.88Типовой проект 901-1-92.88Типовой проект 901-1-92.88Типовой проект 901-1-92.88Типовой проект 901-1-92.88

© 2013 Ёшкин Кот :-) Карта сайта