Информационная система
«Ёшкин Кот»

Скачать базу одним архивом
Скачать обновления
История создания базы
Карта сайта

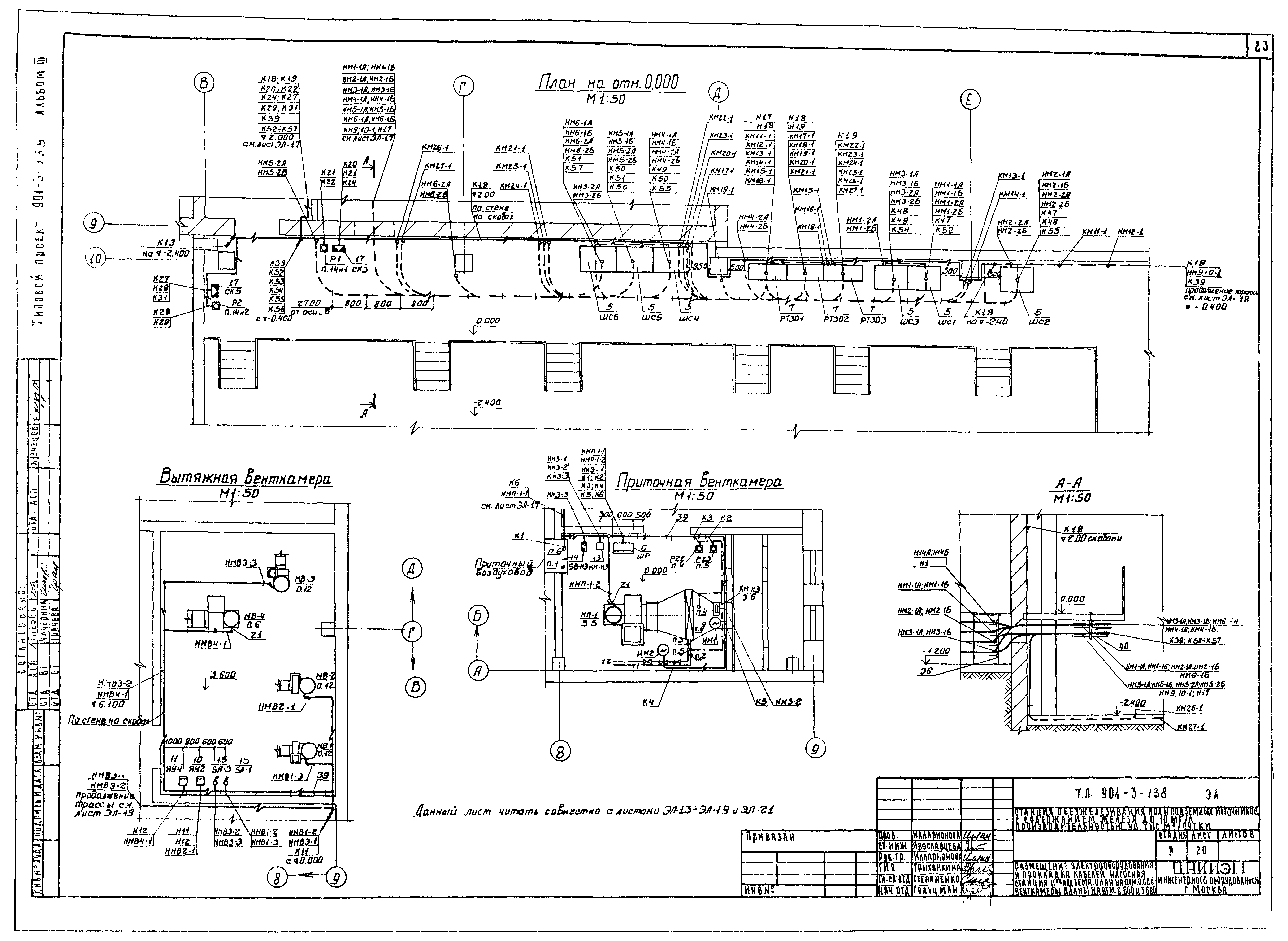
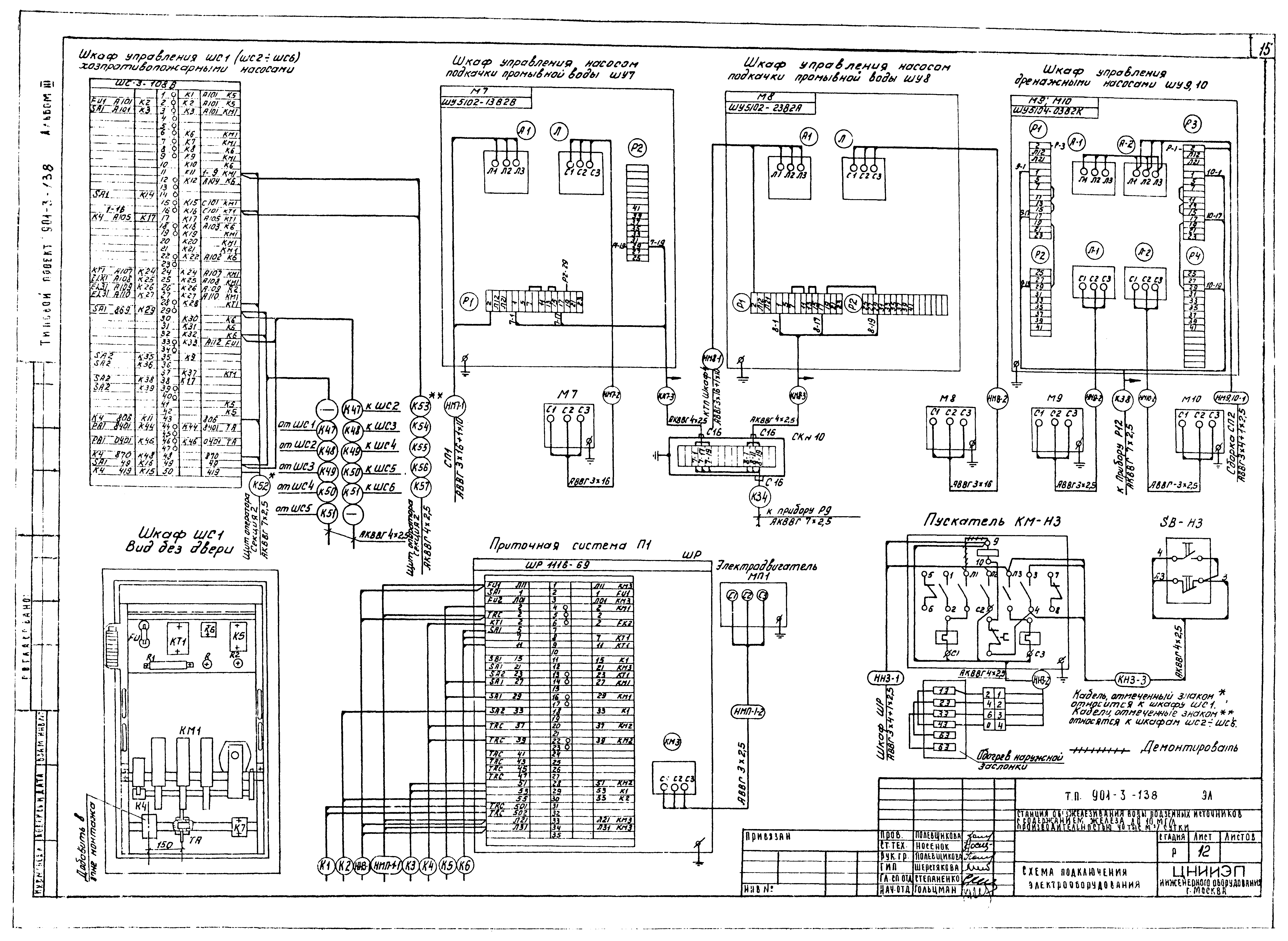
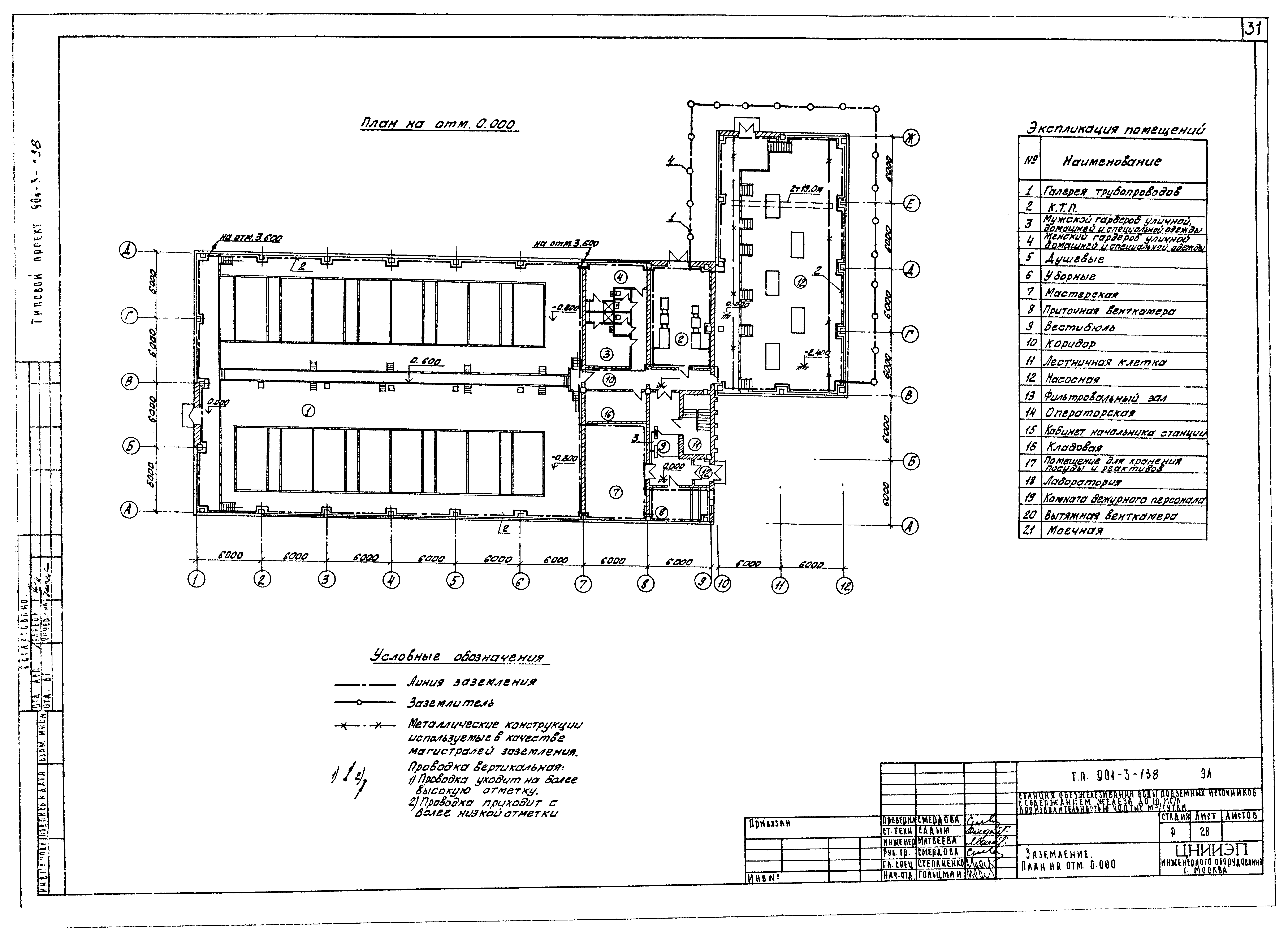
Скачать Типовой проект 901-3-138 Альбом III. Электротехническая часть. Связь и сигнализация здания станции обезжелезивания

Дата актуализации: 10.08.2017

Типовой проект 901-3-138

Альбом III. Электротехническая часть. Связь и сигнализация здания станции обезжелезивания

Обозначение: Типовой проект 901-3-138
Обозначение англ: 901-3-138
Статус:заменен
Название рус.:Альбом III. Электротехническая часть. Связь и сигнализация здания станции обезжелезивания
Дата добавления в базу:01.02.2017
Дата актуализации:05.05.2017
Дата введения:01.09.1989
Разработан: ЦНИИЭП инженерного оборудования
Утверждён:07.07.1977 Госгражданстрой (Gosgrazhdanstroy 131)
Издан: ЦИТП Госстроя СССР (CITP, Gosstroy (USSR) 1981 г. )
Расположен в:Техническая документация Строительство Справочные документы Типовые строительные конструкции, изделия и узлы Общероссийский строительный каталог Промышленные предприятия, здания и сооружения Здания и сооружения санитарно-технические Водоснабжение Сооружения и установки по подготовке питьевой воды Станция обезжелезивания воды
Заменяет собой:
  • Типовой проект 901-3-49 «Водопроводная станция обезжелезивания воды подземных источников производительностью 40 тыс. м3/сут»
Чем заменён:
  • Типовой проект 901-3-264.89 «Здание станции обезжелезивания воды подземных источников с содержанием железа до 10мг/л производительностью 40,0; 20,0 тыс. м3/сут»
Типовой проект 901-3-138Типовой проект 901-3-138Типовой проект 901-3-138Типовой проект 901-3-138Типовой проект 901-3-138Типовой проект 901-3-138Типовой проект 901-3-138Типовой проект 901-3-138Типовой проект 901-3-138Типовой проект 901-3-138Типовой проект 901-3-138Типовой проект 901-3-138Типовой проект 901-3-138Типовой проект 901-3-138Типовой проект 901-3-138Типовой проект 901-3-138Типовой проект 901-3-138Типовой проект 901-3-138Типовой проект 901-3-138Типовой проект 901-3-138Типовой проект 901-3-138Типовой проект 901-3-138Типовой проект 901-3-138Типовой проект 901-3-138Типовой проект 901-3-138Типовой проект 901-3-138Типовой проект 901-3-138Типовой проект 901-3-138Типовой проект 901-3-138Типовой проект 901-3-138Типовой проект 901-3-138Типовой проект 901-3-138Типовой проект 901-3-138Типовой проект 901-3-138Типовой проект 901-3-138Типовой проект 901-3-138Типовой проект 901-3-138Типовой проект 901-3-138Типовой проект 901-3-138Типовой проект 901-3-138Типовой проект 901-3-138Типовой проект 901-3-138Типовой проект 901-3-138Типовой проект 901-3-138Типовой проект 901-3-138Типовой проект 901-3-138

© 2013 Ёшкин Кот :-) Карта сайта