Скачать Типовой проект 901-3-188.83 Альбом I. Архитектурно-строительная, технологическая, санитарно-техническая, электротехническая части, связь и сигнализация, нестандартизированное оборудованиеДата актуализации: 10.08.2017 Типовой проект 901-3-188.83
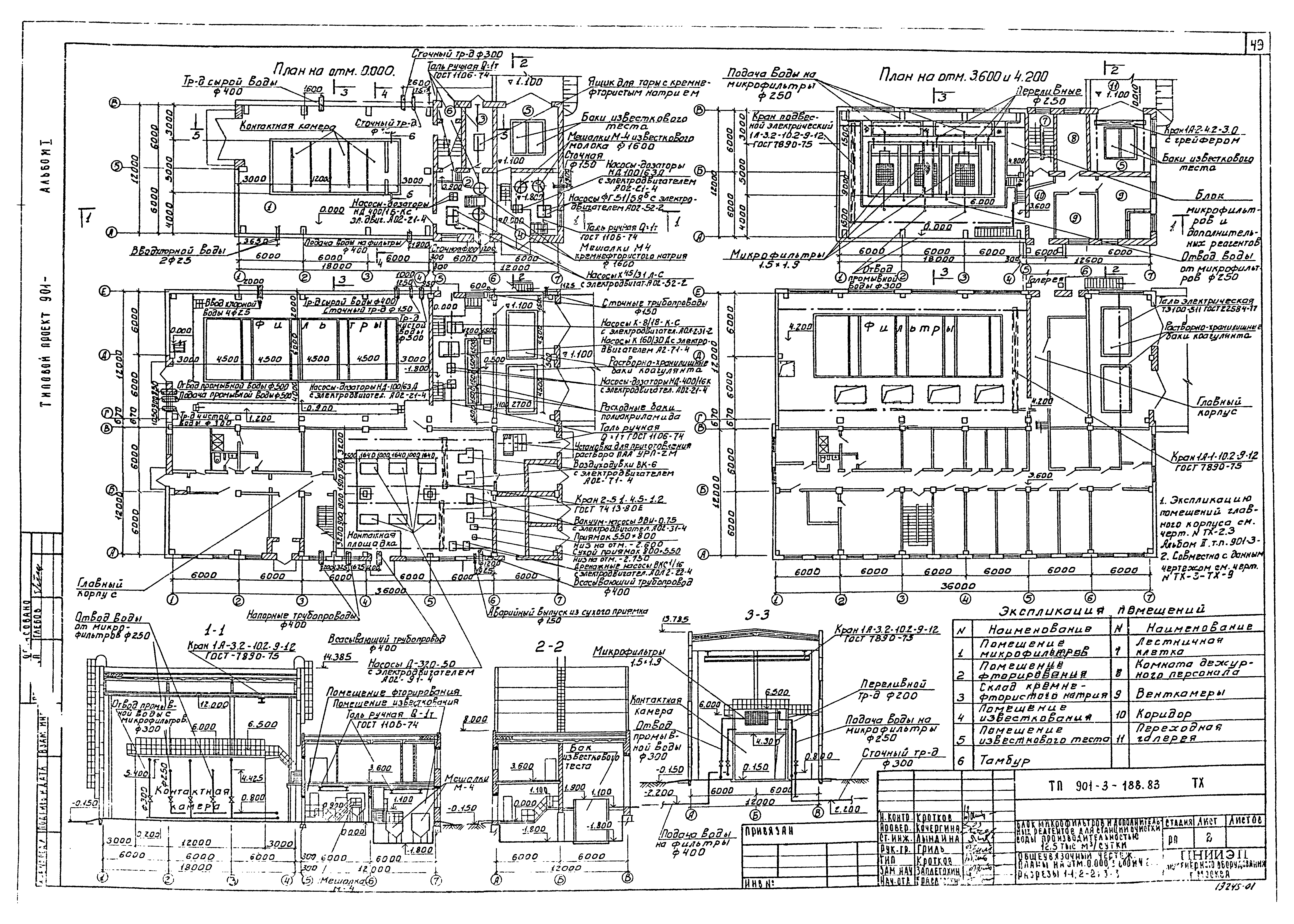
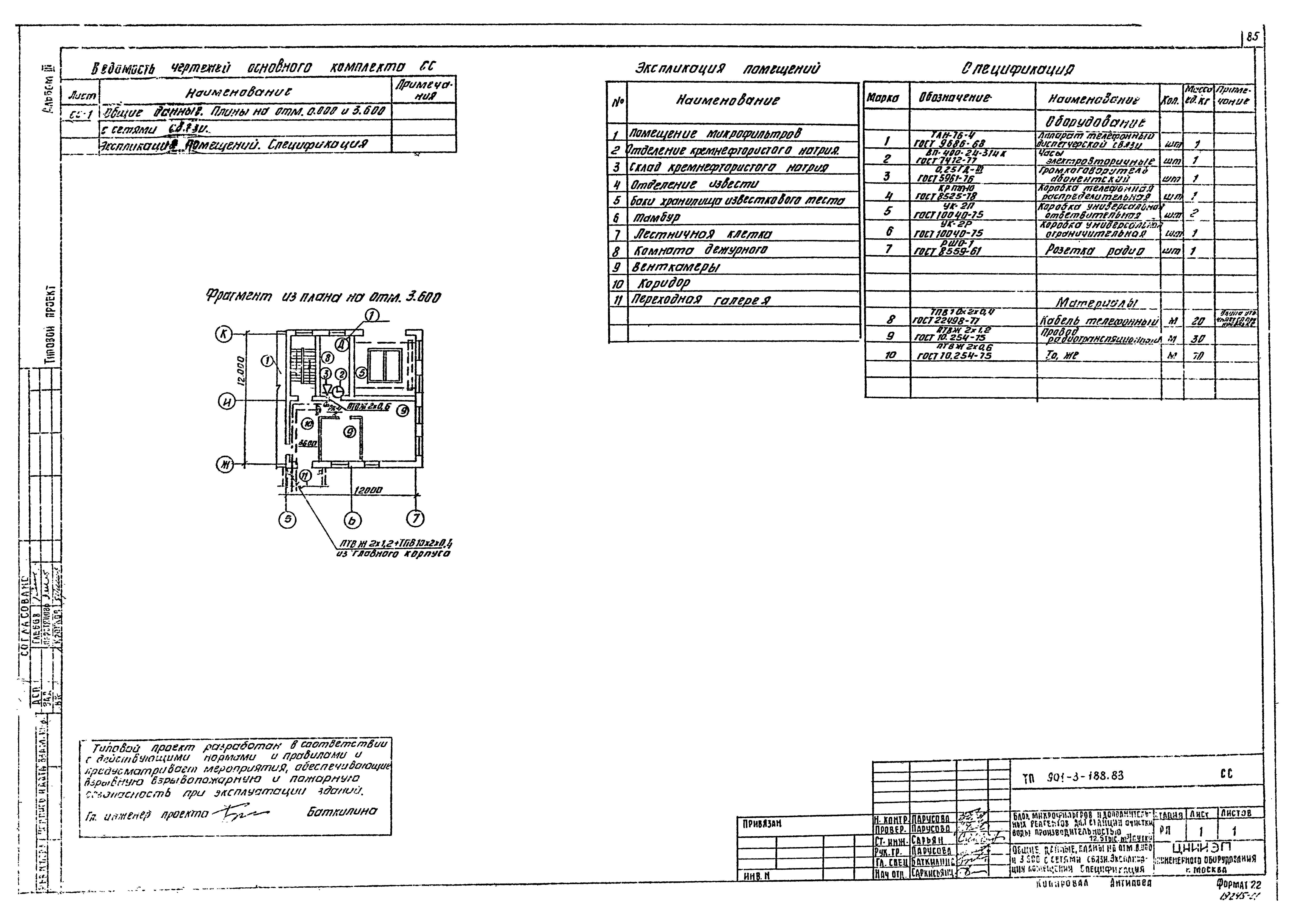
Альбом I. Архитектурно-строительная, технологическая, санитарно-техническая, электротехническая части, связь и сигнализация, нестандартизированное оборудованиеОбозначение: | Типовой проект 901-3-188.83 | Обозначение англ: | 901-3-188.83 | Статус: | не определен законодательством | Название рус.: | Альбом I. Архитектурно-строительная, технологическая, санитарно-техническая, электротехническая части, связь и сигнализация, нестандартизированное оборудование | Дата добавления в базу: | 01.02.2017 | Дата актуализации: | 05.05.2017 | Дата введения: | 23.06.1983 | Разработан: | ЦНИИЭП инженерного оборудования
| Утверждён: | 23.11.1982 Госгражданстрой (Gosgrazhdanstroy 313)
| Издан: | ЦИТП Госстроя СССР (CITP, Gosstroy (USSR) 1983 г. )
| Расположен в: |
|
                                                                                       
|