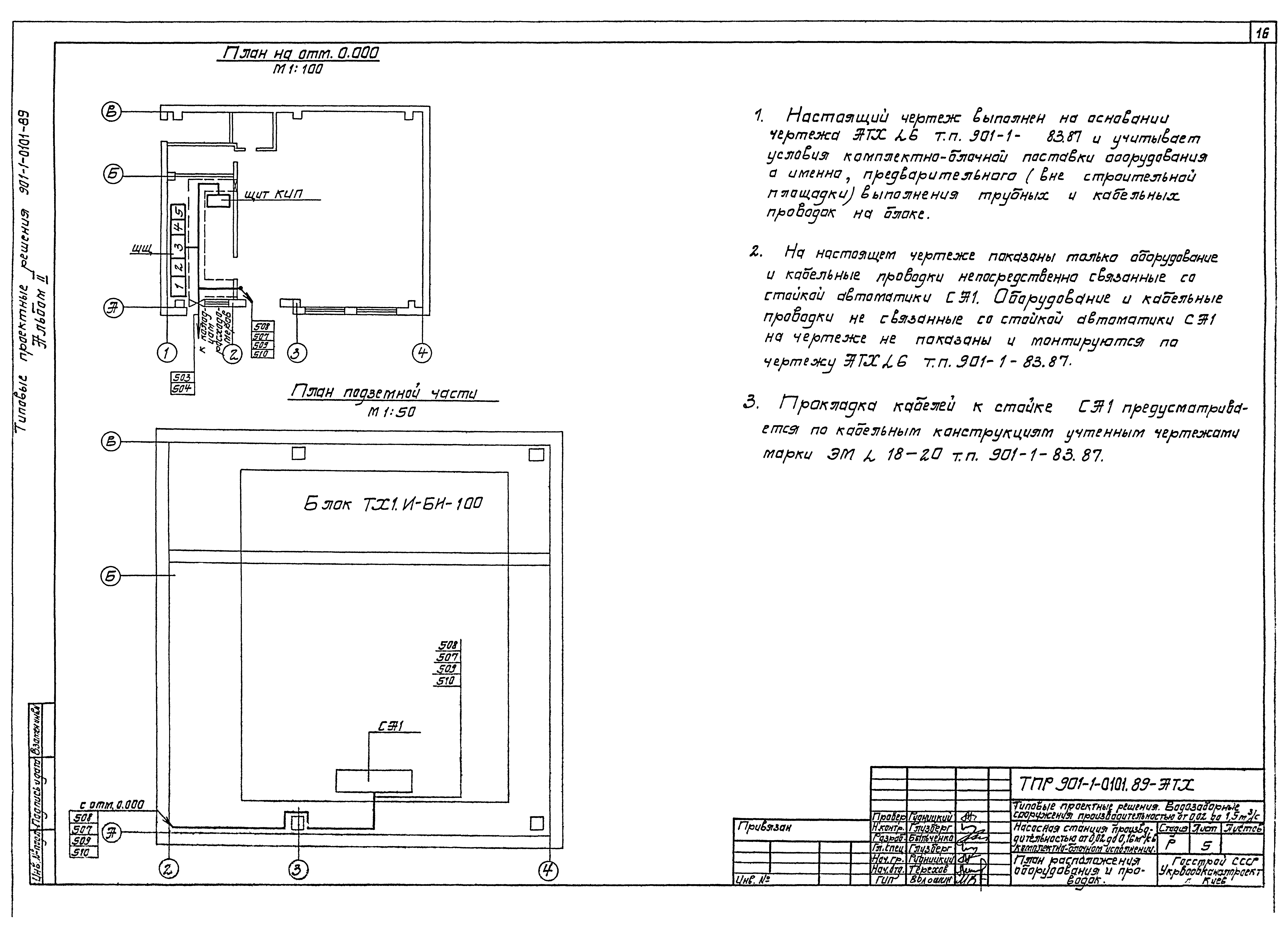
Скачать Типовые проектные решения 901-1-0101.89 Альбом II. Технологические, электротехнические и строительные решенияДата актуализации: 10.08.2017 Типовые проектные решения 901-1-0101.89
Альбом II. Технологические, электротехнические и строительные решенияОбозначение: | Типовые проектные решения 901-1-0101.89 | Обозначение англ: | 901-1-0101.89 | Статус: | не определен законодательством | Название рус.: | Альбом II. Технологические, электротехнические и строительные решения | Дата добавления в базу: | 01.02.2017 | Дата актуализации: | 05.05.2017 | Дата введения: | 01.08.1989 | Разработан: | Укрводоканалпроект
| Утверждён: | 01.08.1989 Союзводоканалпроект (Soyuzvodokanalproject 74)
| Принят: | Киевский филиал ВНИИмонтажспецстроя (Kiev Branch of VNIImontazhspetsstroy )
| Расположен в: |
|
                  
|