Информационная система
«Ёшкин Кот»

Скачать базу одним архивом
Скачать обновления
История создания базы
Карта сайта

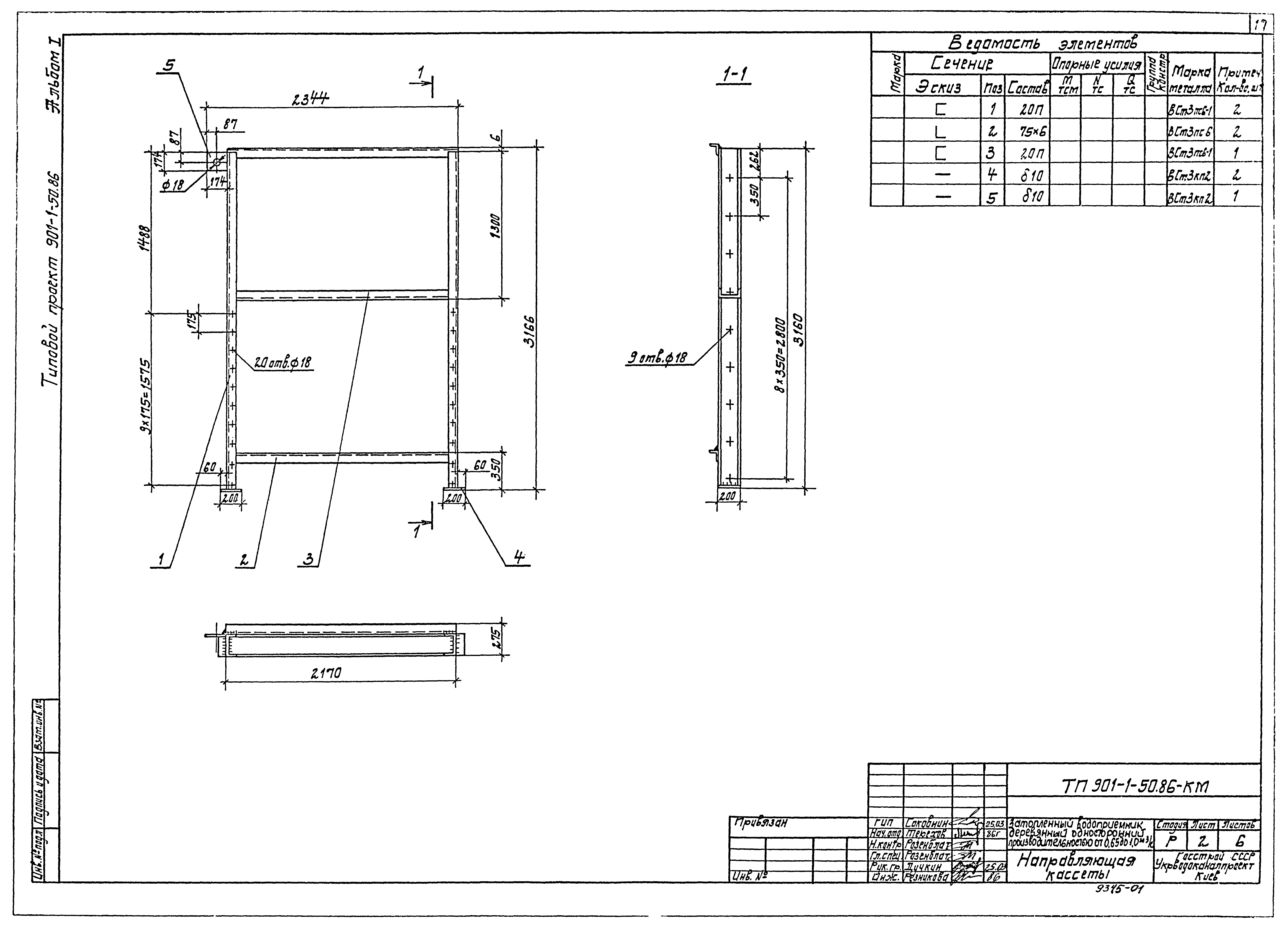
Скачать Типовой проект 901-1-50.86 Альбом I. Пояснительная записка и чертежи. Технологическая часть и строительные решения

Дата актуализации: 10.08.2017

Типовой проект 901-1-50.86

Альбом I. Пояснительная записка и чертежи. Технологическая часть и строительные решения

Обозначение: Типовой проект 901-1-50.86
Обозначение англ: 901-1-50.86
Статус:отменен
Название рус.:Альбом I. Пояснительная записка и чертежи. Технологическая часть и строительные решения
Дата добавления в базу:01.02.2017
Дата актуализации:05.05.2017
Дата введения:01.12.1994
Разработан: Укрводоканалпроект
ВНИИ ВОДГЕО
Утверждён:23.04.1986 Госстрой СССР (АЧ-20)
Издан: ЦИТП Госстроя СССР (CITP, Gosstroy (USSR) 1987 г. )
Расположен в:Техническая документация Строительство Справочные документы Типовые строительные конструкции, изделия и узлы Общероссийский строительный каталог Промышленные предприятия, здания и сооружения Здания и сооружения санитарно-технические Водоснабжение Водозаборные сооружения
Заменяет собой:
Типовой проект 901-1-50.86Типовой проект 901-1-50.86Типовой проект 901-1-50.86Типовой проект 901-1-50.86Типовой проект 901-1-50.86Типовой проект 901-1-50.86Типовой проект 901-1-50.86Типовой проект 901-1-50.86Типовой проект 901-1-50.86Типовой проект 901-1-50.86Типовой проект 901-1-50.86Типовой проект 901-1-50.86Типовой проект 901-1-50.86Типовой проект 901-1-50.86Типовой проект 901-1-50.86Типовой проект 901-1-50.86Типовой проект 901-1-50.86Типовой проект 901-1-50.86Типовой проект 901-1-50.86Типовой проект 901-1-50.86Типовой проект 901-1-50.86Типовой проект 901-1-50.86Типовой проект 901-1-50.86

© 2013 Ёшкин Кот :-) Карта сайта