Скачать Типовой проект 901-1-42.86 Альбом I. Пояснительная записка, чертежиДата актуализации: 10.08.2017 Типовой проект 901-1-42.86
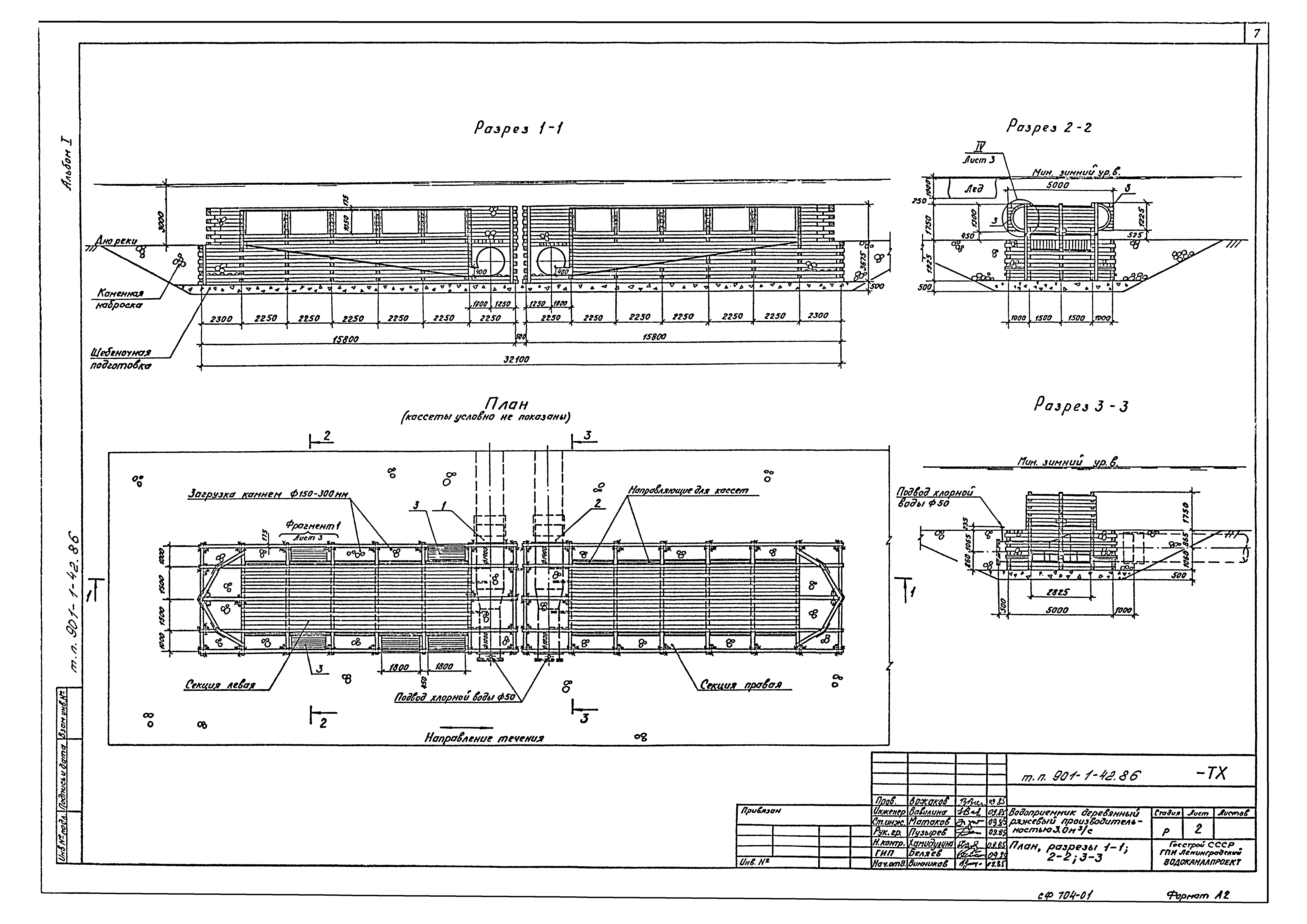
Альбом I. Пояснительная записка, чертежиОбозначение: | Типовой проект 901-1-42.86 | Обозначение англ: | 901-1-42.86 | Статус: | отменен | Название рус.: | Альбом I. Пояснительная записка, чертежи | Дата добавления в базу: | 01.02.2017 | Дата актуализации: | 05.05.2017 | Дата введения: | 01.12.1994 | Разработан: | Ленинградский Водоканалпроект
| Утверждён: | 03.10.1985 СоюзводоканалНИИпроект (SoyuzvodokanalNIIproject АЧ-41)
| Издан: | ЦИТП Госстроя СССР (CITP, Gosstroy (USSR) 1986 г. )
| Расположен в: |
|
                      
|