Информационная система
«Ёшкин Кот»

Скачать базу одним архивом
Скачать обновления
История создания базы
Карта сайта

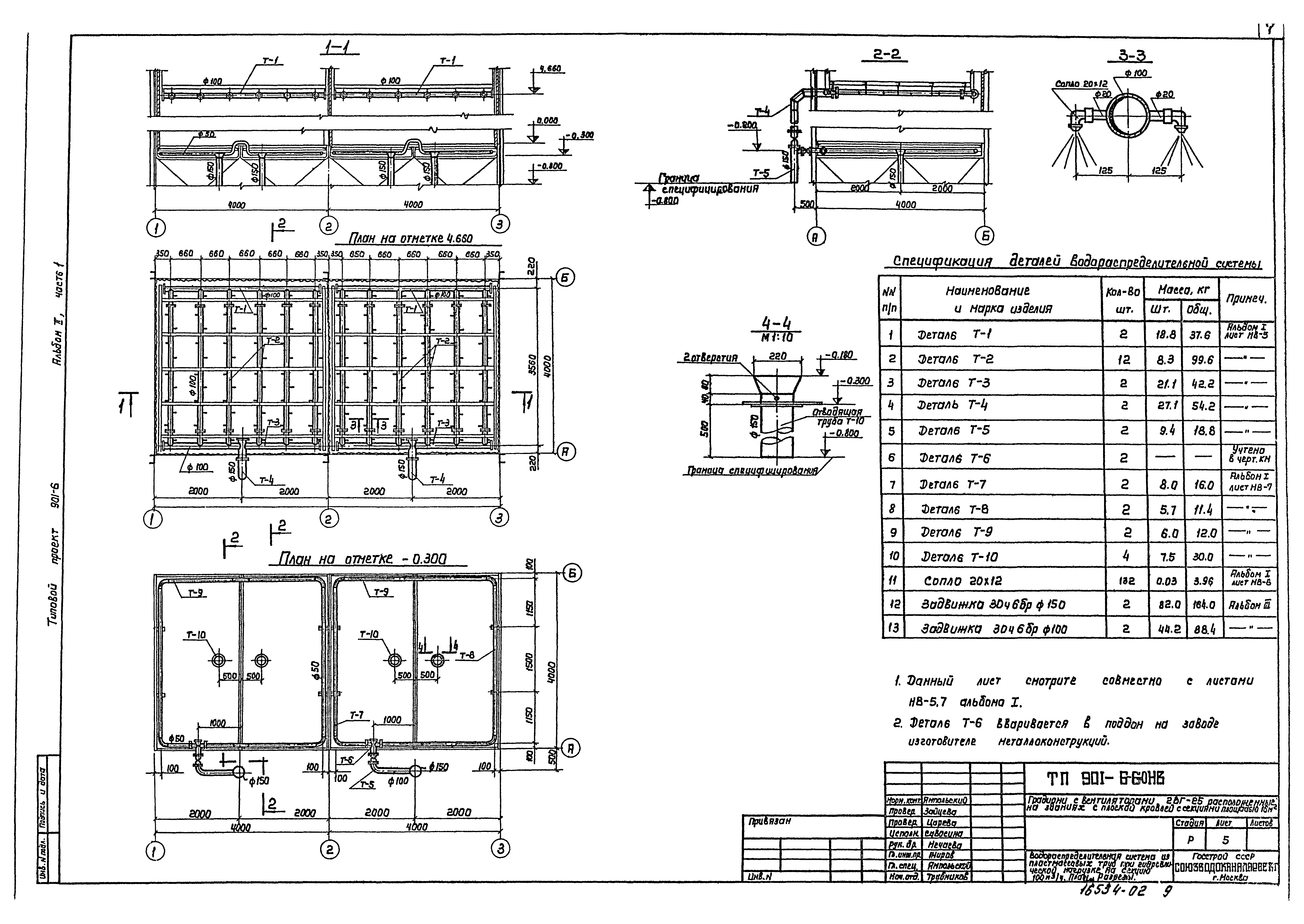
Скачать Типовой проект 901-6-60 Альбом II. Часть I. Двухсекционные градирни

Дата актуализации: 10.08.2017

Типовой проект 901-6-60

Альбом II. Часть I. Двухсекционные градирни

Обозначение: Типовой проект 901-6-60
Обозначение англ: 901-6-60
Статус:отменен
Название рус.:Альбом II. Часть I. Двухсекционные градирни
Дата добавления в базу:01.02.2017
Дата актуализации:05.05.2017
Дата введения:01.02.1987
Разработан: Союзводоканалпроект
Ростовский Водоканалпроект
Белорусское отделение ЦНИИПроектстальконструкция
Утверждён:29.11.1979 Союзводоканалпроект (Soyuzvodokanalproject 66)
Издан: ЦИТП Госстроя СССР (CITP, Gosstroy (USSR) 1980 г. )
Расположен в:Техническая документация Строительство Справочные документы Типовые строительные конструкции, изделия и узлы Общероссийский строительный каталог Промышленные предприятия, здания и сооружения Здания и сооружения санитарно-технические Водоснабжение Градирни
Заменяет собой:
  • Типовой проект 901-6-40 «Градирни с вентиляторами IВГ25, расположенные на зданиях с плоской кровлей с секциями площадью 16 кв. м»
Типовой проект 901-6-60Типовой проект 901-6-60Типовой проект 901-6-60Типовой проект 901-6-60Типовой проект 901-6-60Типовой проект 901-6-60Типовой проект 901-6-60Типовой проект 901-6-60Типовой проект 901-6-60Типовой проект 901-6-60Типовой проект 901-6-60Типовой проект 901-6-60Типовой проект 901-6-60Типовой проект 901-6-60Типовой проект 901-6-60Типовой проект 901-6-60Типовой проект 901-6-60Типовой проект 901-6-60Типовой проект 901-6-60Типовой проект 901-6-60Типовой проект 901-6-60Типовой проект 901-6-60Типовой проект 901-6-60Типовой проект 901-6-60Типовой проект 901-6-60Типовой проект 901-6-60Типовой проект 901-6-60Типовой проект 901-6-60Типовой проект 901-6-60Типовой проект 901-6-60Типовой проект 901-6-60Типовой проект 901-6-60Типовой проект 901-6-60Типовой проект 901-6-60Типовой проект 901-6-60Типовой проект 901-6-60Типовой проект 901-6-60

© 2013 Ёшкин Кот :-) Карта сайта