Информационная система
«Ёшкин Кот»

Скачать базу одним архивом
Скачать обновления
История создания базы
Карта сайта

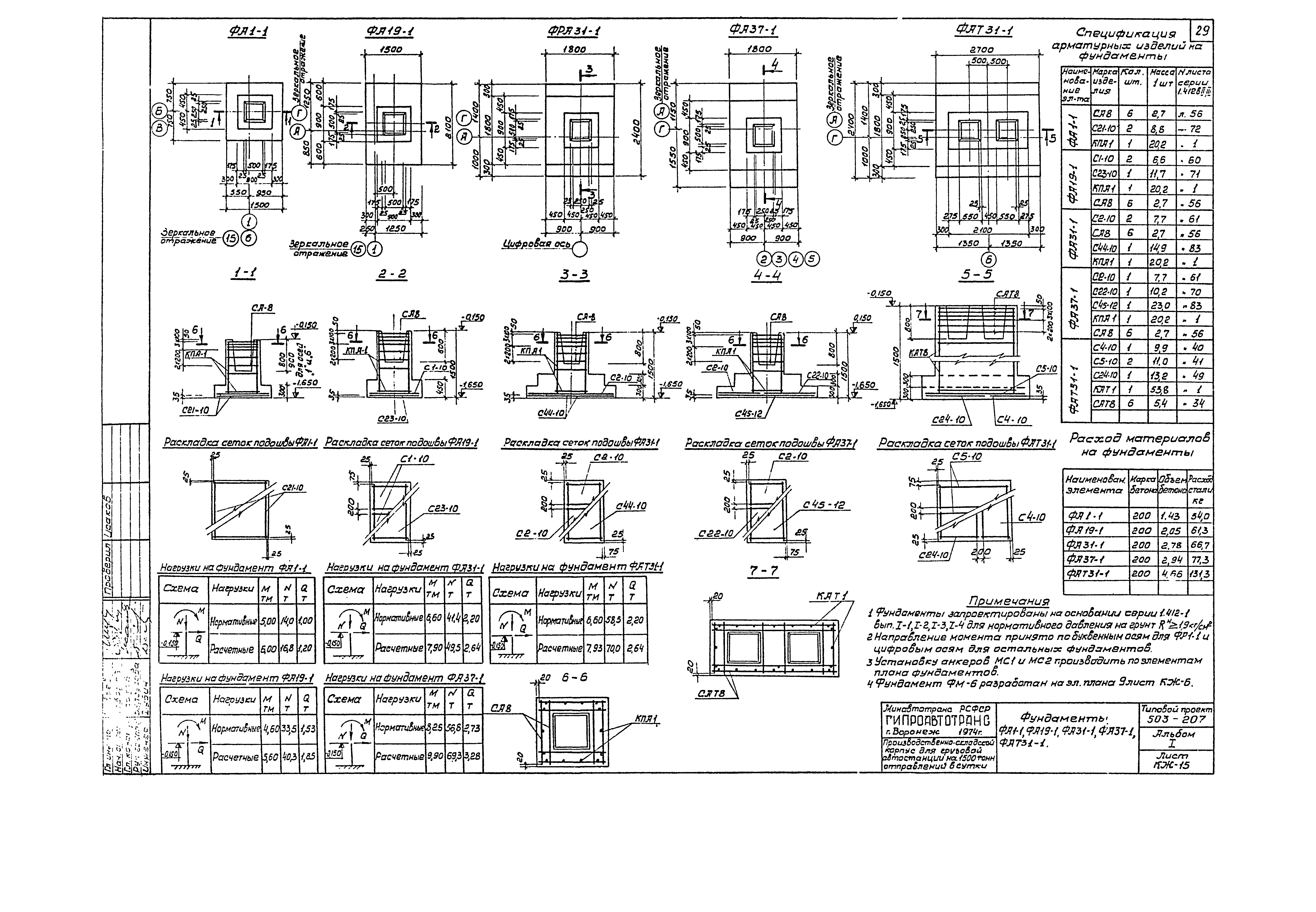
Скачать Типовой проект 503-207 Альбом I. Технологические чертежи. Архитектурно-строительные чертежи. Чертежи санитарно-технических систем и устройств

Дата актуализации: 10.08.2017

Типовой проект 503-207

Альбом I. Технологические чертежи. Архитектурно-строительные чертежи. Чертежи санитарно-технических систем и устройств

Обозначение: Типовой проект 503-207
Обозначение англ: 503-207
Статус:действует
Название рус.:Альбом I. Технологические чертежи. Архитектурно-строительные чертежи. Чертежи санитарно-технических систем и устройств
Дата добавления в базу:01.02.2017
Дата актуализации:05.05.2017
Разработан: Воронежский филиал Гипроавтотранс
Утверждён:23.12.1974 Минавтотранс РСФСР (Russian Federation Minavtotrans 128)
Издан: ЦИТП Госстроя СССР (CITP, Gosstroy (USSR) 1981 г. )
Расположен в:Техническая документация Строительство Справочные документы Типовые строительные конструкции, изделия и узлы Общероссийский строительный каталог Промышленные предприятия, здания и сооружения Предприятия, здания и сооружения транспорта Транспорт автомобильный Станции и пункты автозаправочные
Типовой проект 503-207Типовой проект 503-207Типовой проект 503-207Типовой проект 503-207Типовой проект 503-207Типовой проект 503-207Типовой проект 503-207Типовой проект 503-207Типовой проект 503-207Типовой проект 503-207Типовой проект 503-207Типовой проект 503-207Типовой проект 503-207Типовой проект 503-207Типовой проект 503-207Типовой проект 503-207Типовой проект 503-207Типовой проект 503-207Типовой проект 503-207Типовой проект 503-207Типовой проект 503-207Типовой проект 503-207Типовой проект 503-207Типовой проект 503-207Типовой проект 503-207Типовой проект 503-207Типовой проект 503-207Типовой проект 503-207Типовой проект 503-207Типовой проект 503-207Типовой проект 503-207Типовой проект 503-207Типовой проект 503-207Типовой проект 503-207Типовой проект 503-207Типовой проект 503-207Типовой проект 503-207Типовой проект 503-207Типовой проект 503-207Типовой проект 503-207Типовой проект 503-207Типовой проект 503-207Типовой проект 503-207Типовой проект 503-207Типовой проект 503-207Типовой проект 503-207Типовой проект 503-207Типовой проект 503-207Типовой проект 503-207Типовой проект 503-207Типовой проект 503-207Типовой проект 503-207Типовой проект 503-207Типовой проект 503-207

© 2013 Ёшкин Кот :-) Карта сайта