Скачать Приказ 953 Об утверждении формы технического плана и требований к его подготовке, состава содержащихся в нем сведений, а также формы декларации об объекте недвижимости, требований к ее подготовке, состава содержащихся в ней сведенийДата актуализации: 10.08.2017 Приказ 953
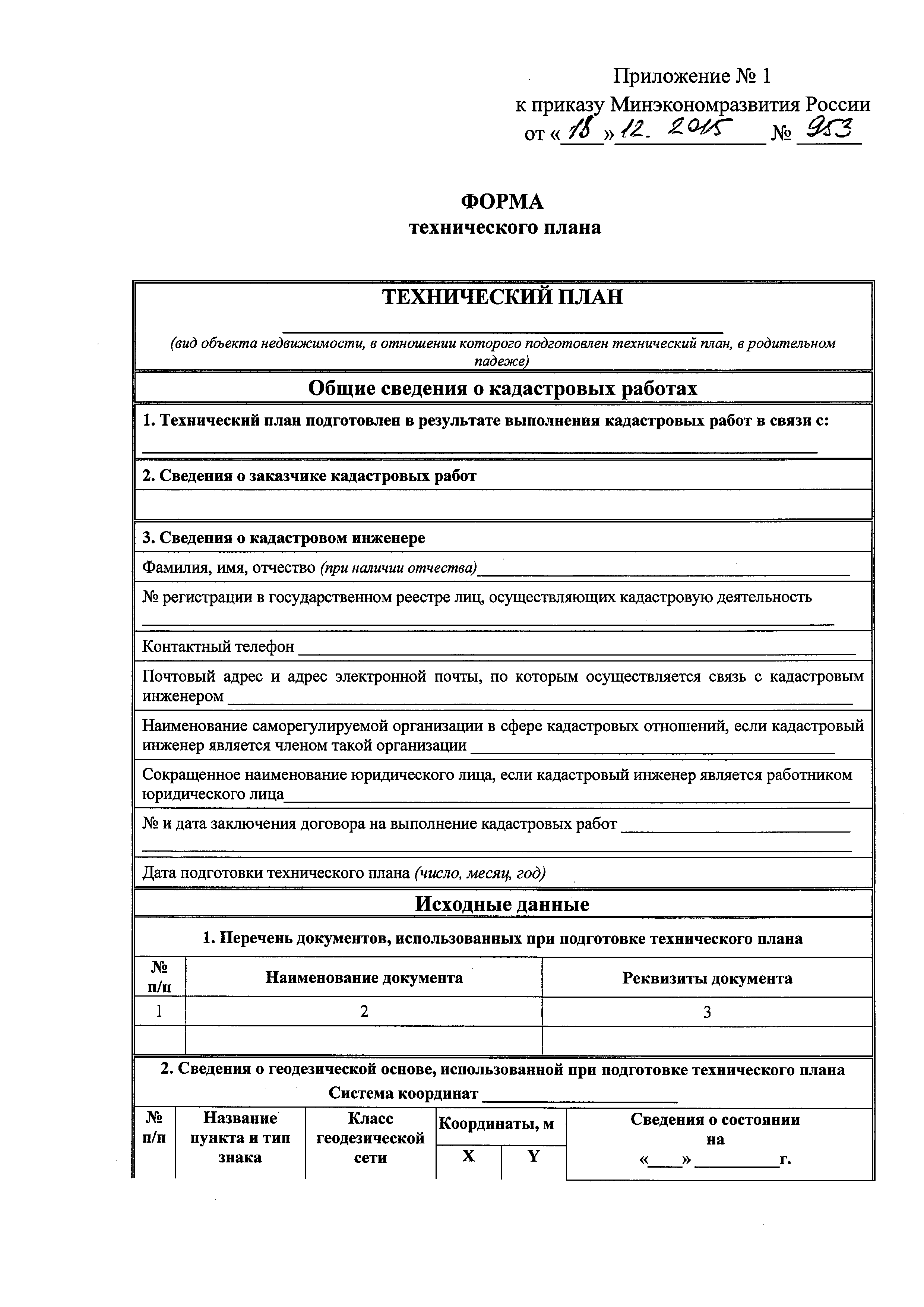
Об утверждении формы технического плана и требований к его подготовке, состава содержащихся в нем сведений, а также формы декларации об объекте недвижимости, требований к ее подготовке, состава содержащихся в ней сведенийОбозначение: | Приказ 953 | Обозначение англ: | Directive 953 | Статус: | действует | Название рус.: | Об утверждении формы технического плана и требований к его подготовке, состава содержащихся в нем сведений, а также формы декларации об объекте недвижимости, требований к ее подготовке, состава содержащихся в ней сведений | Дата добавления в базу: | 01.02.2017 | Дата актуализации: | 05.05.2017 | Дата введения: | 01.01.2017 | Оглавление: | Приложение № 1. Форма технического плана Приложение № 2. Требования к подготовке технического плана и состав содержащихся в нем сведений I. Общие положения II. Общие требования к подготовке технического плана III. Требования к оформлению текстовой части технического плана IV. Требования к оформлению графической части технического плана Приложение. Специальные условные знаки Приложение № 3. Форма декларации об объекте недвижимости Приложение № 4. Требования к подготовке декларации об объекте недвижимости и состав содержащихся в ней сведений | Утверждён: | 18.12.2015 Министерство экономического развития РФ (953)
| Издан: | Официальный интернет-портал правовой информации (www.pravo.gov.ru) (от 09.03.2016 г. Номер опубликования: 0001201603090013)
| Расположен в: |
| Список изменений: | № 1 от 01.01.2017 ("Официальный интернет-портал правовой информации" (Дата опубликования: 14.12.2016. Номер опубликования: 0001201612140001)
| Нормативные ссылки: | |
                                                                                    
Текстовое изменение № 1 от 01.01.2017
                                 
|