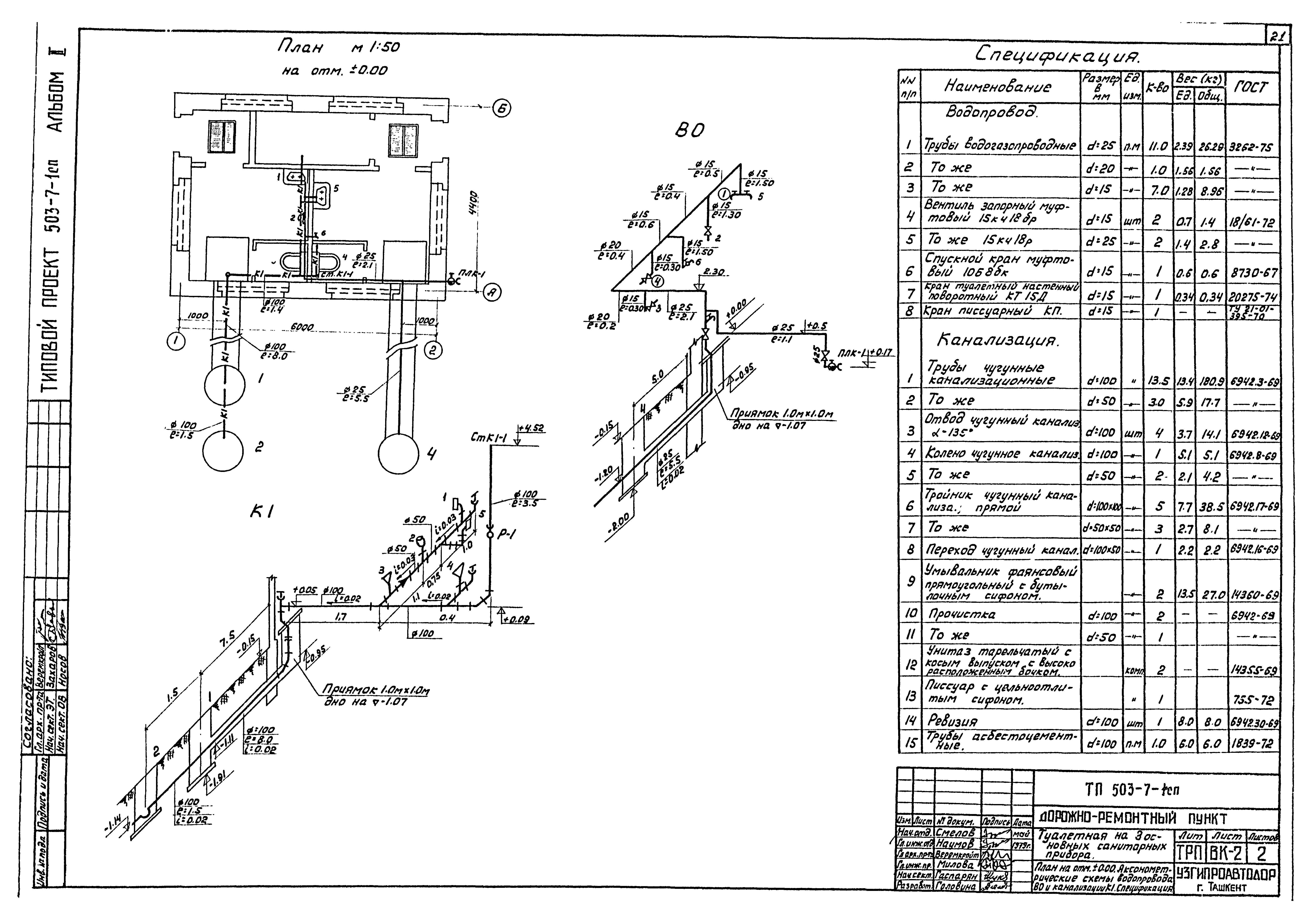
Скачать Типовой проект 503-7-1сп Альбом II. Водопровод и канализация. Отопление и вентиляция. Электроснабжение, автоматизация электроприводов, слаботочные устройстваДата актуализации: 10.08.2017 Типовой проект 503-7-1сп
Альбом II. Водопровод и канализация. Отопление и вентиляция. Электроснабжение, автоматизация электроприводов, слаботочные устройстваОбозначение: | Типовой проект 503-7-1сп | Обозначение англ: | 503-7-1сп | Статус: | действует | Название рус.: | Альбом II. Водопровод и канализация. Отопление и вентиляция. Электроснабжение, автоматизация электроприводов, слаботочные устройства | Дата добавления в базу: | 01.02.2017 | Дата актуализации: | 05.05.2017 | Разработан: | Узгипроавтодор
| Утверждён: | 09.08.1979 Госстрой УзССР (148)
| Расположен в: |
|
                                      
|