Информационная система
«Ёшкин Кот»

Скачать базу одним архивом
Скачать обновления
История создания базы
Карта сайта

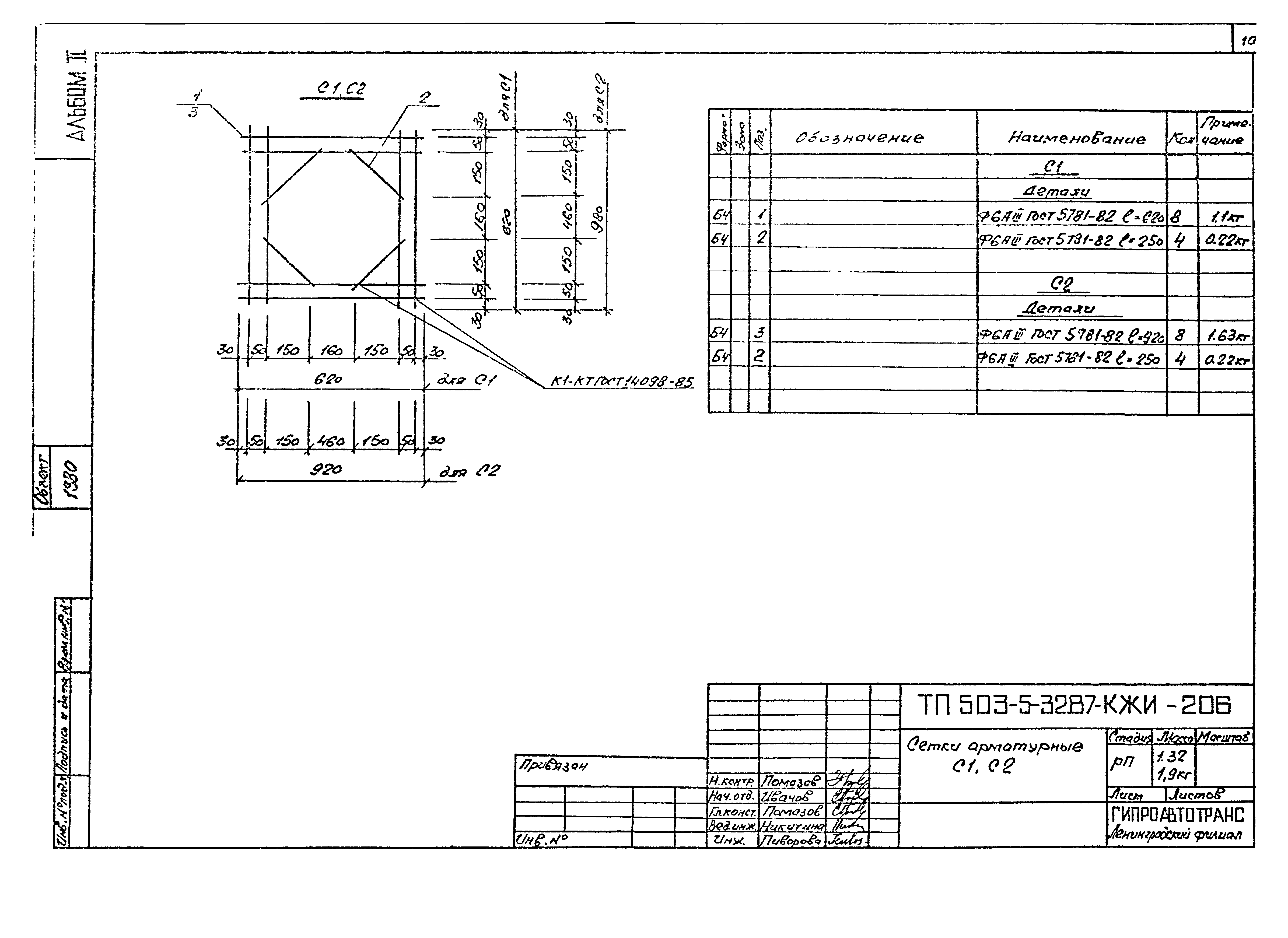
Скачать Типовой проект 503-5-32.87 Альбом II. Сборные железобетонные изделия. Стальные арматурные и закладные изделия

Дата актуализации: 10.08.2017

Типовой проект 503-5-32.87

Альбом II. Сборные железобетонные изделия. Стальные арматурные и закладные изделия

Обозначение: Типовой проект 503-5-32.87
Обозначение англ: 503-5-32.87
Статус:не определен законодательством
Название рус.:Альбом II. Сборные железобетонные изделия. Стальные арматурные и закладные изделия
Дата добавления в базу:01.02.2017
Дата актуализации:05.05.2017
Дата введения:24.09.1987
Разработан: Ленинградский филиал Гипроавтотранс
Утверждён:24.09.1987 Минавтотранс РСФСР (Russian Federation Minavtotrans 16)
Издан: ЦИТП Госстроя СССР (CITP, Gosstroy (USSR) 1989 г. )
Расположен в:Техническая документация Строительство Справочные документы Типовые строительные конструкции, изделия и узлы Общероссийский строительный каталог Промышленные предприятия, здания и сооружения Предприятия, здания и сооружения транспорта Транспорт автомобильный Здания и сооружения по обслуживанию пассажиров
Заменяет собой:
  • Типовой проект 503-292
Типовой проект 503-5-32.87Типовой проект 503-5-32.87Типовой проект 503-5-32.87Типовой проект 503-5-32.87Типовой проект 503-5-32.87Типовой проект 503-5-32.87Типовой проект 503-5-32.87Типовой проект 503-5-32.87Типовой проект 503-5-32.87Типовой проект 503-5-32.87Типовой проект 503-5-32.87Типовой проект 503-5-32.87Типовой проект 503-5-32.87

© 2013 Ёшкин Кот :-) Карта сайта