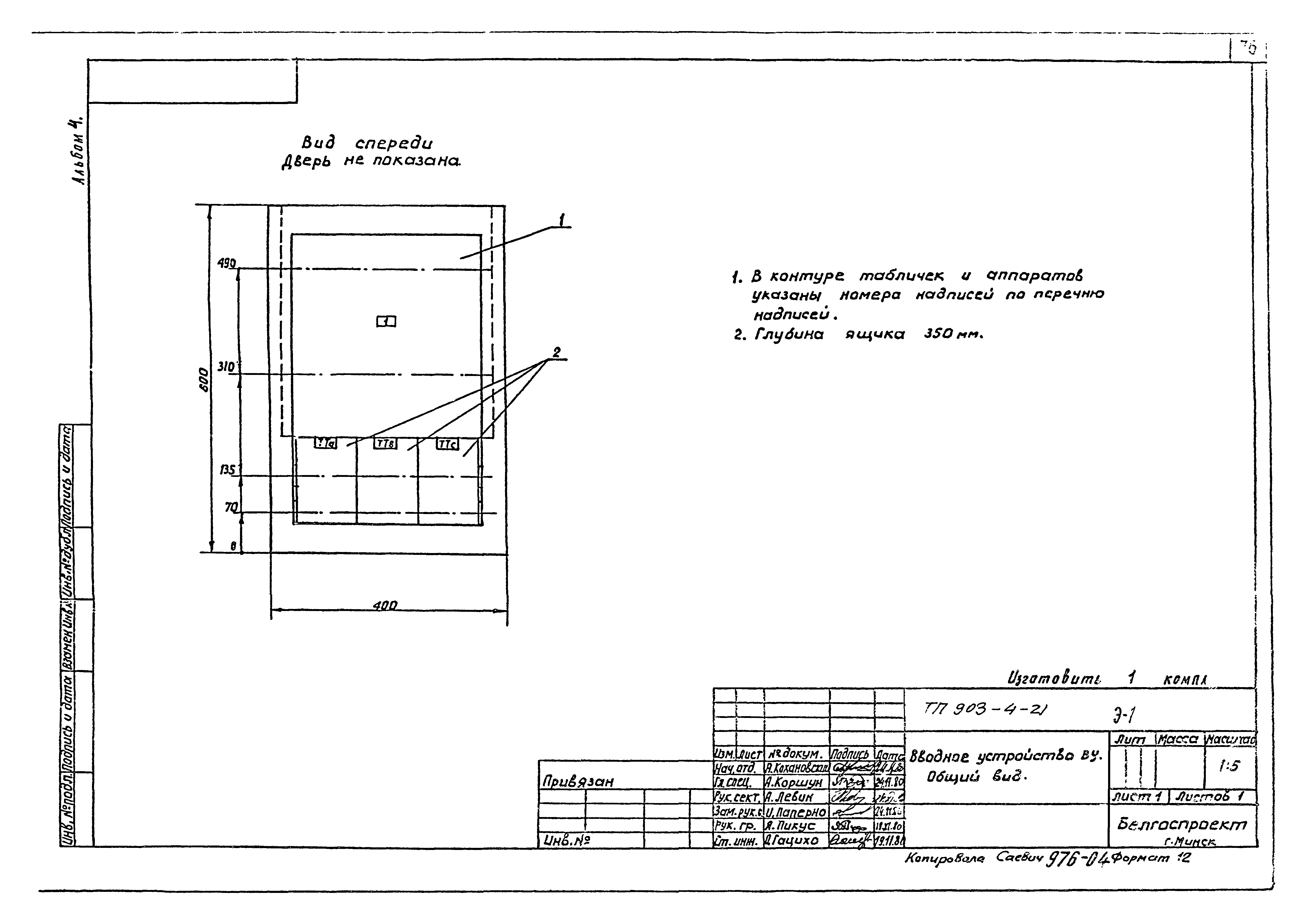
Скачать Типовой проект 903-4-21 Альбом 4. Том задания заводу-изготовителю щитовДата актуализации: 10.08.2017 Типовой проект 903-4-21
Альбом 4. Том задания заводу-изготовителю щитовОбозначение: | Типовой проект 903-4-21 | Обозначение англ: | 903-4-21 | Статус: | заменен | Название рус.: | Альбом 4. Том задания заводу-изготовителю щитов | Дата добавления в базу: | 01.02.2017 | Дата актуализации: | 05.05.2017 | Дата введения: | 01.05.1988 | Разработан: | Белгоспроект
| Утверждён: | 24.11.1980 Госстрой БССР (BSSR Gosstroy 163)
| Издан: | ЦИТП Госстроя СССР (CITP, Gosstroy (USSR) 1988 г. )
| Расположен в: |
| Чем заменён: | - Типовой проект 903-4-130.13.87 «Центральный тепловой пункт для нужд горячего водоснабжения теплопроизводительностью до 3,36 МВт, стены из кирпича (для строительства в Белорусской ССР)»
|
                                                                                
|