Информационная система
«Ёшкин Кот»

Скачать базу одним архивом
Скачать обновления
История создания базы
Карта сайта

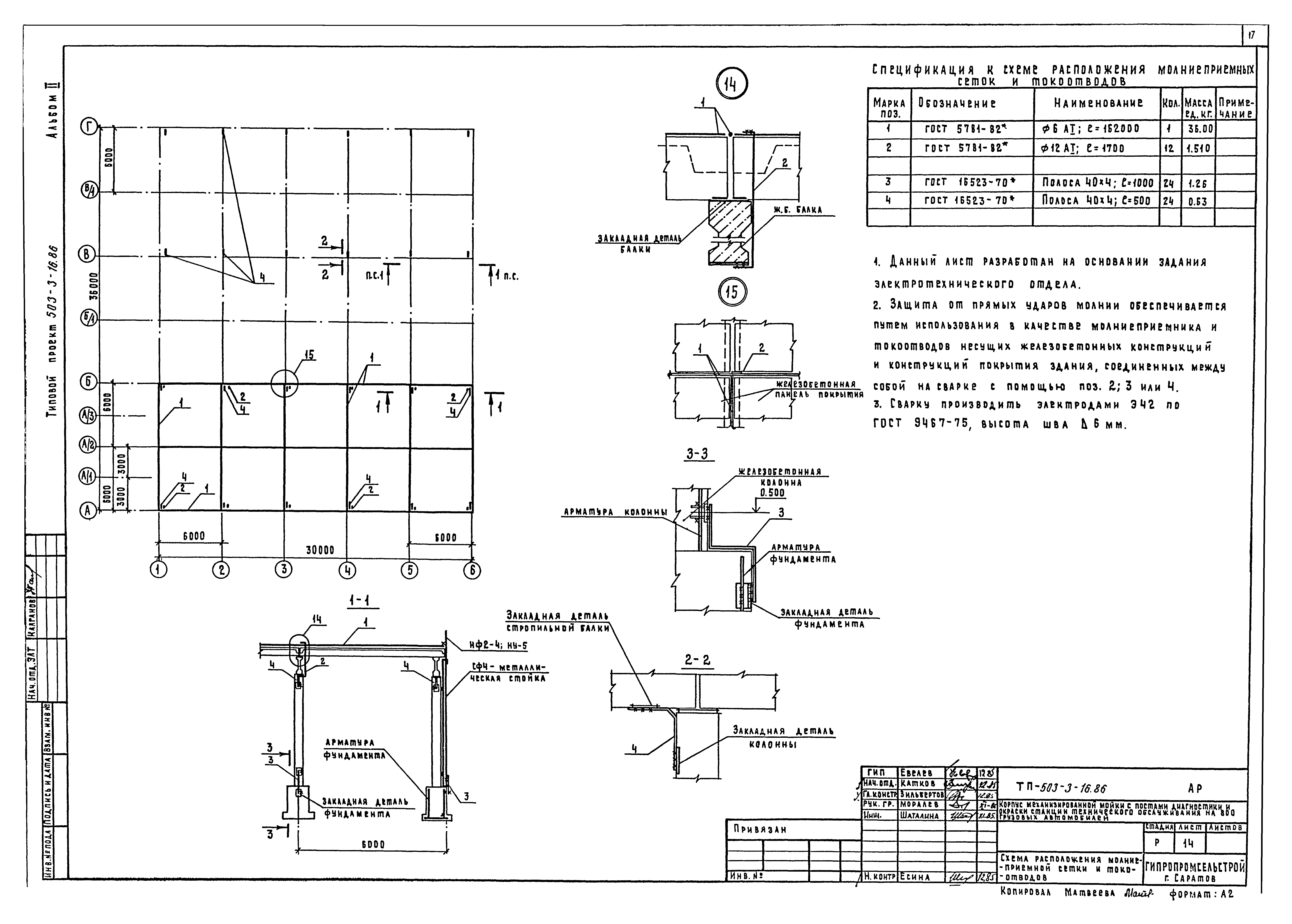
Скачать Типовой проект 503-3-16.86 Альбом II. Архитектурные решения. Конструкции железобетонные

Дата актуализации: 10.08.2017

Типовой проект 503-3-16.86

Альбом II. Архитектурные решения. Конструкции железобетонные

Обозначение: Типовой проект 503-3-16.86
Обозначение англ: 503-3-16.86
Статус:не определен законодательством
Название рус.:Альбом II. Архитектурные решения. Конструкции железобетонные
Дата добавления в базу:01.02.2017
Дата актуализации:05.05.2017
Дата введения:04.12.1985
Разработан: Гипропромсельстрой
Утверждён:04.12.1985 Госкомсельхозтехника СССР (67-85)
Издан: ЦИТП Госстроя СССР (CITP, Gosstroy (USSR) 1987 г. )
Расположен в:Техническая документация Строительство Справочные документы Типовые строительные конструкции, изделия и узлы Общероссийский строительный каталог Промышленные предприятия, здания и сооружения Предприятия, здания и сооружения транспорта Транспорт автомобильный Мойки и профилактории для грузовых и легковых автомобилей и автобусов
Заменяет собой:
  • Типовой проект 503-298
Типовой проект 503-3-16.86Типовой проект 503-3-16.86Типовой проект 503-3-16.86Типовой проект 503-3-16.86Типовой проект 503-3-16.86Типовой проект 503-3-16.86Типовой проект 503-3-16.86Типовой проект 503-3-16.86Типовой проект 503-3-16.86Типовой проект 503-3-16.86Типовой проект 503-3-16.86Типовой проект 503-3-16.86Типовой проект 503-3-16.86Типовой проект 503-3-16.86Типовой проект 503-3-16.86Типовой проект 503-3-16.86Типовой проект 503-3-16.86Типовой проект 503-3-16.86Типовой проект 503-3-16.86Типовой проект 503-3-16.86Типовой проект 503-3-16.86Типовой проект 503-3-16.86Типовой проект 503-3-16.86Типовой проект 503-3-16.86Типовой проект 503-3-16.86Типовой проект 503-3-16.86Типовой проект 503-3-16.86Типовой проект 503-3-16.86Типовой проект 503-3-16.86Типовой проект 503-3-16.86Типовой проект 503-3-16.86Типовой проект 503-3-16.86Типовой проект 503-3-16.86Типовой проект 503-3-16.86Типовой проект 503-3-16.86Типовой проект 503-3-16.86Типовой проект 503-3-16.86Типовой проект 503-3-16.86Типовой проект 503-3-16.86Типовой проект 503-3-16.86Типовой проект 503-3-16.86Типовой проект 503-3-16.86

© 2013 Ёшкин Кот :-) Карта сайта