Информационная система
«Ёшкин Кот»

Скачать базу одним архивом
Скачать обновления
История создания базы
Карта сайта

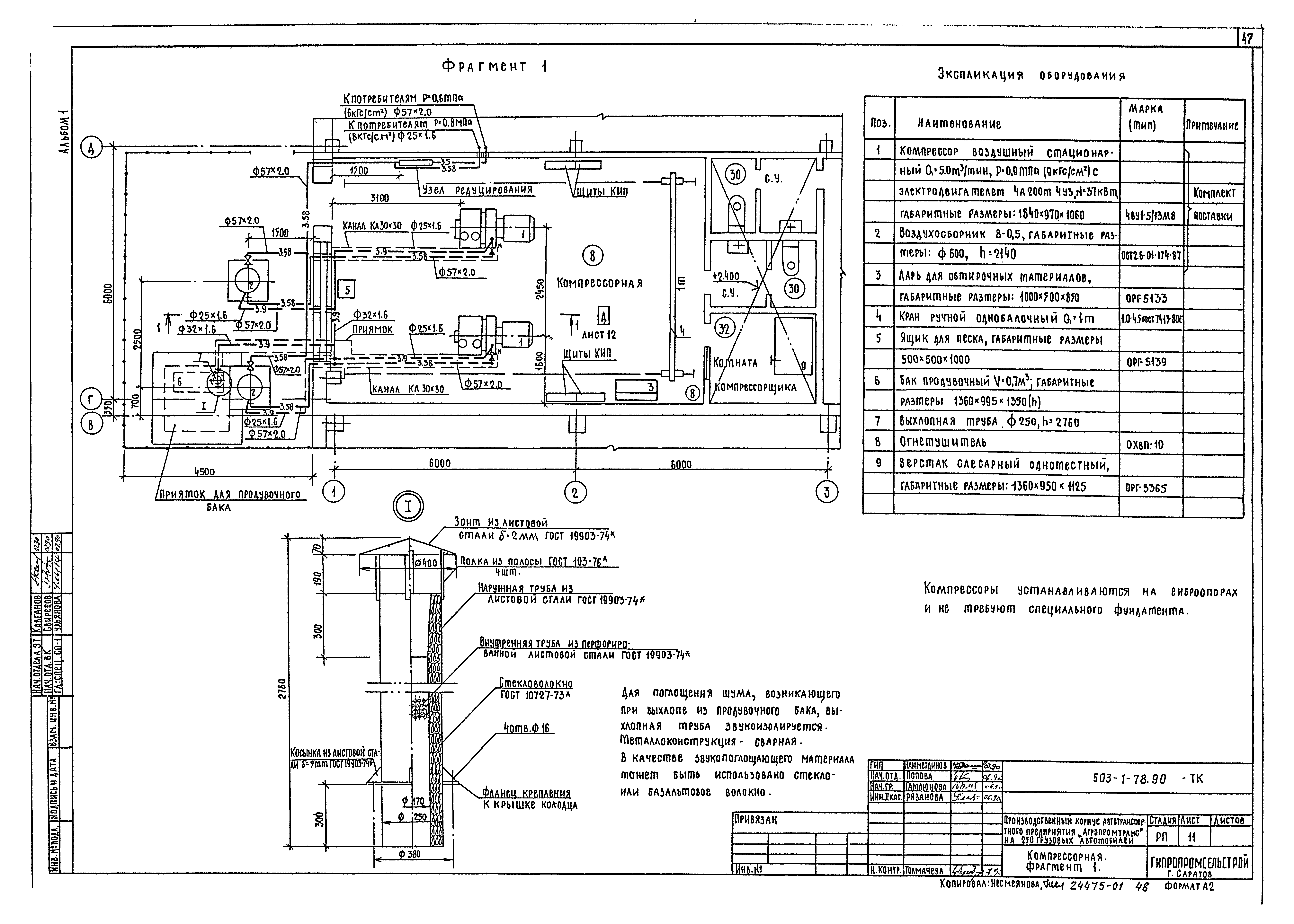
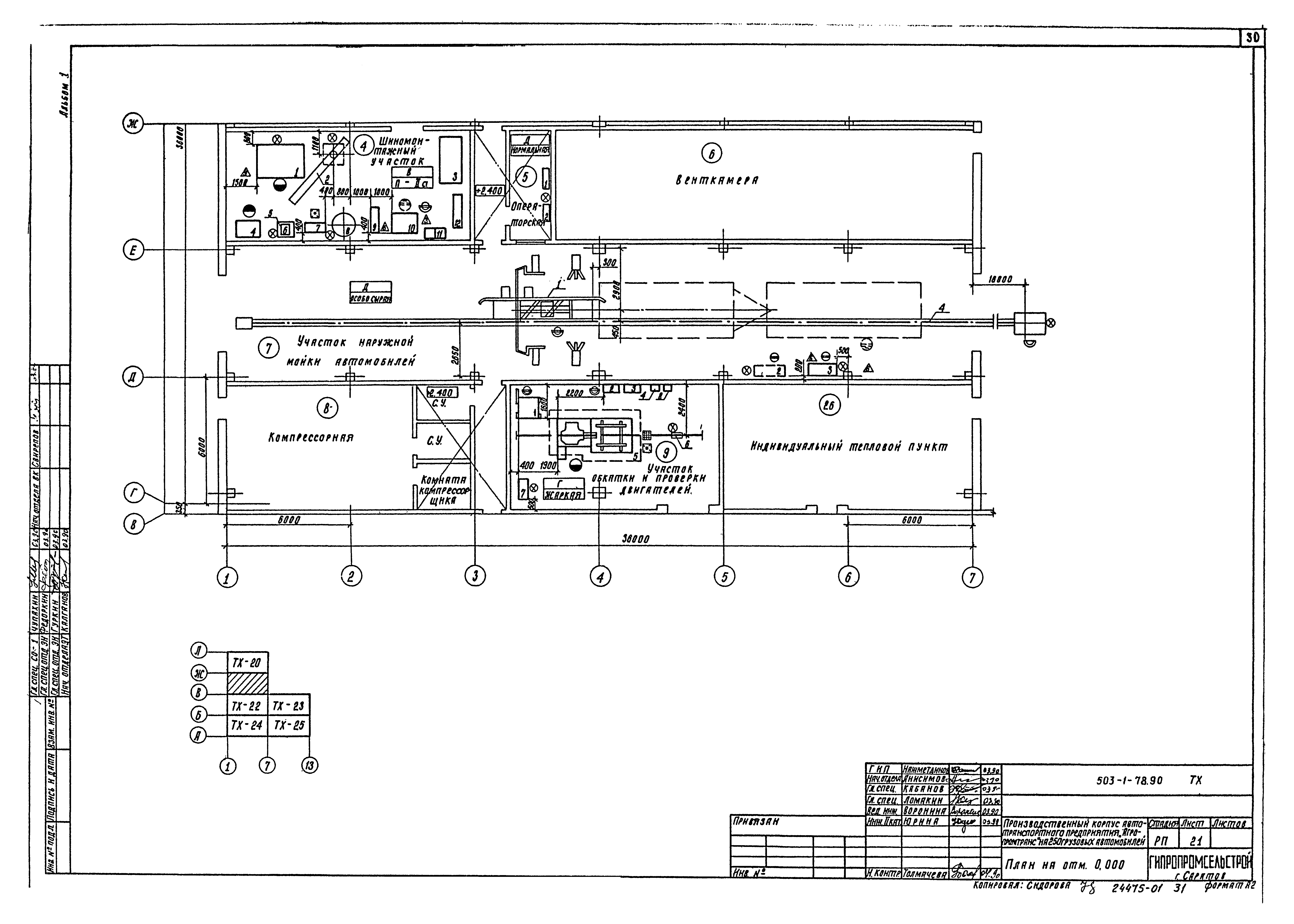
Скачать Типовой проект 503-1-78.90 Альбом 1. Пояснительная записка. Технология производства. Технологические коммуникации

Дата актуализации: 10.08.2017

Типовой проект 503-1-78.90

Альбом 1. Пояснительная записка. Технология производства. Технологические коммуникации

Обозначение: Типовой проект 503-1-78.90
Обозначение англ: 503-1-78.90
Статус:не определен законодательством
Название рус.:Альбом 1. Пояснительная записка. Технология производства. Технологические коммуникации
Дата добавления в базу:01.02.2017
Дата актуализации:05.05.2017
Дата введения:26.11.1990
Разработан: Гипропромсельстрой
Утверждён:23.11.1990 Гипропромсельстрой (22)
Издан: ЦИТП Госстроя СССР (CITP, Gosstroy (USSR) 1991 г. )
Расположен в:Техническая документация Строительство Справочные документы Типовые строительные конструкции, изделия и узлы Общероссийский строительный каталог Промышленные предприятия, здания и сооружения Предприятия, здания и сооружения транспорта Транспорт автомобильный Предприятия автотранспортные, гаражи и стоянки для грузовых автомобилей и механизмов
Типовой проект 503-1-78.90Типовой проект 503-1-78.90Типовой проект 503-1-78.90Типовой проект 503-1-78.90Типовой проект 503-1-78.90Типовой проект 503-1-78.90Типовой проект 503-1-78.90Типовой проект 503-1-78.90Типовой проект 503-1-78.90Типовой проект 503-1-78.90Типовой проект 503-1-78.90Типовой проект 503-1-78.90Типовой проект 503-1-78.90Типовой проект 503-1-78.90Типовой проект 503-1-78.90Типовой проект 503-1-78.90Типовой проект 503-1-78.90Типовой проект 503-1-78.90Типовой проект 503-1-78.90Типовой проект 503-1-78.90Типовой проект 503-1-78.90Типовой проект 503-1-78.90Типовой проект 503-1-78.90Типовой проект 503-1-78.90Типовой проект 503-1-78.90Типовой проект 503-1-78.90Типовой проект 503-1-78.90Типовой проект 503-1-78.90Типовой проект 503-1-78.90Типовой проект 503-1-78.90Типовой проект 503-1-78.90Типовой проект 503-1-78.90Типовой проект 503-1-78.90Типовой проект 503-1-78.90Типовой проект 503-1-78.90Типовой проект 503-1-78.90Типовой проект 503-1-78.90Типовой проект 503-1-78.90Типовой проект 503-1-78.90Типовой проект 503-1-78.90Типовой проект 503-1-78.90Типовой проект 503-1-78.90Типовой проект 503-1-78.90Типовой проект 503-1-78.90Типовой проект 503-1-78.90Типовой проект 503-1-78.90Типовой проект 503-1-78.90Типовой проект 503-1-78.90Типовой проект 503-1-78.90Типовой проект 503-1-78.90Типовой проект 503-1-78.90Типовой проект 503-1-78.90Типовой проект 503-1-78.90Типовой проект 503-1-78.90Типовой проект 503-1-78.90

© 2013 Ёшкин Кот :-) Карта сайта