Информационная система
«Ёшкин Кот»

Скачать базу одним архивом
Скачать обновления
История создания базы
Карта сайта

Скачать НП 1.2-71 Помещения жилых корпусов гостиниц

Дата актуализации: 10.08.2017

НП 1.2-71

Помещения жилых корпусов гостиниц

Обозначение: НП 1.2-71
Обозначение англ: NP 1.2-71
Статус:не действует
Название рус.:Помещения жилых корпусов гостиниц
Дата добавления в базу:01.02.2017
Дата актуализации:05.05.2017
Область применения:Издание нормалей предназначено для практического использования при проектировании жилых и общественных зданий. Нормалями предусматривается применение планировочных элементов для полносборного строительства зданий крупнопанельной и каркасной конструкции, а также зданий с несущими стенами из кирпича или блоков.
Оглавление:Введение
Раздел 1. Помещения жилых корпусов, оборудование, мебель
   1. Исходные данные, состав и площади основных помещений
   2. Исходные габариты
   3. Жилой номер. Наборы мебели
   4. Жилой номер. Типы мебели
   5. Жилой номер. Типы мебели
   6. Жилой номер. Группировка мебели
   7. Жилой номер. Встроенные шкафы
   8. Жилой номер на одного человека. Расстановка мебели
   9. Жилой номер на двух человек. Расстановка мебели
   10. Санитарный узел. Оборудование
   11. Жилой номер. Санитарный узел
   12. Санитарные узлы, общие поэтажные
   13. Душевые, общие поэтажные
   14. Передняя жилого номера
   15. Поэтажный холл. Группировка мебели и примеры планировке
Раздел 2. Лестницы, лифты
   16. Основные параметры лестниц
   17. Типы и параметры обычных пассажирских лифтов
   18. Типы и параметры обычных пассажирских лифтов
   19. Типы в параметры обычных пассажирских лифтов
   20. Типы и параметры обычных пассажирских лифтов
   21. Типы п параметры скоростных пассажирских лифтов
   22. Типы и параметры скоростных пассажирских лифтов
Раздел 3. Примеры планировки групп помещений и жилых корпусов
   23. Жилой номер с умывальником на одного человека
   24. Жилой номер с санитарным узлом на одного человека
   25. Жилой номер на двух человек
   26. Жилой номер на двух-трех человек (люкс)
   27. Туристский номер на трех человек
   28. Туристский номер на четырех человек
   29. Туристский номер на пять человек
   30. Туристский номер на шесть человек
   31. Обслуживающие помещения в зданиях гостиниц
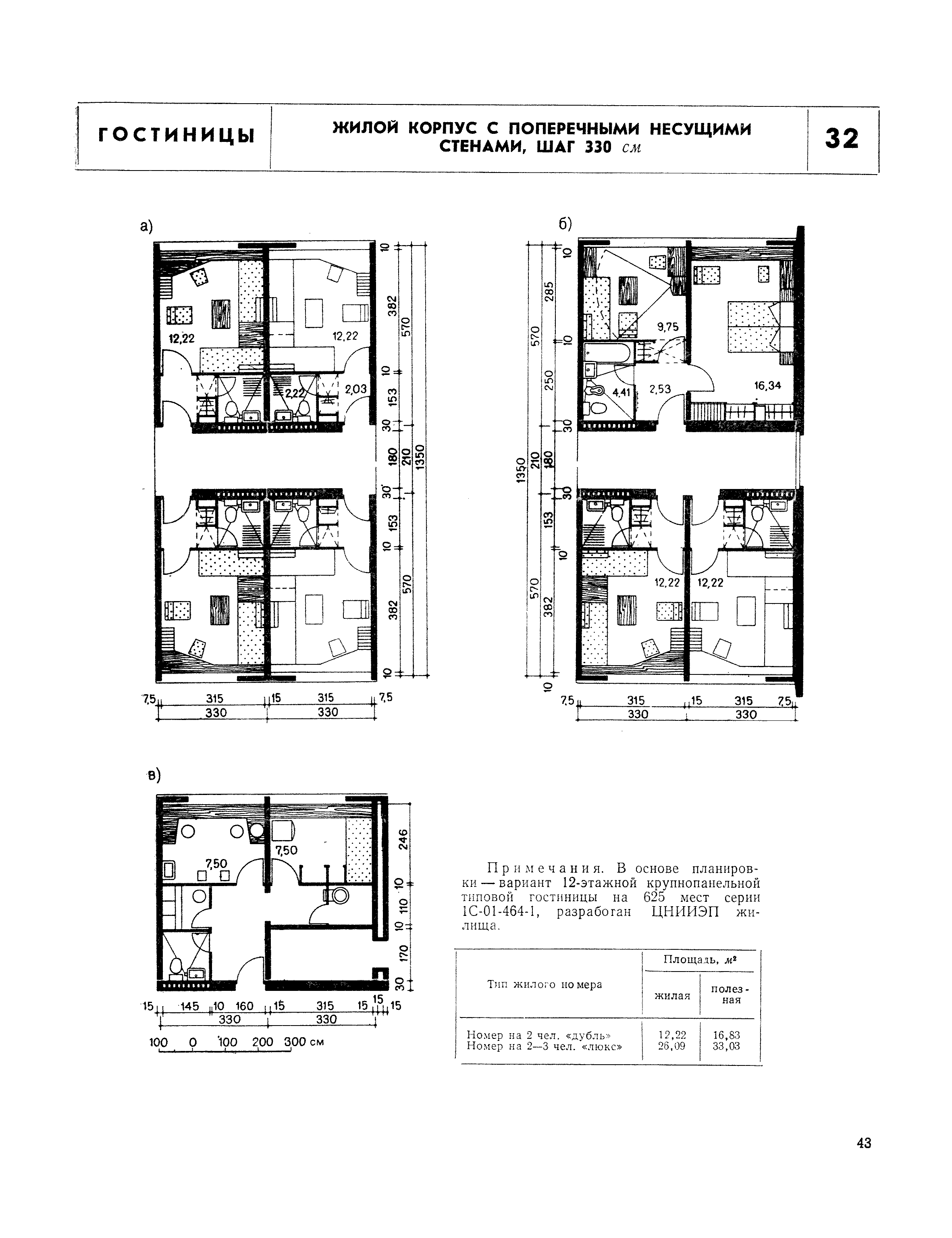
   32. Жилой корпус с поперечными несущими стенами, шаг 330 см
   33. Жилой корпус с поперечными несущими стенами, шаг 600 см
   34. Жилой корпус с продольными несущими стенами, шаг 600 см
   35. Жилой корпус каркасной конструкции, шаг 600 см
   36. Жилой корпус каркасной конструкции, шаг 750 см
Разработан: ГипроНИИ Академии наук СССР
ЦНИИЭП граждансельстрой
ЦНИИЭП зрелищных зданий и спортивных сооружений Госгражданстроя
Гипровуз Гособразования СССР
Гипротеатр Минкультуры СССР
КиевЗНИИЭП
Союзспортпроект Спорткомитета СССР
Гипроторг
ЦНИИЭП лечебно-курортных зданий Госгражданстроя
Гипроздрав
Гипропрос
ЦНИИЭП торговых зданий Госгражданстроя СССР
ЦНИИЭП учебных зданий
ЦНИИЭП жилища
МНИИТЭП ГАПУ г. Москвы
Утверждён: ЦНИИЭП жилища Госгражданстроя
Издан: Издательство литературы по строительству (1971 г. )
Расположен в:Техническая документация Строительство Справочные документы Нормали основных планировочных элементов жилых и общественных зданий
Нормативные ссылки:
НП 1.2-71НП 1.2-71НП 1.2-71НП 1.2-71НП 1.2-71НП 1.2-71НП 1.2-71НП 1.2-71НП 1.2-71НП 1.2-71НП 1.2-71НП 1.2-71НП 1.2-71НП 1.2-71НП 1.2-71НП 1.2-71НП 1.2-71НП 1.2-71НП 1.2-71НП 1.2-71НП 1.2-71НП 1.2-71НП 1.2-71НП 1.2-71НП 1.2-71НП 1.2-71НП 1.2-71НП 1.2-71НП 1.2-71НП 1.2-71НП 1.2-71НП 1.2-71НП 1.2-71НП 1.2-71НП 1.2-71НП 1.2-71НП 1.2-71НП 1.2-71НП 1.2-71НП 1.2-71НП 1.2-71НП 1.2-71НП 1.2-71НП 1.2-71НП 1.2-71НП 1.2-71НП 1.2-71НП 1.2-71НП 1.2-71

© 2013 Ёшкин Кот :-) Карта сайта