Информационная система
«Ёшкин Кот»

Скачать базу одним архивом
Скачать обновления
История создания базы
Карта сайта

Скачать Типовой проект 813-2-64.91 Альбом 2. Архитектурные решения. Конструкции железобетонные. Конструкции металлические. Отопление и вентиляция. Внутренние водопровод и канализация

Дата актуализации: 10.08.2017

Типовой проект 813-2-64.91

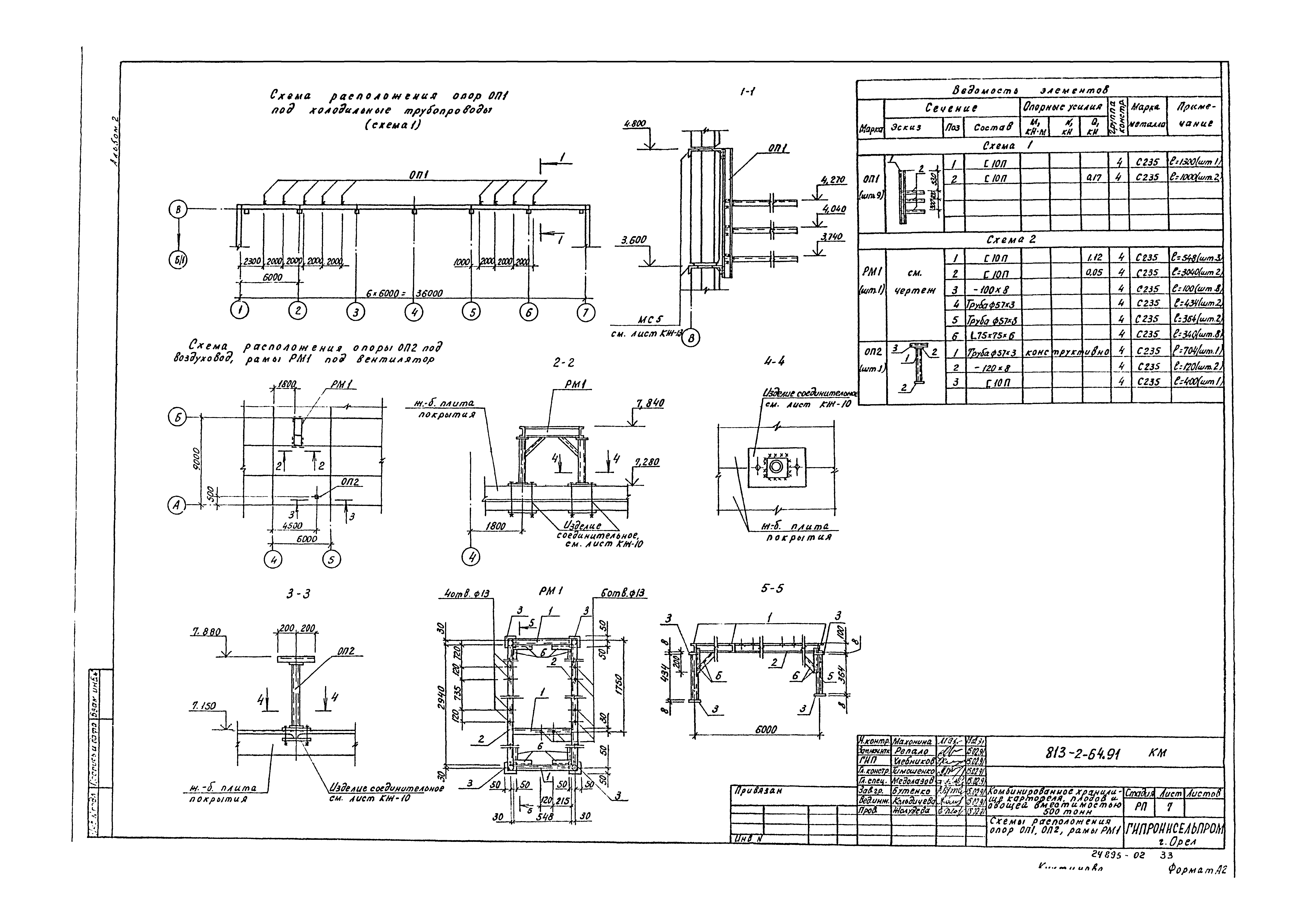
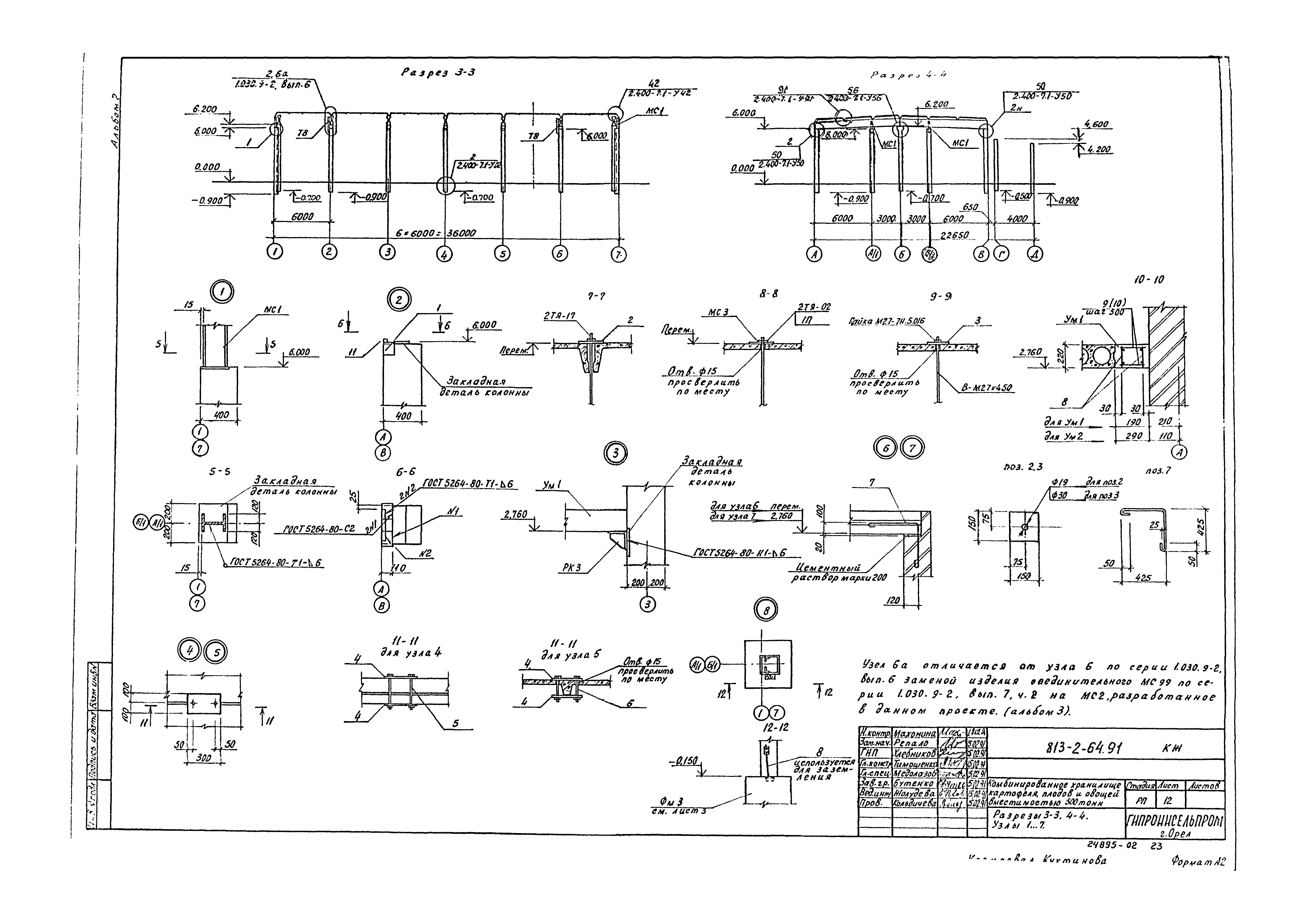
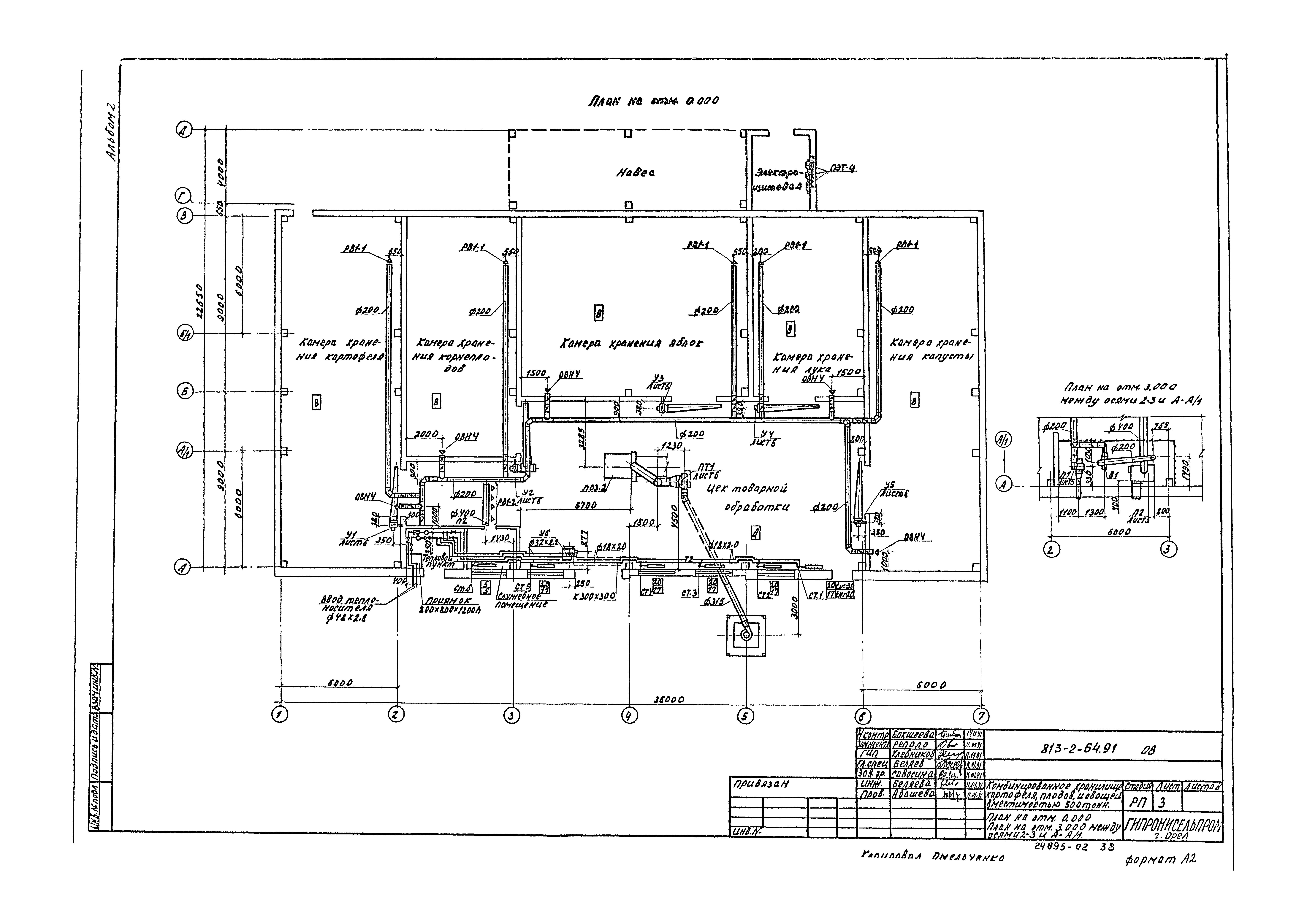
Альбом 2. Архитектурные решения. Конструкции железобетонные. Конструкции металлические. Отопление и вентиляция. Внутренние водопровод и канализация

Обозначение: Типовой проект 813-2-64.91
Обозначение англ: 813-2-64.91
Статус:не определен законодательством
Название рус.:Альбом 2. Архитектурные решения. Конструкции железобетонные. Конструкции металлические. Отопление и вентиляция. Внутренние водопровод и канализация
Дата добавления в базу:12.02.2016
Дата актуализации:05.05.2017
Дата введения:18.06.1991
Разработан: ФГУП Гипронисельпром (Гипронисельпром)
Утверждён:18.06.1991 Главагропромнаучпроект Госкомиссии СМ СССР по продовольствию и закупкам (28)
Издан: АПП ЦИТП (1991 г. )
Расположен в:Техническая документация Строительство Справочные документы Типовые строительные конструкции, изделия и узлы Общероссийский строительный каталог Сельскохозяйственные предприятия, здания и сооружения Предприятия, здания и сооружения для хранения зерна, семян, картофеля, овощей, фруктов и другой сельскохозяйственной продукции Комбинированные хранилища
Типовой проект 813-2-64.91Типовой проект 813-2-64.91Типовой проект 813-2-64.91Типовой проект 813-2-64.91Типовой проект 813-2-64.91Типовой проект 813-2-64.91Типовой проект 813-2-64.91Типовой проект 813-2-64.91Типовой проект 813-2-64.91Типовой проект 813-2-64.91Типовой проект 813-2-64.91Типовой проект 813-2-64.91Типовой проект 813-2-64.91Типовой проект 813-2-64.91Типовой проект 813-2-64.91Типовой проект 813-2-64.91Типовой проект 813-2-64.91Типовой проект 813-2-64.91Типовой проект 813-2-64.91Типовой проект 813-2-64.91Типовой проект 813-2-64.91Типовой проект 813-2-64.91Типовой проект 813-2-64.91Типовой проект 813-2-64.91Типовой проект 813-2-64.91Типовой проект 813-2-64.91Типовой проект 813-2-64.91Типовой проект 813-2-64.91Типовой проект 813-2-64.91Типовой проект 813-2-64.91Типовой проект 813-2-64.91Типовой проект 813-2-64.91Типовой проект 813-2-64.91Типовой проект 813-2-64.91Типовой проект 813-2-64.91Типовой проект 813-2-64.91Типовой проект 813-2-64.91Типовой проект 813-2-64.91Типовой проект 813-2-64.91Типовой проект 813-2-64.91Типовой проект 813-2-64.91Типовой проект 813-2-64.91Типовой проект 813-2-64.91Типовой проект 813-2-64.91Типовой проект 813-2-64.91Типовой проект 813-2-64.91Типовой проект 813-2-64.91

© 2013 Ёшкин Кот :-) Карта сайта