Информационная система
«Ёшкин Кот»

Скачать базу одним архивом
Скачать обновления
История создания базы
Карта сайта

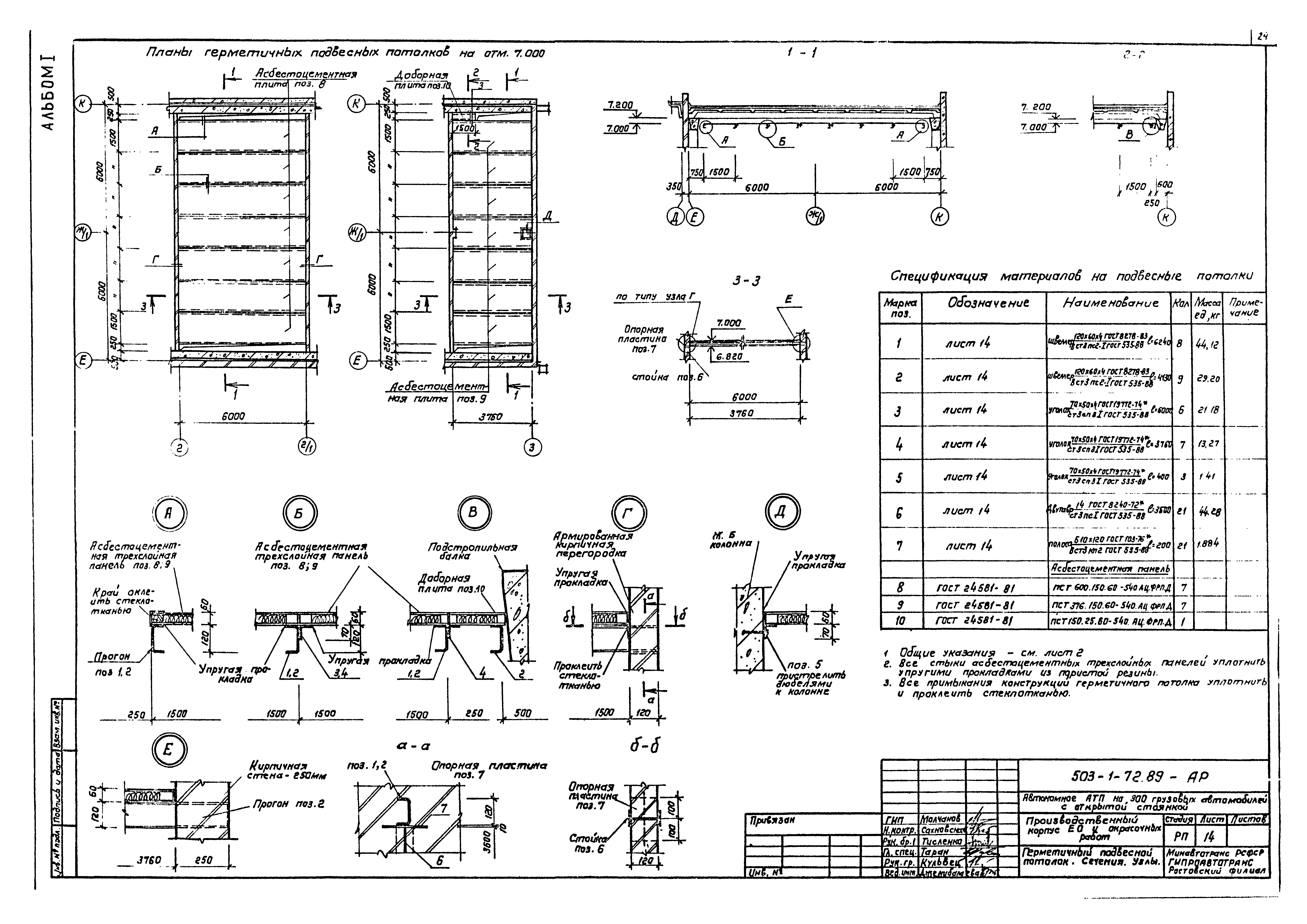
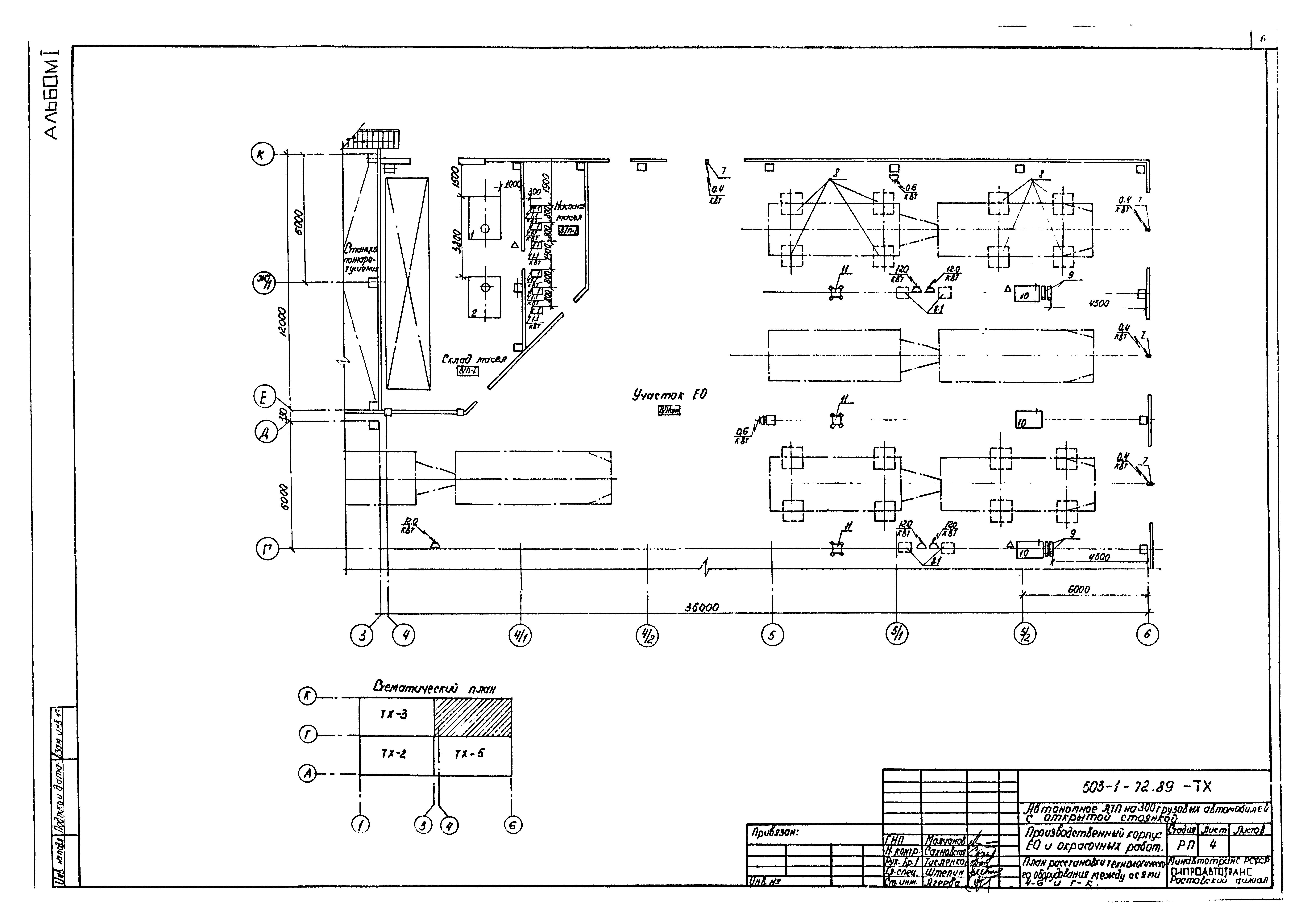
Скачать Типовой проект 503-1-72.89 Альбом I. Технологические решения. Архитектурные решения. Конструкции железобетонные. Конструкции металлические

Дата актуализации: 10.08.2017

Типовой проект 503-1-72.89

Альбом I. Технологические решения. Архитектурные решения. Конструкции железобетонные. Конструкции металлические

Обозначение: Типовой проект 503-1-72.89
Обозначение англ: 503-1-72.89
Статус:не определен законодательством
Название рус.:Альбом I. Технологические решения. Архитектурные решения. Конструкции железобетонные. Конструкции металлические
Дата добавления в базу:12.02.2016
Дата актуализации:05.05.2017
Дата введения:23.05.1989
Разработан: ГПИ Спецавтоматика Минприбора
Ростовский филиал Гипроавтотранса Минавтотранса РСФСР
Утверждён:23.05.1989 Минавтотранс РСФСР (Russian Federation Minavtotrans 4)
Издан: ЦИТП Госстроя СССР (CITP, Gosstroy (USSR) 1990 г. )
Расположен в:Техническая документация Строительство Справочные документы Типовые строительные конструкции, изделия и узлы Общероссийский строительный каталог Промышленные предприятия, здания и сооружения Предприятия, здания и сооружения транспорта Транспорт автомобильный Предприятия автотранспортные, гаражи и стоянки для грузовых автомобилей и механизмов
Типовой проект 503-1-72.89Типовой проект 503-1-72.89Типовой проект 503-1-72.89Типовой проект 503-1-72.89Типовой проект 503-1-72.89Типовой проект 503-1-72.89Типовой проект 503-1-72.89Типовой проект 503-1-72.89Типовой проект 503-1-72.89Типовой проект 503-1-72.89Типовой проект 503-1-72.89Типовой проект 503-1-72.89Типовой проект 503-1-72.89Типовой проект 503-1-72.89Типовой проект 503-1-72.89Типовой проект 503-1-72.89Типовой проект 503-1-72.89Типовой проект 503-1-72.89Типовой проект 503-1-72.89Типовой проект 503-1-72.89Типовой проект 503-1-72.89Типовой проект 503-1-72.89Типовой проект 503-1-72.89Типовой проект 503-1-72.89Типовой проект 503-1-72.89Типовой проект 503-1-72.89Типовой проект 503-1-72.89Типовой проект 503-1-72.89Типовой проект 503-1-72.89Типовой проект 503-1-72.89Типовой проект 503-1-72.89Типовой проект 503-1-72.89Типовой проект 503-1-72.89Типовой проект 503-1-72.89Типовой проект 503-1-72.89Типовой проект 503-1-72.89Типовой проект 503-1-72.89Типовой проект 503-1-72.89Типовой проект 503-1-72.89Типовой проект 503-1-72.89Типовой проект 503-1-72.89Типовой проект 503-1-72.89Типовой проект 503-1-72.89Типовой проект 503-1-72.89Типовой проект 503-1-72.89Типовой проект 503-1-72.89Типовой проект 503-1-72.89Типовой проект 503-1-72.89Типовой проект 503-1-72.89Типовой проект 503-1-72.89Типовой проект 503-1-72.89Типовой проект 503-1-72.89Типовой проект 503-1-72.89Типовой проект 503-1-72.89Типовой проект 503-1-72.89Типовой проект 503-1-72.89Типовой проект 503-1-72.89Типовой проект 503-1-72.89Типовой проект 503-1-72.89Типовой проект 503-1-72.89Типовой проект 503-1-72.89Типовой проект 503-1-72.89Типовой проект 503-1-72.89Типовой проект 503-1-72.89Типовой проект 503-1-72.89Типовой проект 503-1-72.89Типовой проект 503-1-72.89Типовой проект 503-1-72.89Типовой проект 503-1-72.89Типовой проект 503-1-72.89Типовой проект 503-1-72.89Типовой проект 503-1-72.89Типовой проект 503-1-72.89Типовой проект 503-1-72.89Типовой проект 503-1-72.89Типовой проект 503-1-72.89Типовой проект 503-1-72.89Типовой проект 503-1-72.89Типовой проект 503-1-72.89Типовой проект 503-1-72.89Типовой проект 503-1-72.89Типовой проект 503-1-72.89Типовой проект 503-1-72.89Типовой проект 503-1-72.89Типовой проект 503-1-72.89Типовой проект 503-1-72.89Типовой проект 503-1-72.89

© 2013 Ёшкин Кот :-) Карта сайта