Информационная система
«Ёшкин Кот»

Скачать базу одним архивом
Скачать обновления
История создания базы
Карта сайта

Скачать Типовой проект 903-4-24 Альбом I. Архитектурно-строительные решения. Отопление и вентиляция. Внутренний водопровод и канализация. Технологические коммуникации (трубопроводы). Электрооборудование. Автоматизация

Дата актуализации: 10.08.2017

Типовой проект 903-4-24

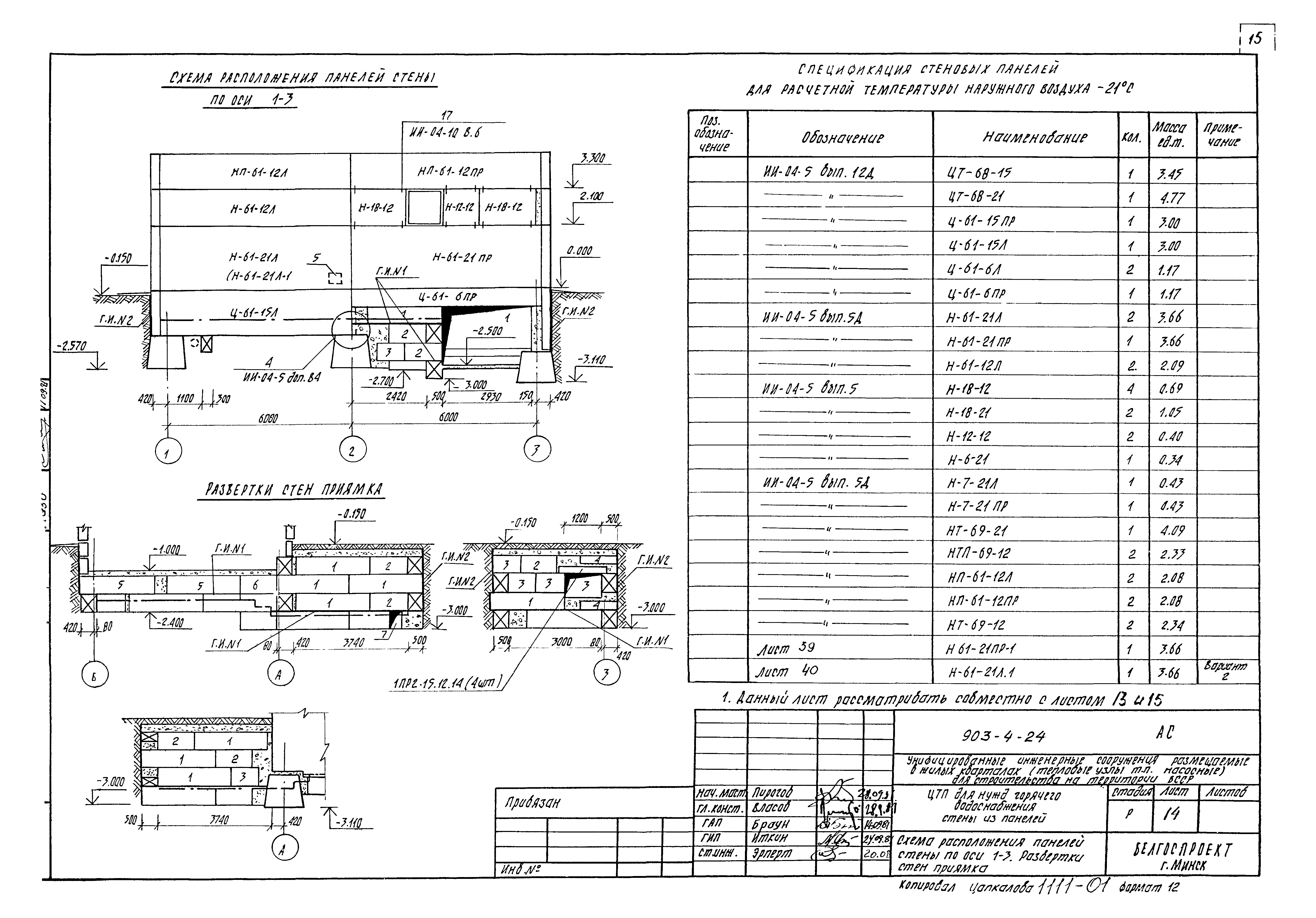
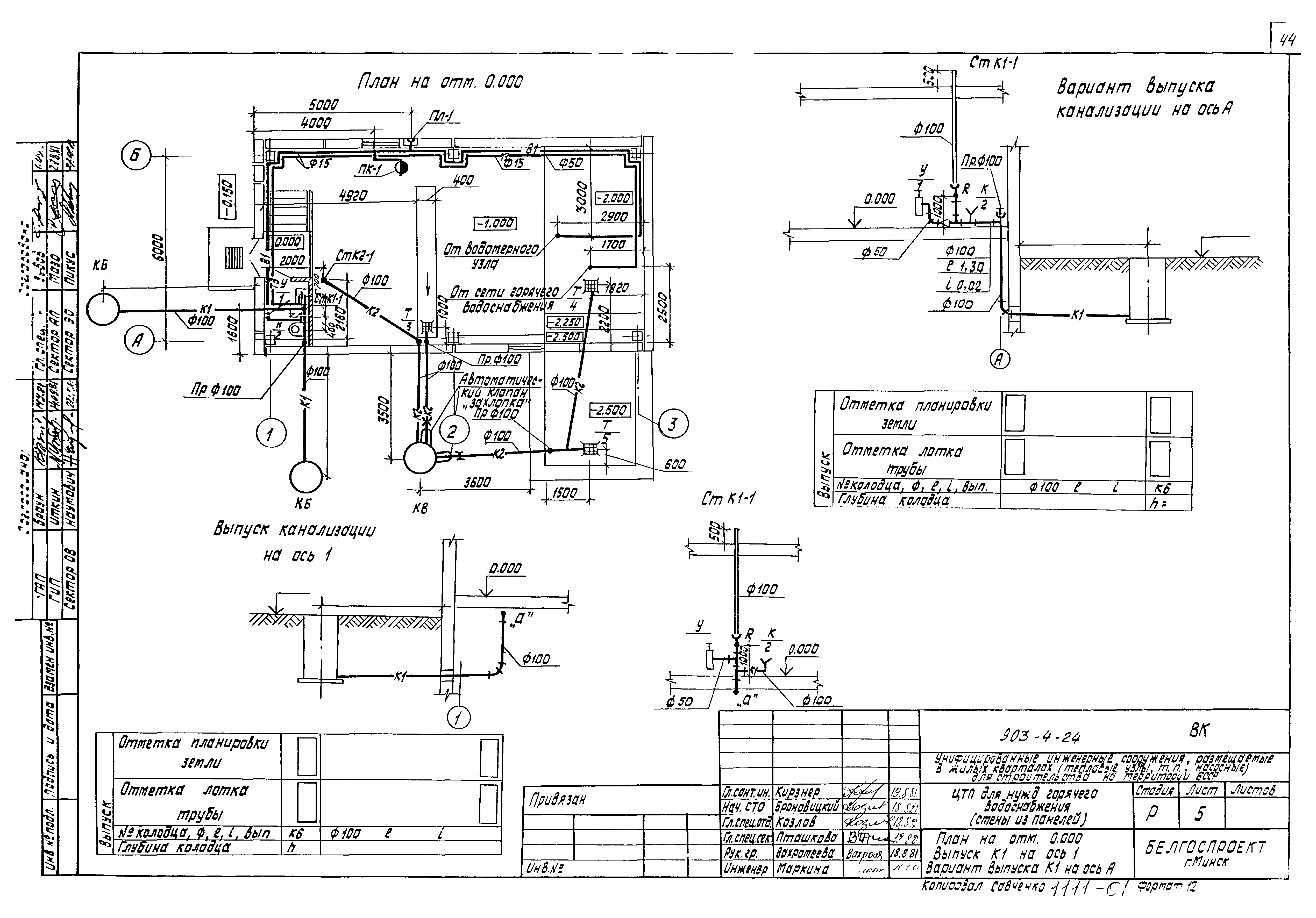
Альбом I. Архитектурно-строительные решения. Отопление и вентиляция. Внутренний водопровод и канализация. Технологические коммуникации (трубопроводы). Электрооборудование. Автоматизация

Обозначение: Типовой проект 903-4-24
Обозначение англ: 903-4-24
Статус:заменен
Название рус.:Альбом I. Архитектурно-строительные решения. Отопление и вентиляция. Внутренний водопровод и канализация. Технологические коммуникации (трубопроводы). Электрооборудование. Автоматизация
Дата добавления в базу:12.02.2016
Дата актуализации:05.05.2017
Дата введения:01.05.1988
Разработан: Белгоспроект
Утверждён:17.09.1980 Госстрой БССР (BSSR Gosstroy 127)
Издан: ЦИТП Госстроя СССР (CITP, Gosstroy (USSR) 1983 г. )
Расположен в:Техническая документация Строительство Справочные документы Типовые строительные конструкции, изделия и узлы Общероссийский строительный каталог Промышленные предприятия, здания и сооружения Здания и сооружения санитарно-технические Теплоснабжение Сооружения тепловых сетей Центральные тепловые пункты
Чем заменён:
  • Типовой проект 903-4-135.13.87 «Центральный тепловой пункт для нужд горячего водоснабжения и отопления теплопроизводительностью до 16,28 МВт, стены из панелей (для строительства в Белорусской ССР)»
Типовой проект 903-4-24Типовой проект 903-4-24Типовой проект 903-4-24Типовой проект 903-4-24Типовой проект 903-4-24Типовой проект 903-4-24Типовой проект 903-4-24Типовой проект 903-4-24Типовой проект 903-4-24Типовой проект 903-4-24Типовой проект 903-4-24Типовой проект 903-4-24Типовой проект 903-4-24Типовой проект 903-4-24Типовой проект 903-4-24Типовой проект 903-4-24Типовой проект 903-4-24Типовой проект 903-4-24Типовой проект 903-4-24Типовой проект 903-4-24Типовой проект 903-4-24Типовой проект 903-4-24Типовой проект 903-4-24Типовой проект 903-4-24Типовой проект 903-4-24Типовой проект 903-4-24Типовой проект 903-4-24Типовой проект 903-4-24Типовой проект 903-4-24Типовой проект 903-4-24Типовой проект 903-4-24Типовой проект 903-4-24Типовой проект 903-4-24Типовой проект 903-4-24Типовой проект 903-4-24Типовой проект 903-4-24Типовой проект 903-4-24Типовой проект 903-4-24Типовой проект 903-4-24Типовой проект 903-4-24Типовой проект 903-4-24Типовой проект 903-4-24Типовой проект 903-4-24Типовой проект 903-4-24Типовой проект 903-4-24Типовой проект 903-4-24Типовой проект 903-4-24Типовой проект 903-4-24Типовой проект 903-4-24Типовой проект 903-4-24Типовой проект 903-4-24Типовой проект 903-4-24Типовой проект 903-4-24Типовой проект 903-4-24Типовой проект 903-4-24Типовой проект 903-4-24Типовой проект 903-4-24Типовой проект 903-4-24Типовой проект 903-4-24Типовой проект 903-4-24Типовой проект 903-4-24Типовой проект 903-4-24Типовой проект 903-4-24Типовой проект 903-4-24Типовой проект 903-4-24Типовой проект 903-4-24Типовой проект 903-4-24Типовой проект 903-4-24Типовой проект 903-4-24Типовой проект 903-4-24Типовой проект 903-4-24Типовой проект 903-4-24Типовой проект 903-4-24Типовой проект 903-4-24Типовой проект 903-4-24Типовой проект 903-4-24Типовой проект 903-4-24Типовой проект 903-4-24Типовой проект 903-4-24Типовой проект 903-4-24Типовой проект 903-4-24Типовой проект 903-4-24Типовой проект 903-4-24Типовой проект 903-4-24Типовой проект 903-4-24Типовой проект 903-4-24Типовой проект 903-4-24Типовой проект 903-4-24Типовой проект 903-4-24Типовой проект 903-4-24Типовой проект 903-4-24Типовой проект 903-4-24Типовой проект 903-4-24Типовой проект 903-4-24Типовой проект 903-4-24Типовой проект 903-4-24Типовой проект 903-4-24Типовой проект 903-4-24Типовой проект 903-4-24Типовой проект 903-4-24Типовой проект 903-4-24Типовой проект 903-4-24Типовой проект 903-4-24

© 2013 Ёшкин Кот :-) Карта сайта