Информационная система
«Ёшкин Кот»

Скачать базу одним архивом
Скачать обновления
История создания базы
Карта сайта

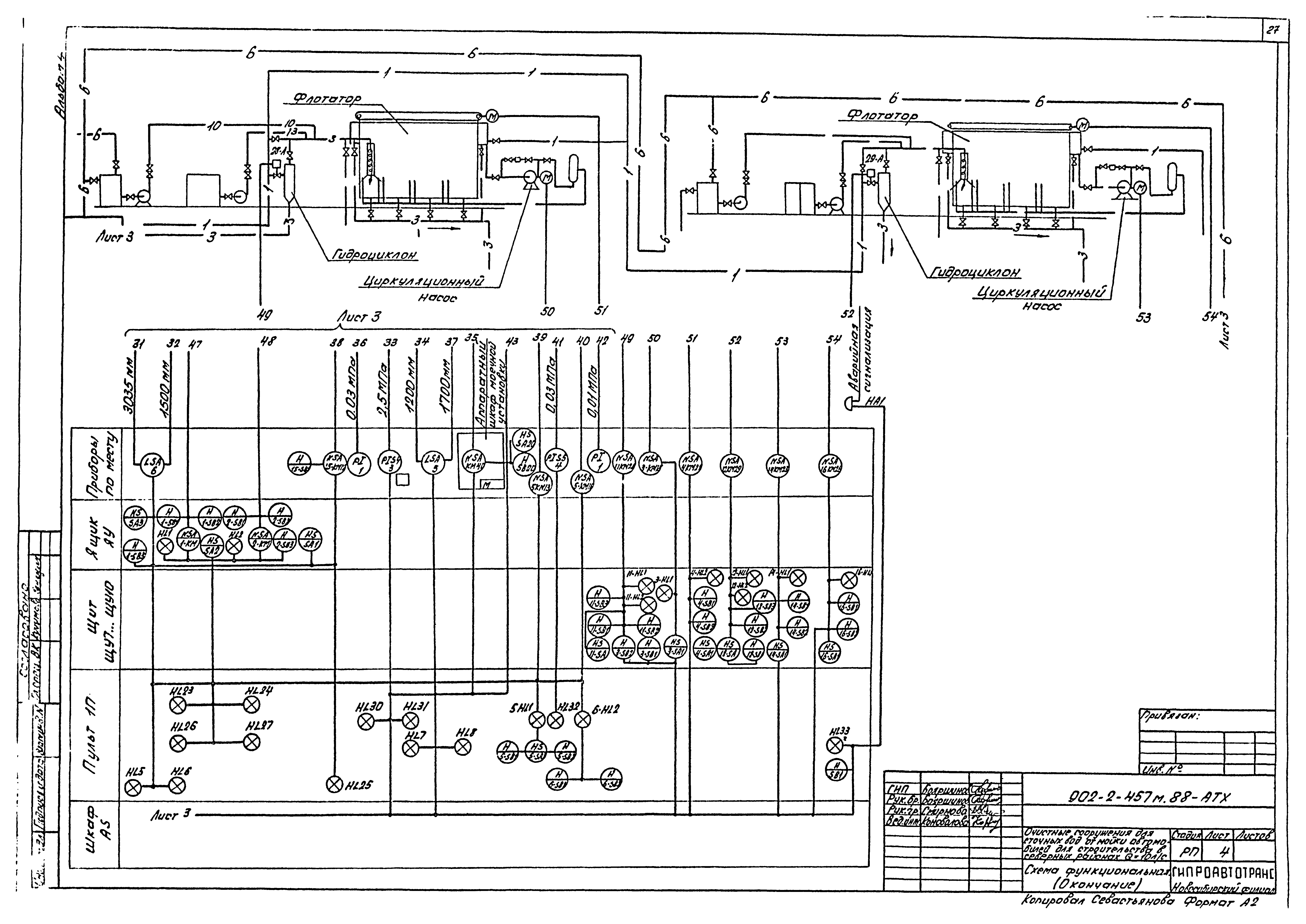
Скачать Типовой проект 902-2-457м.88 Альбом 4. Силовое электрооборудование. Электрическое освещение. Автоматизация санитарно-технических систем. Связь и сигнализация

Дата актуализации: 10.08.2017

Типовой проект 902-2-457м.88

Альбом 4. Силовое электрооборудование. Электрическое освещение. Автоматизация санитарно-технических систем. Связь и сигнализация

Обозначение: Типовой проект 902-2-457м.88
Обозначение англ: 902-2-457м.88
Статус:не определен законодательством
Название рус.:Альбом 4. Силовое электрооборудование. Электрическое освещение. Автоматизация санитарно-технических систем. Связь и сигнализация
Дата добавления в базу:12.02.2016
Дата актуализации:05.05.2017
Дата введения:01.09.1988
Разработан: Гипроавтотранс
Утверждён:01.09.1988 Минавтотранс РСФСР (Russian Federation Minavtotrans 8)
Издан: ЦИТП Госстроя СССР (CITP, Gosstroy (USSR) 1989 г. )
Расположен в:Техническая документация Строительство Справочные документы Типовые строительные конструкции, изделия и узлы Общероссийский строительный каталог Промышленные предприятия, здания и сооружения Здания и сооружения санитарно-технические Канализация Сооружения для очистки производственных сточных вод Сооружения для очистки сточных вод от мойки автомобилей
Типовой проект 902-2-457м.88Типовой проект 902-2-457м.88Типовой проект 902-2-457м.88Типовой проект 902-2-457м.88Типовой проект 902-2-457м.88Типовой проект 902-2-457м.88Типовой проект 902-2-457м.88Типовой проект 902-2-457м.88Типовой проект 902-2-457м.88Типовой проект 902-2-457м.88Типовой проект 902-2-457м.88Типовой проект 902-2-457м.88Типовой проект 902-2-457м.88Типовой проект 902-2-457м.88Типовой проект 902-2-457м.88Типовой проект 902-2-457м.88Типовой проект 902-2-457м.88Типовой проект 902-2-457м.88Типовой проект 902-2-457м.88Типовой проект 902-2-457м.88Типовой проект 902-2-457м.88Типовой проект 902-2-457м.88Типовой проект 902-2-457м.88Типовой проект 902-2-457м.88Типовой проект 902-2-457м.88Типовой проект 902-2-457м.88Типовой проект 902-2-457м.88Типовой проект 902-2-457м.88Типовой проект 902-2-457м.88Типовой проект 902-2-457м.88Типовой проект 902-2-457м.88Типовой проект 902-2-457м.88Типовой проект 902-2-457м.88Типовой проект 902-2-457м.88Типовой проект 902-2-457м.88Типовой проект 902-2-457м.88Типовой проект 902-2-457м.88Типовой проект 902-2-457м.88Типовой проект 902-2-457м.88Типовой проект 902-2-457м.88Типовой проект 902-2-457м.88Типовой проект 902-2-457м.88Типовой проект 902-2-457м.88Типовой проект 902-2-457м.88Типовой проект 902-2-457м.88Типовой проект 902-2-457м.88Типовой проект 902-2-457м.88Типовой проект 902-2-457м.88Типовой проект 902-2-457м.88Типовой проект 902-2-457м.88

© 2013 Ёшкин Кот :-) Карта сайта