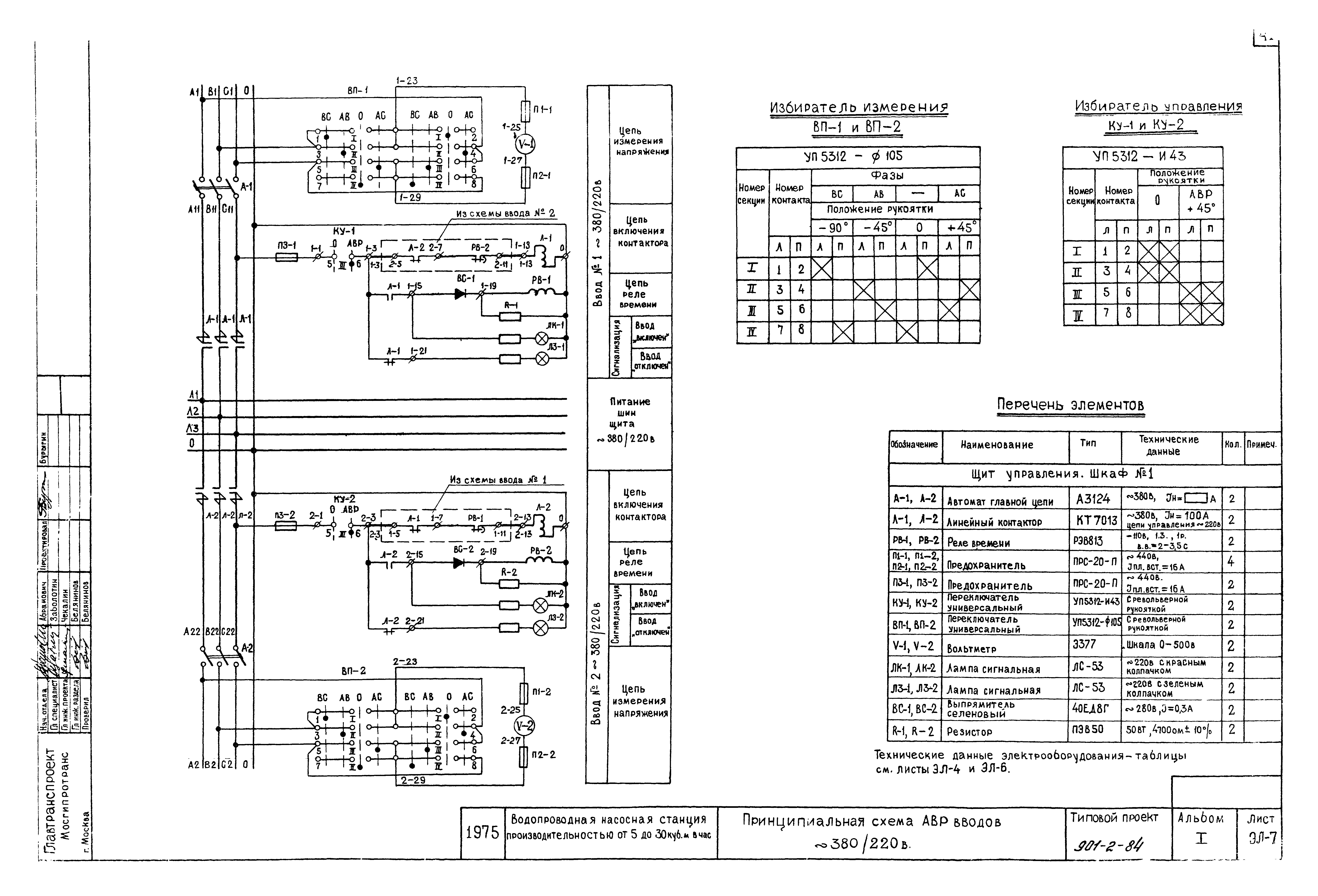
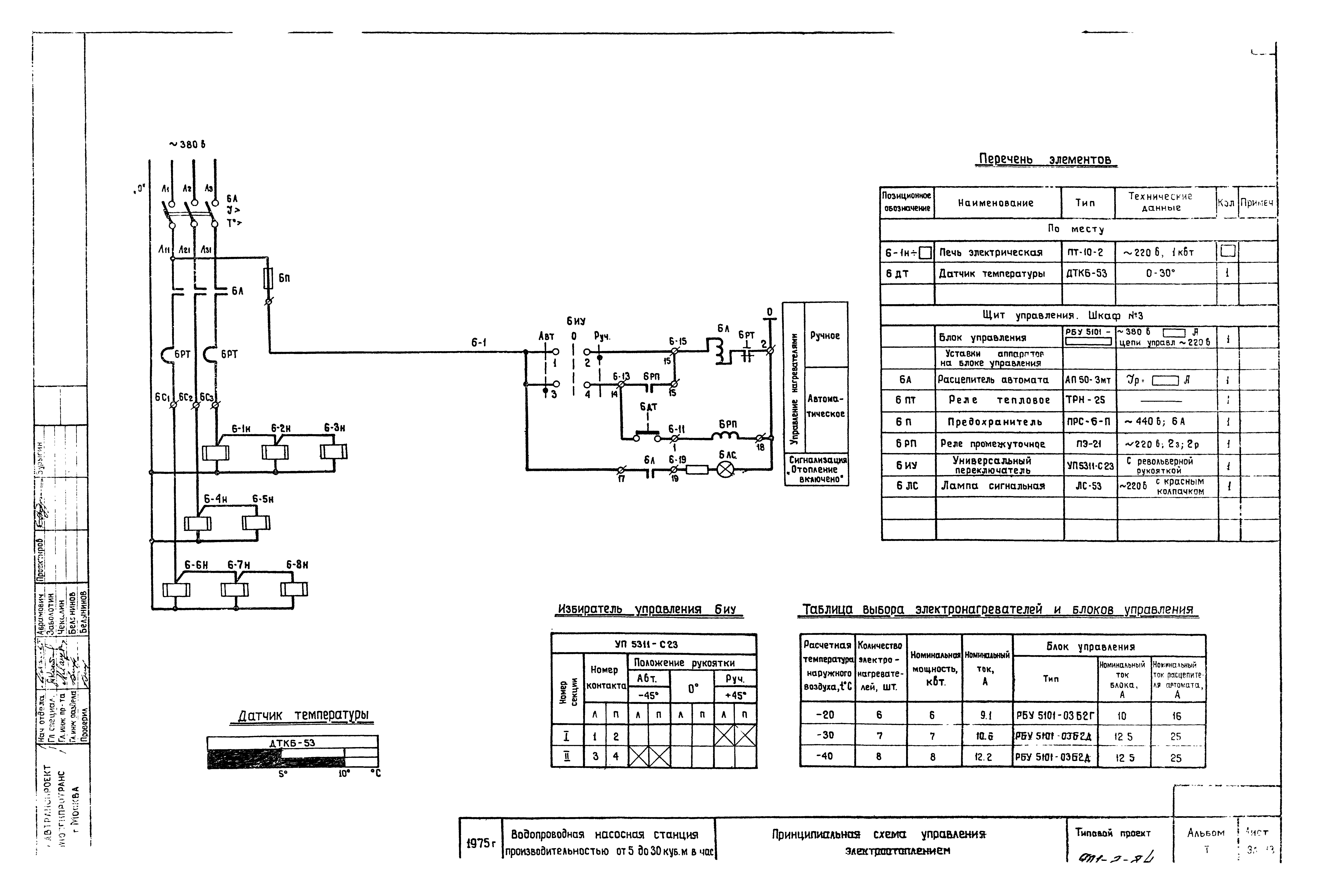
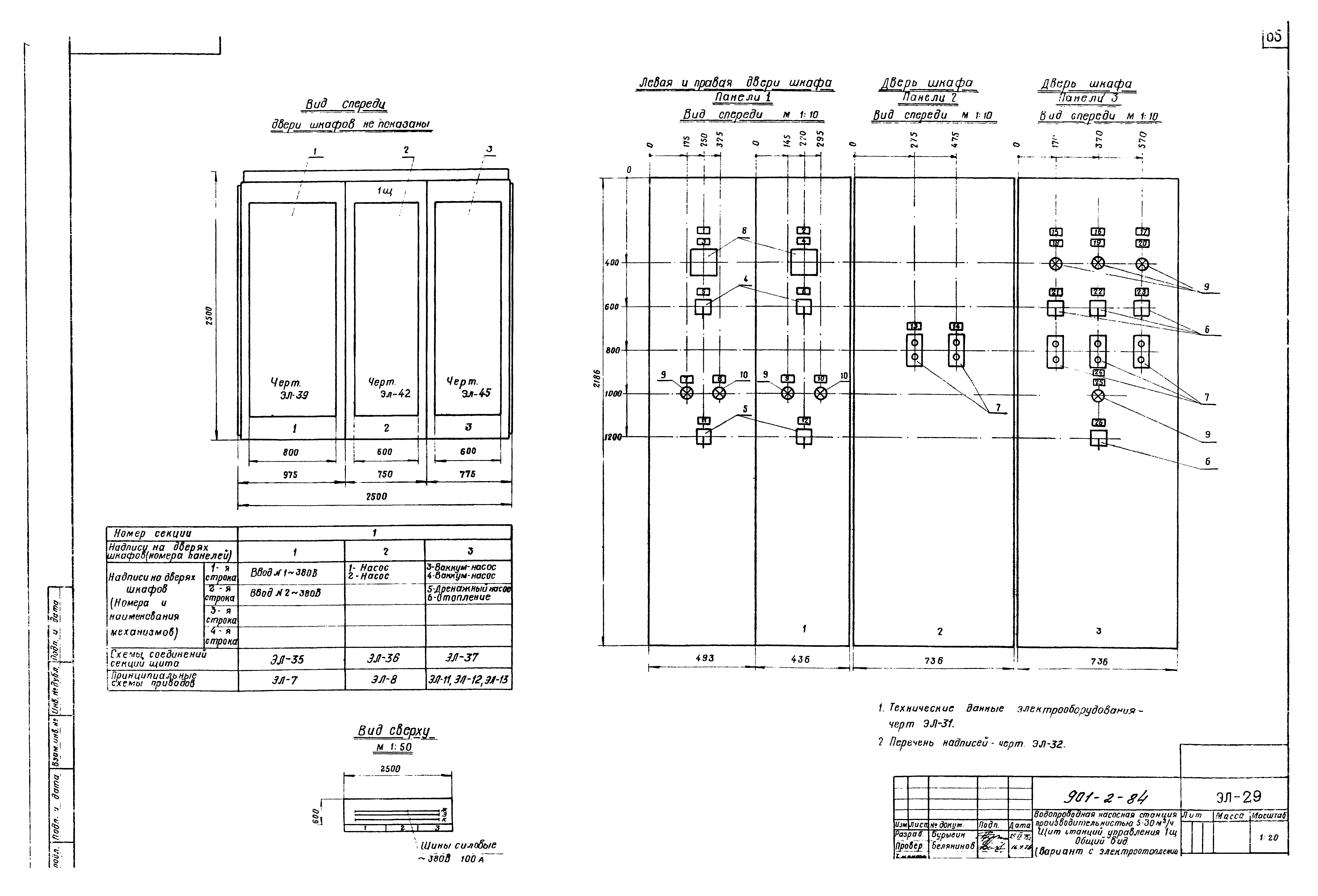
Скачать Типовой проект 901-2-84 Альбом I. Архитектурно-строительная, технологическая, санитарно-техническая и электрическая частиДата актуализации: 10.08.2017 Типовой проект 901-2-84
Альбом I. Архитектурно-строительная, технологическая, санитарно-техническая и электрическая частиОбозначение: | Типовой проект 901-2-84 | Обозначение англ: | 901-2-84 | Статус: | не действует | Название рус.: | Альбом I. Архитектурно-строительная, технологическая, санитарно-техническая и электрическая части | Дата добавления в базу: | 12.02.2016 | Дата актуализации: | 05.05.2017 | Дата введения: | 01.01.1986 | Разработан: | Мосгипротранс
| Утверждён: | 31.12.1976 Министерство путей сообщения СССР (USSR Ministry of Railroads П41067)
| Издан: | ЦИТП Госстроя СССР (CITP, Gosstroy (USSR) 1977 г. )
| Расположен в: |
| Заменяет собой: | |
                                                                              
|