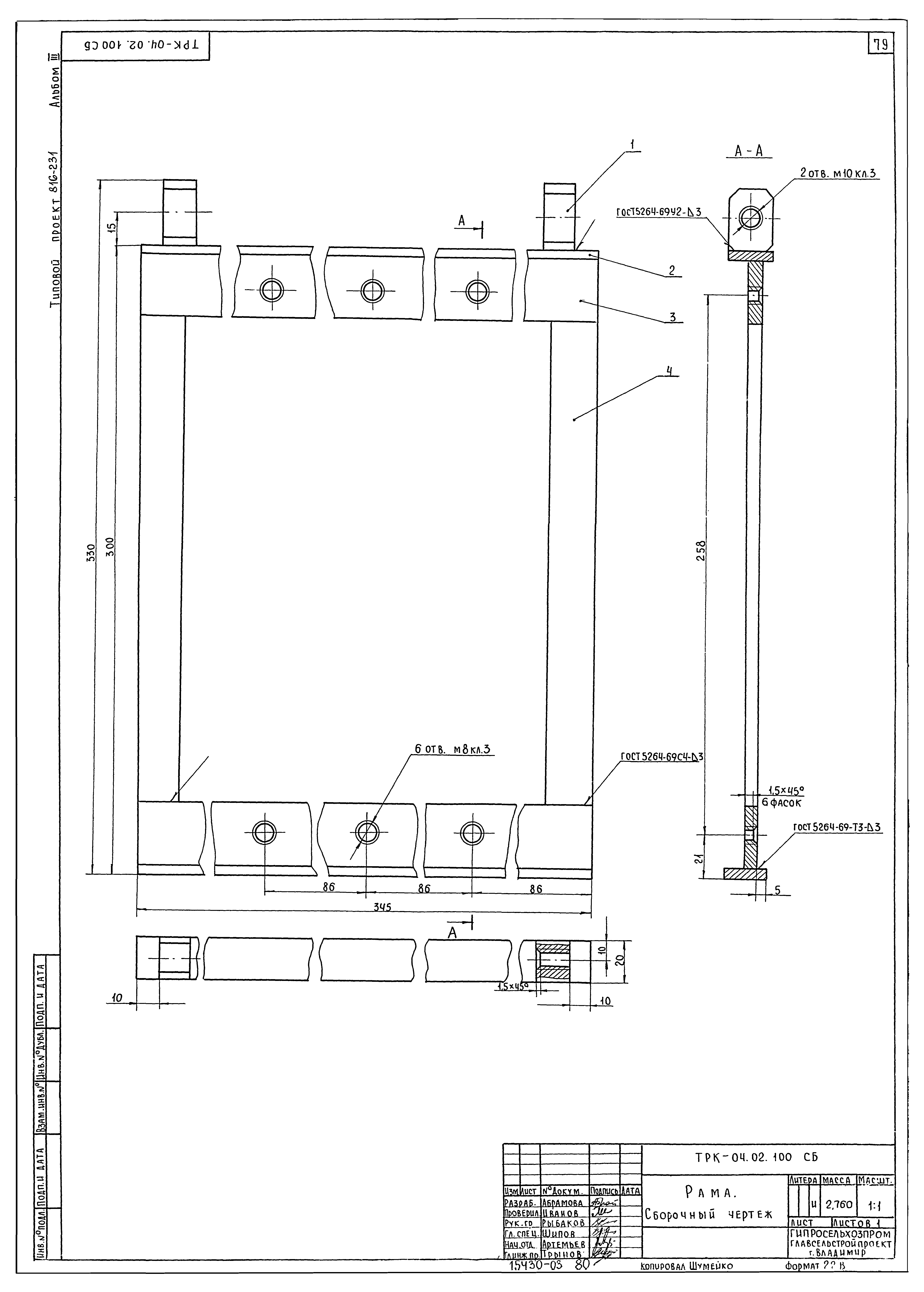
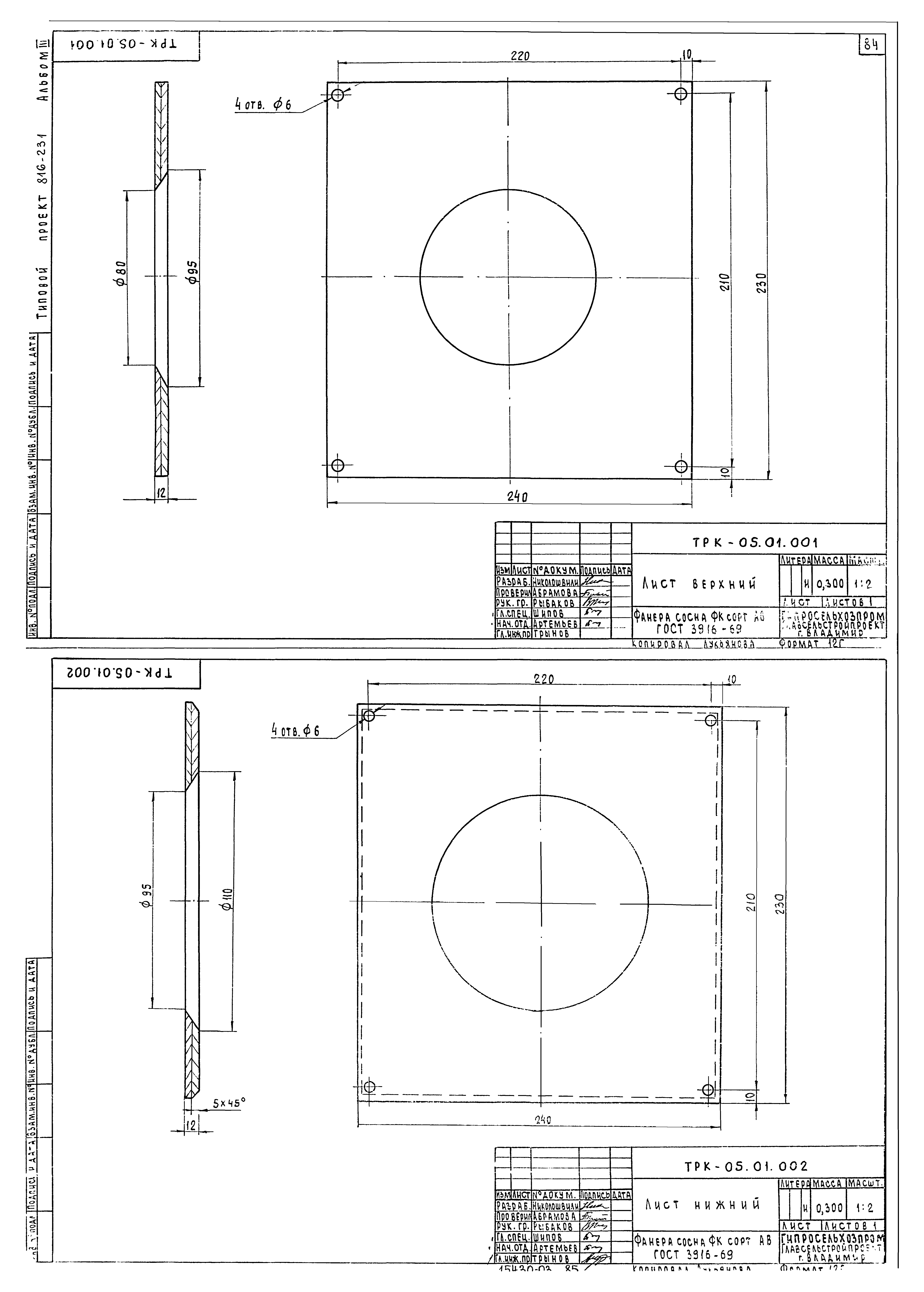
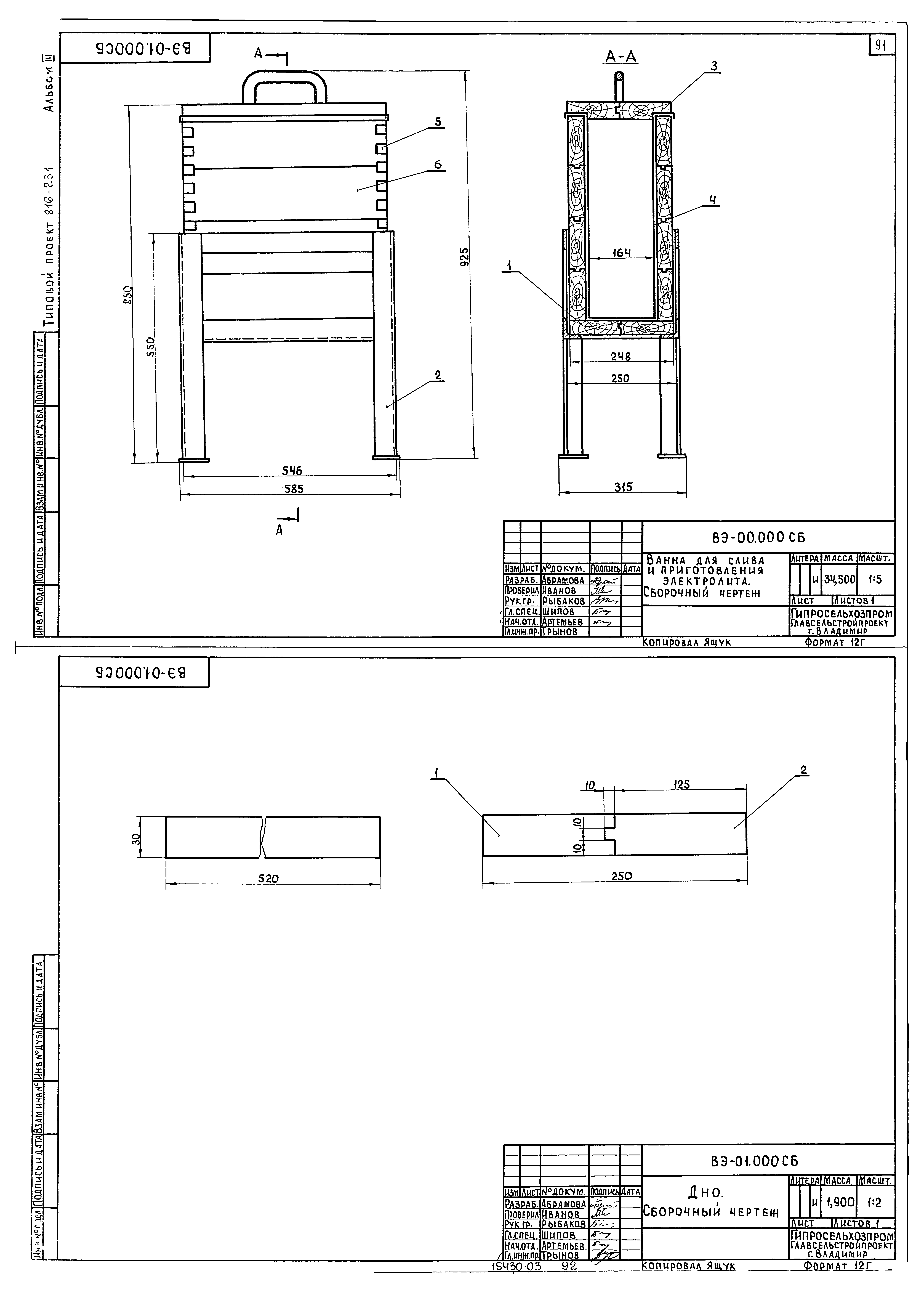
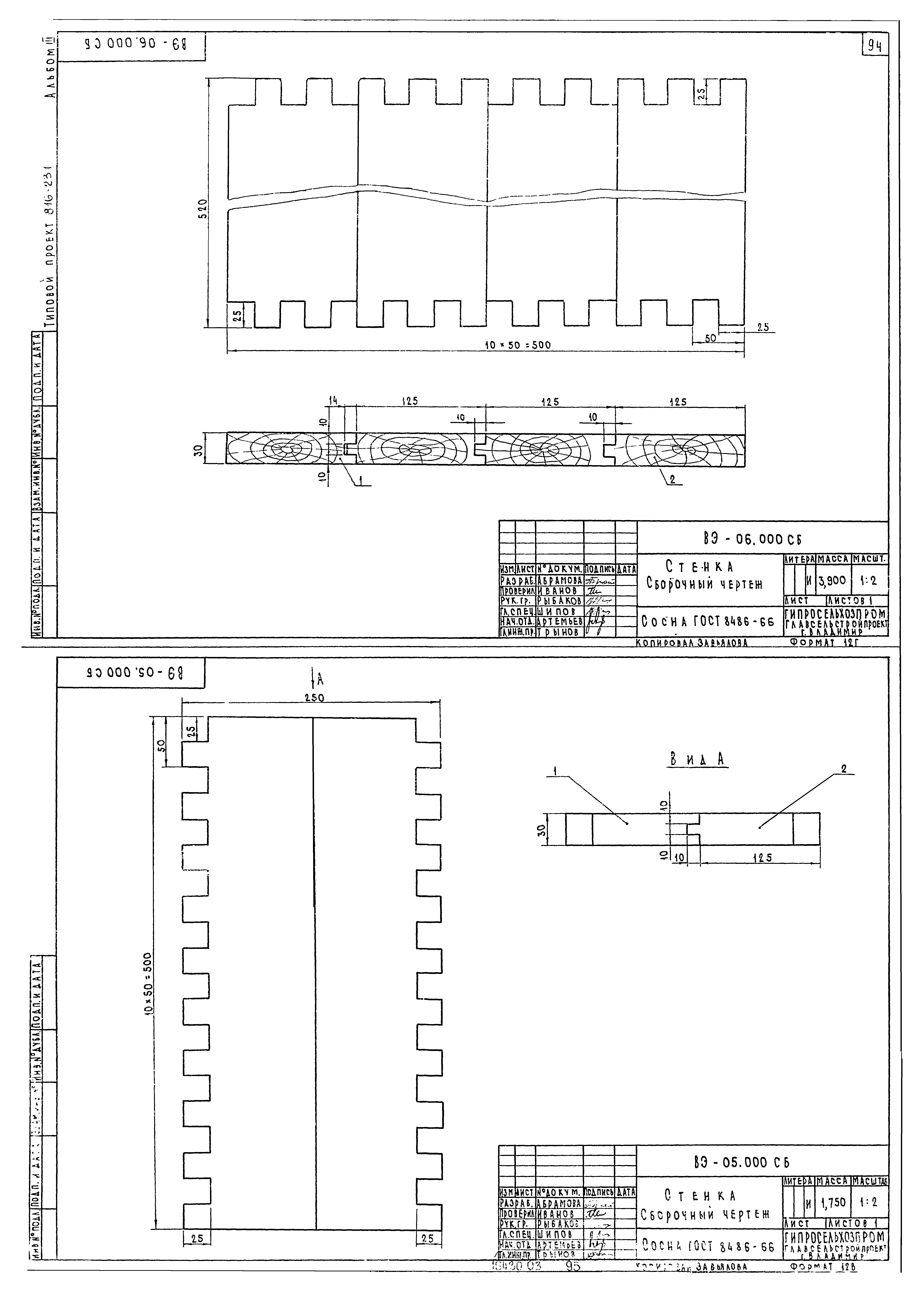
Скачать Типовой проект 816-231 Альбом III. Нестандартизированное оборудованиеДата актуализации: 10.08.2017 Типовой проект 816-231
Альбом III. Нестандартизированное оборудование| Обозначение: | Типовой проект 816-231 | | Обозначение англ: | 816-231 | | Статус: | действует | | Название рус.: | Альбом III. Нестандартизированное оборудование | | Дата добавления в базу: | 12.02.2016 | | Дата актуализации: | 05.05.2017 | | Разработан: | Гипросельхозпром
| | Утверждён: | 14.03.1977 Минсельхоз СССР (USSR Minselkhoz 20/35)
| | Издан: | ЦИТП Госстроя СССР (CITP, Gosstroy (USSR) 1980 г. )
| | Расположен в: |
|
                                                                                                      
|