Информационная система
«Ёшкин Кот»

Скачать базу одним архивом
Скачать обновления
История создания базы
Карта сайта

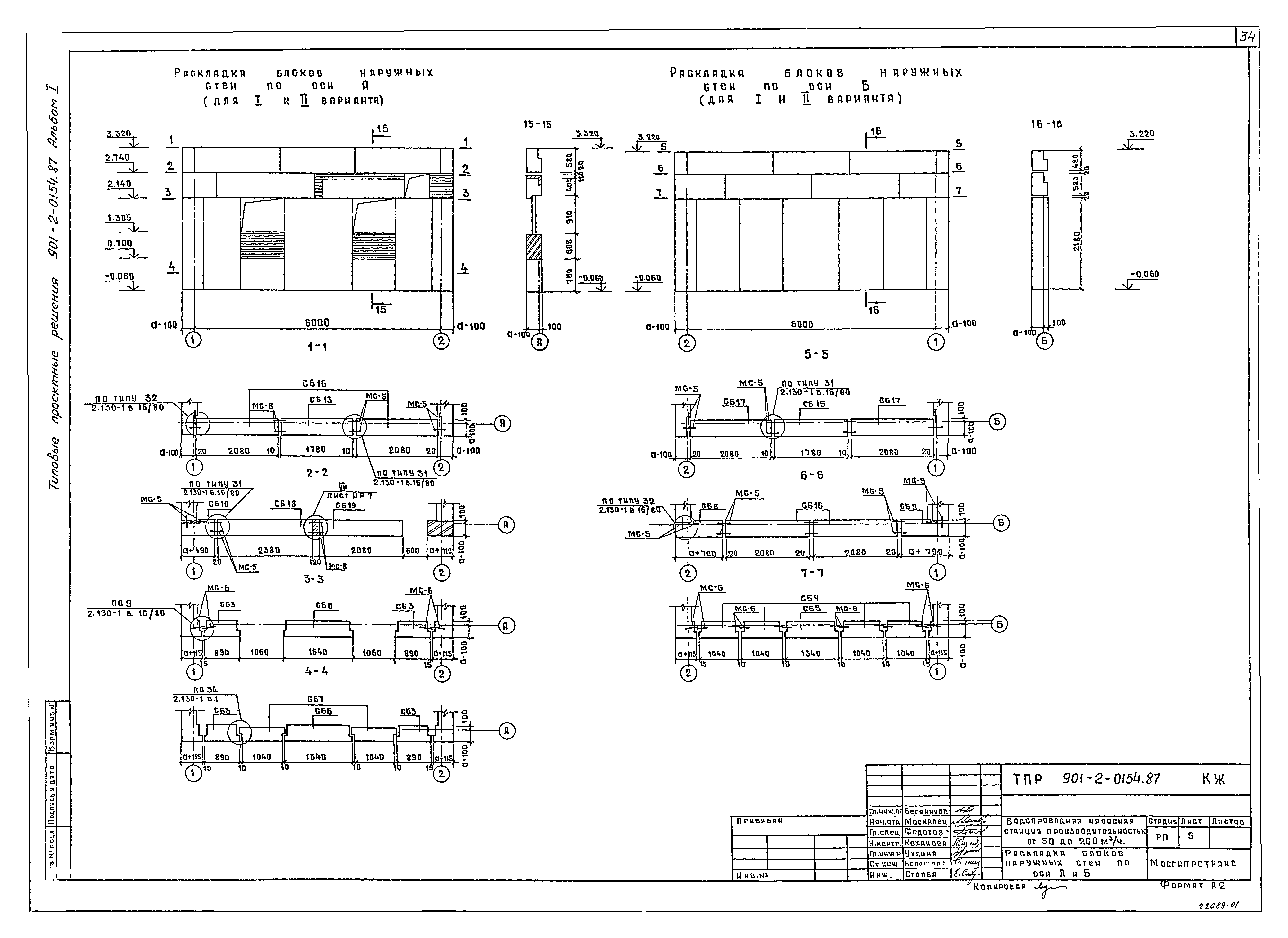
Скачать Типовые проектные решения 901-2-0154.87 Альбом I. Технологические решения. Архитектурно-строительные решения. Конструкции железобетонные. Отопление и вентиляция. Внутренние водопровод и канализация. Электротехническая часть. Технологический контроль

Дата актуализации: 10.08.2017

Типовые проектные решения 901-2-0154.87

Альбом I. Технологические решения. Архитектурно-строительные решения. Конструкции железобетонные. Отопление и вентиляция. Внутренние водопровод и канализация. Электротехническая часть. Технологический контроль

Обозначение: Типовые проектные решения 901-2-0154.87
Обозначение англ: 901-2-0154.87
Статус:заменен
Название рус.:Альбом I. Технологические решения. Архитектурно-строительные решения. Конструкции железобетонные. Отопление и вентиляция. Внутренние водопровод и канализация. Электротехническая часть. Технологический контроль
Дата добавления в базу:12.02.2016
Дата актуализации:05.05.2017
Дата введения:01.10.1992
Разработан: Мосгипротранс
Утверждён:13.02.1987 Министерство транспортного строительства СССР (USSR Ministry of Transport Construction МО-145)
Расположен в:Техническая документация Строительство Справочные документы Типовые строительные конструкции, изделия и узлы Общероссийский строительный каталог Промышленные предприятия, здания и сооружения Здания и сооружения санитарно-технические Водоснабжение Насосные станции Насосные станции водопроводные
Чем заменён:
Типовые проектные решения 901-2-0154.87Типовые проектные решения 901-2-0154.87Типовые проектные решения 901-2-0154.87Типовые проектные решения 901-2-0154.87Типовые проектные решения 901-2-0154.87Типовые проектные решения 901-2-0154.87Типовые проектные решения 901-2-0154.87Типовые проектные решения 901-2-0154.87Типовые проектные решения 901-2-0154.87Типовые проектные решения 901-2-0154.87Типовые проектные решения 901-2-0154.87Типовые проектные решения 901-2-0154.87Типовые проектные решения 901-2-0154.87Типовые проектные решения 901-2-0154.87Типовые проектные решения 901-2-0154.87Типовые проектные решения 901-2-0154.87Типовые проектные решения 901-2-0154.87Типовые проектные решения 901-2-0154.87Типовые проектные решения 901-2-0154.87Типовые проектные решения 901-2-0154.87Типовые проектные решения 901-2-0154.87Типовые проектные решения 901-2-0154.87Типовые проектные решения 901-2-0154.87Типовые проектные решения 901-2-0154.87Типовые проектные решения 901-2-0154.87Типовые проектные решения 901-2-0154.87Типовые проектные решения 901-2-0154.87Типовые проектные решения 901-2-0154.87Типовые проектные решения 901-2-0154.87Типовые проектные решения 901-2-0154.87Типовые проектные решения 901-2-0154.87Типовые проектные решения 901-2-0154.87Типовые проектные решения 901-2-0154.87Типовые проектные решения 901-2-0154.87Типовые проектные решения 901-2-0154.87Типовые проектные решения 901-2-0154.87Типовые проектные решения 901-2-0154.87Типовые проектные решения 901-2-0154.87Типовые проектные решения 901-2-0154.87Типовые проектные решения 901-2-0154.87Типовые проектные решения 901-2-0154.87Типовые проектные решения 901-2-0154.87Типовые проектные решения 901-2-0154.87Типовые проектные решения 901-2-0154.87Типовые проектные решения 901-2-0154.87Типовые проектные решения 901-2-0154.87Типовые проектные решения 901-2-0154.87Типовые проектные решения 901-2-0154.87Типовые проектные решения 901-2-0154.87Типовые проектные решения 901-2-0154.87Типовые проектные решения 901-2-0154.87Типовые проектные решения 901-2-0154.87Типовые проектные решения 901-2-0154.87Типовые проектные решения 901-2-0154.87Типовые проектные решения 901-2-0154.87Типовые проектные решения 901-2-0154.87Типовые проектные решения 901-2-0154.87Типовые проектные решения 901-2-0154.87Типовые проектные решения 901-2-0154.87Типовые проектные решения 901-2-0154.87Типовые проектные решения 901-2-0154.87Типовые проектные решения 901-2-0154.87Типовые проектные решения 901-2-0154.87Типовые проектные решения 901-2-0154.87Типовые проектные решения 901-2-0154.87Типовые проектные решения 901-2-0154.87Типовые проектные решения 901-2-0154.87Типовые проектные решения 901-2-0154.87Типовые проектные решения 901-2-0154.87Типовые проектные решения 901-2-0154.87Типовые проектные решения 901-2-0154.87Типовые проектные решения 901-2-0154.87Типовые проектные решения 901-2-0154.87

© 2013 Ёшкин Кот :-) Карта сайта