Скачать Типовой проект 903-1-163 Альбом I. Котельная с 4 и 6 котлами. Тепломеханическая частьДата актуализации: 10.08.2017 Типовой проект 903-1-163
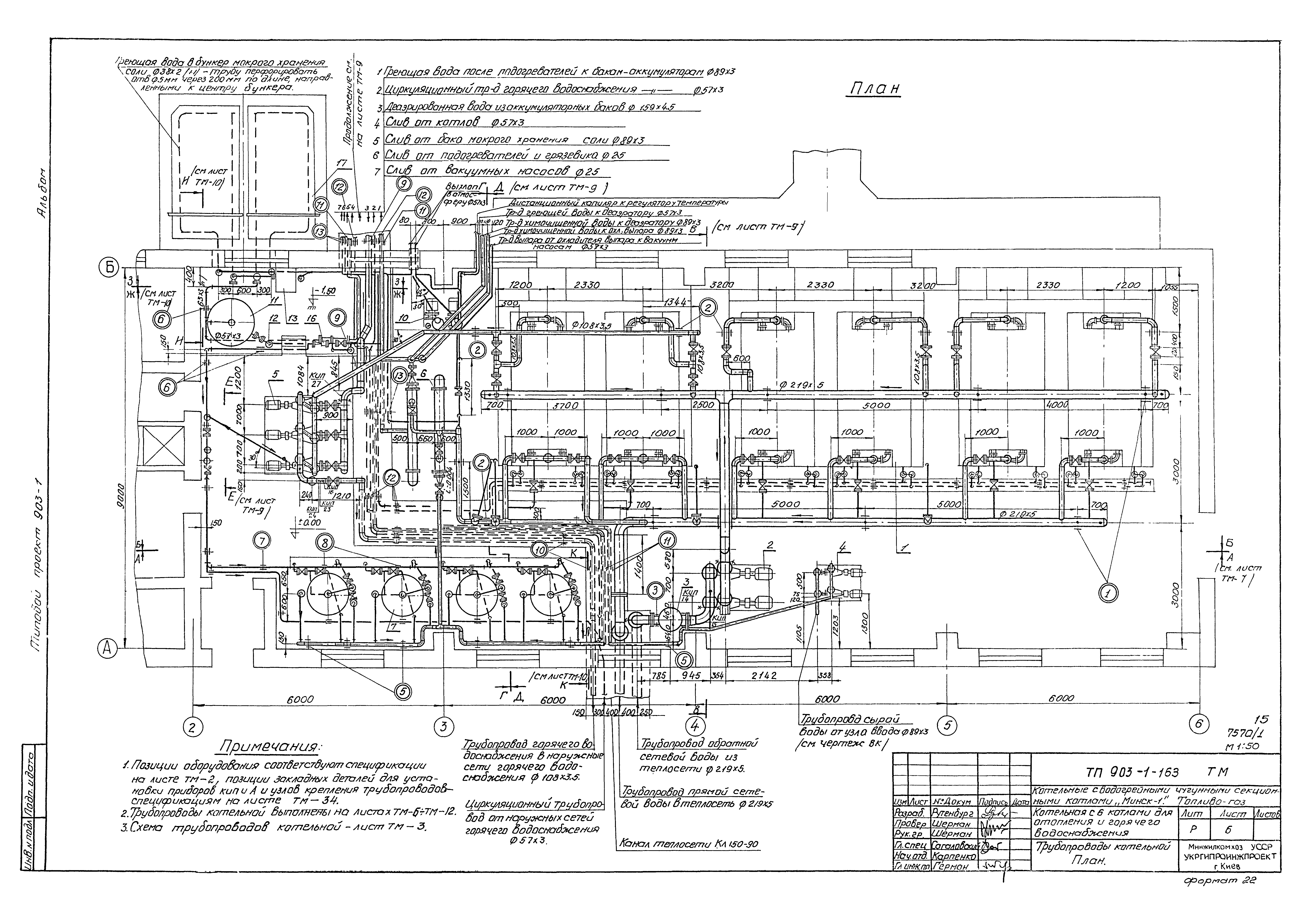
Альбом I. Котельная с 4 и 6 котлами. Тепломеханическая частьОбозначение: | Типовой проект 903-1-163 | Обозначение англ: | 903-1-163 | Статус: | отменен | Название рус.: | Альбом I. Котельная с 4 и 6 котлами. Тепломеханическая часть | Дата добавления в базу: | 12.02.2016 | Дата актуализации: | 05.05.2017 | Дата введения: | 01.01.1986 | Разработан: | Укргипроинжпроект Минкомхоза Украинской ССР
| Утверждён: | 31.05.1979 Укргипроинжпроект (83)
| Издан: | ЦИТП Госстроя СССР (CITP, Gosstroy (USSR) 1980 г. )
| Расположен в: |
|
                                                         
|