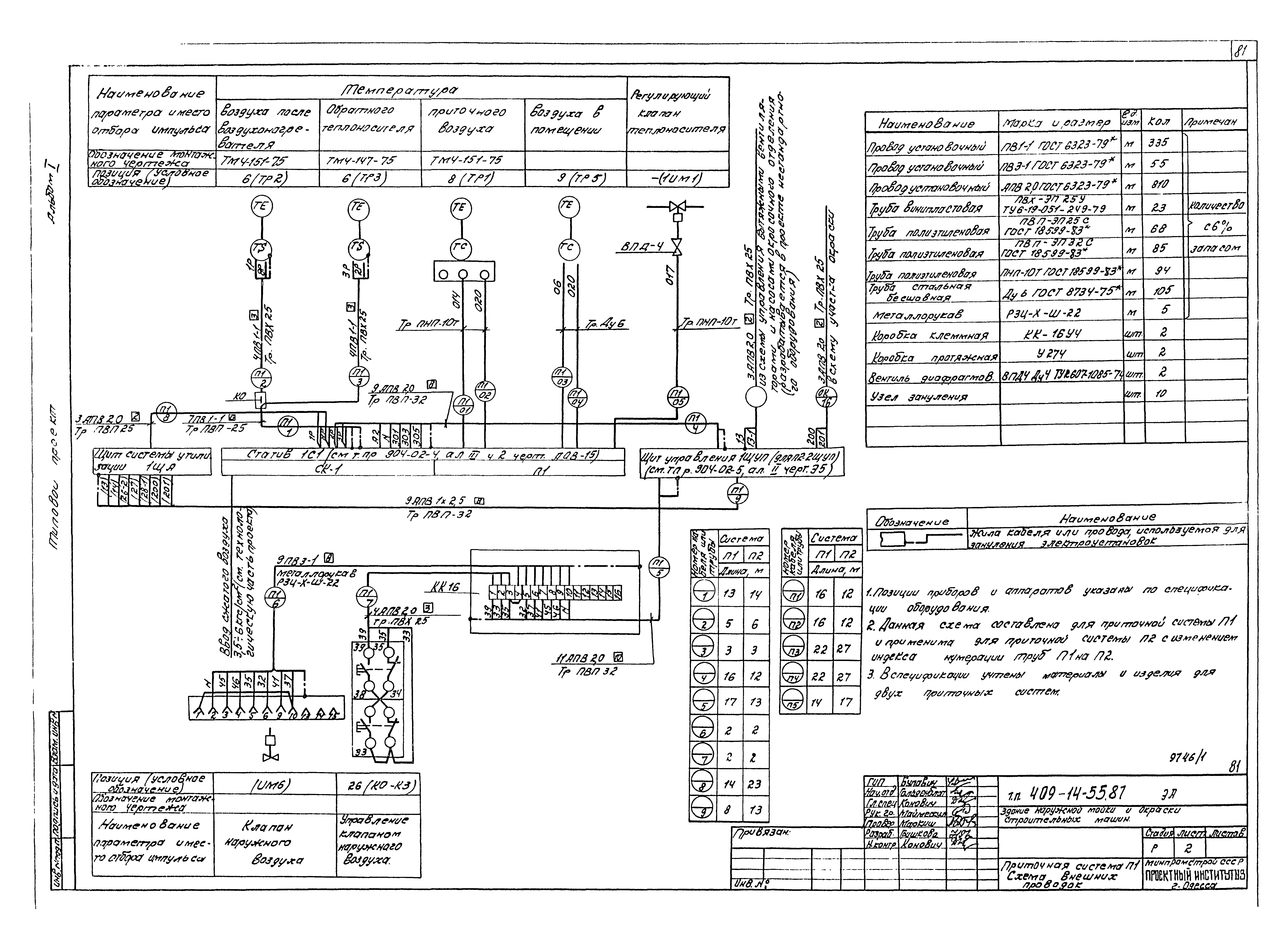
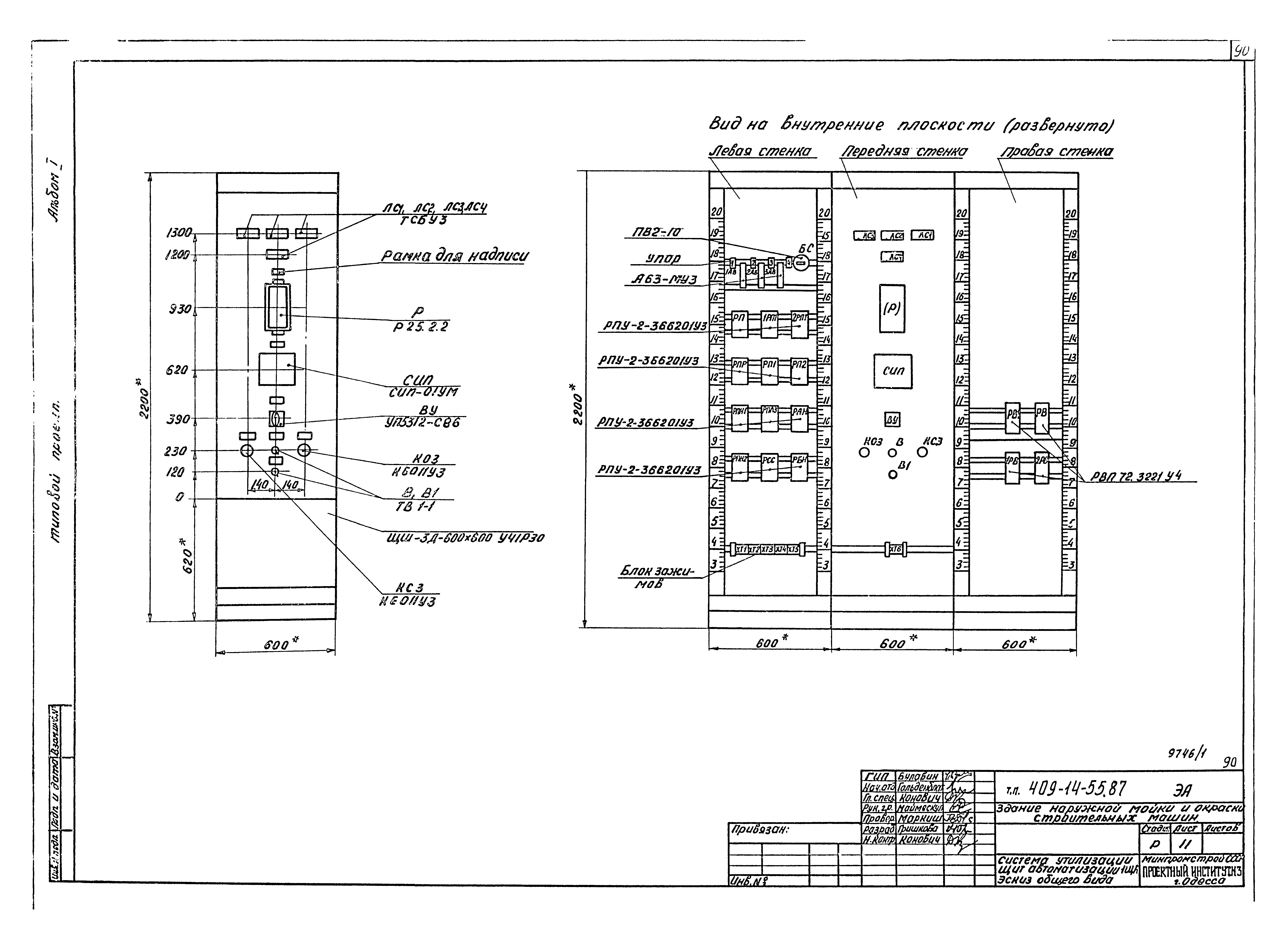
Скачать Типовой проект 409-14-55.87 Альбом I. Технологические решения, отопление и вентиляция, водопровод и канализация, электроснабжение, автоматика, автоматическое пожаротушение, связь и сигнализацияДата актуализации: 10.08.2017 Типовой проект 409-14-55.87
Альбом I. Технологические решения, отопление и вентиляция, водопровод и канализация, электроснабжение, автоматика, автоматическое пожаротушение, связь и сигнализацияОбозначение: | Типовой проект 409-14-55.87 | Обозначение англ: | 409-14-55.87 | Статус: | действует | Название рус.: | Альбом I. Технологические решения, отопление и вентиляция, водопровод и канализация, электроснабжение, автоматика, автоматическое пожаротушение, связь и сигнализация | Дата добавления в базу: | 12.02.2016 | Дата актуализации: | 05.05.2017 | Разработан: | Проектный институт №3 Госстроя СССР
| Утверждён: | 29.08.1986 Госстрой СССР (АЧ-50)
| Издан: | ЦИТП Госстроя СССР (CITP, Gosstroy (USSR) 1988 г. )
| Расположен в: |
| Нормативные ссылки: | |
                                                                                                               
|