Информационная система
«Ёшкин Кот»

Скачать базу одним архивом
Скачать обновления
История создания базы
Карта сайта

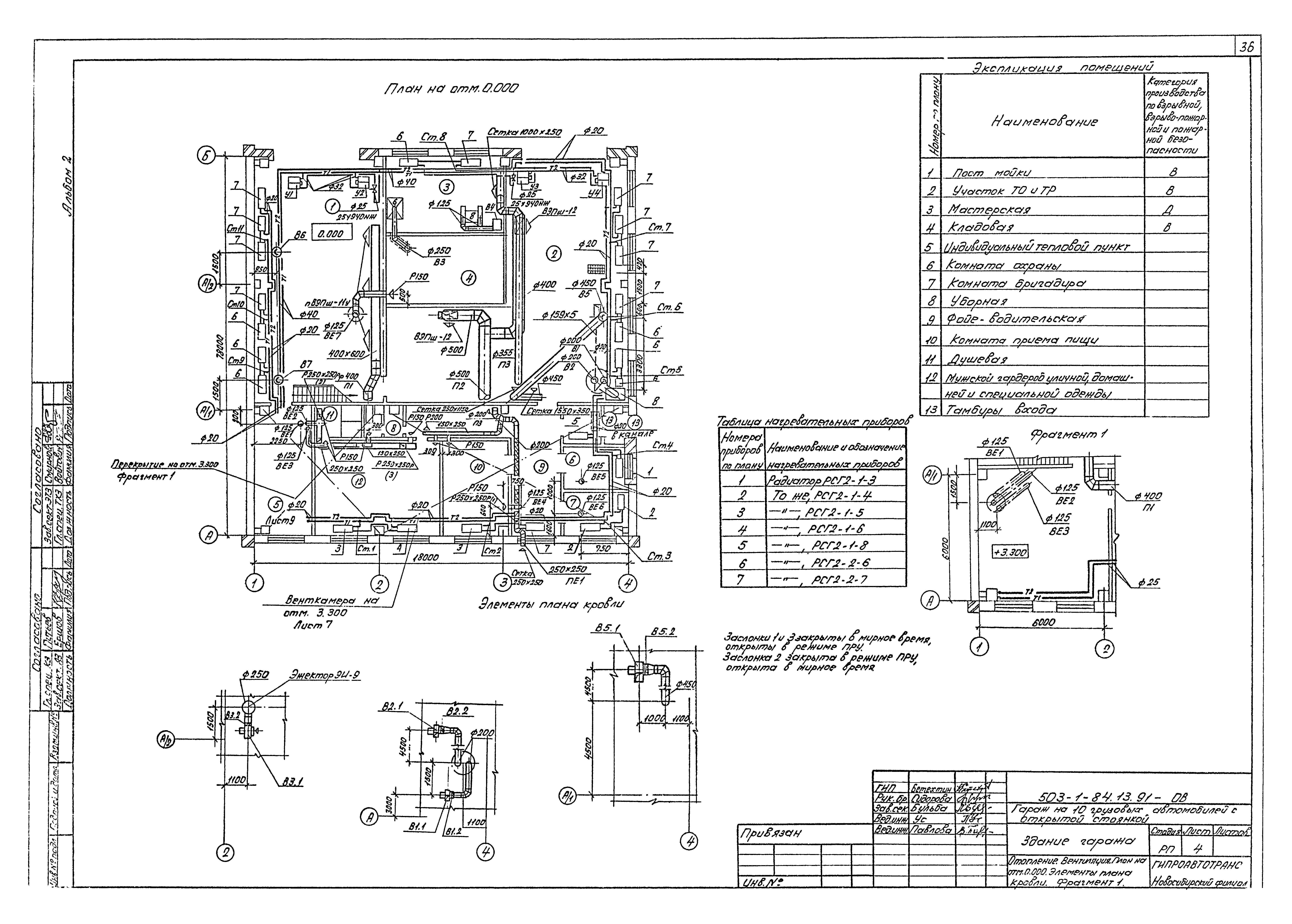
Скачать Типовой проект 503-1-84.13.91 Альбом 2. Технология производства. Архитектурные решения. Конструкции железобетонные. Конструкции металлические. Отопление и вентиляция. Внутренние водопровод и канализация

Дата актуализации: 10.08.2017

Типовой проект 503-1-84.13.91

Альбом 2. Технология производства. Архитектурные решения. Конструкции железобетонные. Конструкции металлические. Отопление и вентиляция. Внутренние водопровод и канализация

Обозначение: Типовой проект 503-1-84.13.91
Обозначение англ: 503-1-84.13.91
Статус:не определен законодательством
Название рус.:Альбом 2. Технология производства. Архитектурные решения. Конструкции железобетонные. Конструкции металлические. Отопление и вентиляция. Внутренние водопровод и канализация
Дата добавления в базу:12.02.2016
Дата актуализации:05.05.2017
Дата введения:20.05.1991
Разработан: Новосибирский филиал Гипроавтотранса
Утверждён:20.05.1991 Новосибирский Облисполком (5)
Издан: Сибтиппроект (1992 г. )
Расположен в:Техническая документация Строительство Справочные документы Типовые строительные конструкции, изделия и узлы Общероссийский строительный каталог Защитные сооружения гражданской обороны Типовые проекты защитных сооружений гражданской обороны для объектов промышленности, электроэнергетики, транспорта, связи и складского хозяйства Встроенные помещения, приспосабливаемые под противорадиационные укрытия Противорадиационные укрытия в зданиях и сооружениях транспорта Промышленные предприятия, здания и сооружения Предприятия, здания и сооружения транспорта Транспорт автомобильный Предприятия автотранспортные, гаражи и стоянки для грузовых автомобилей и механизмов
Типовой проект 503-1-84.13.91Типовой проект 503-1-84.13.91Типовой проект 503-1-84.13.91Типовой проект 503-1-84.13.91Типовой проект 503-1-84.13.91Типовой проект 503-1-84.13.91Типовой проект 503-1-84.13.91Типовой проект 503-1-84.13.91Типовой проект 503-1-84.13.91Типовой проект 503-1-84.13.91Типовой проект 503-1-84.13.91Типовой проект 503-1-84.13.91Типовой проект 503-1-84.13.91Типовой проект 503-1-84.13.91Типовой проект 503-1-84.13.91Типовой проект 503-1-84.13.91Типовой проект 503-1-84.13.91Типовой проект 503-1-84.13.91Типовой проект 503-1-84.13.91Типовой проект 503-1-84.13.91Типовой проект 503-1-84.13.91Типовой проект 503-1-84.13.91Типовой проект 503-1-84.13.91Типовой проект 503-1-84.13.91Типовой проект 503-1-84.13.91Типовой проект 503-1-84.13.91Типовой проект 503-1-84.13.91Типовой проект 503-1-84.13.91Типовой проект 503-1-84.13.91Типовой проект 503-1-84.13.91Типовой проект 503-1-84.13.91Типовой проект 503-1-84.13.91Типовой проект 503-1-84.13.91Типовой проект 503-1-84.13.91Типовой проект 503-1-84.13.91Типовой проект 503-1-84.13.91Типовой проект 503-1-84.13.91Типовой проект 503-1-84.13.91Типовой проект 503-1-84.13.91Типовой проект 503-1-84.13.91Типовой проект 503-1-84.13.91Типовой проект 503-1-84.13.91Типовой проект 503-1-84.13.91Типовой проект 503-1-84.13.91Типовой проект 503-1-84.13.91Типовой проект 503-1-84.13.91Типовой проект 503-1-84.13.91Типовой проект 503-1-84.13.91

© 2013 Ёшкин Кот :-) Карта сайта