Информационная система
«Ёшкин Кот»

Скачать базу одним архивом
Скачать обновления
История создания базы
Карта сайта

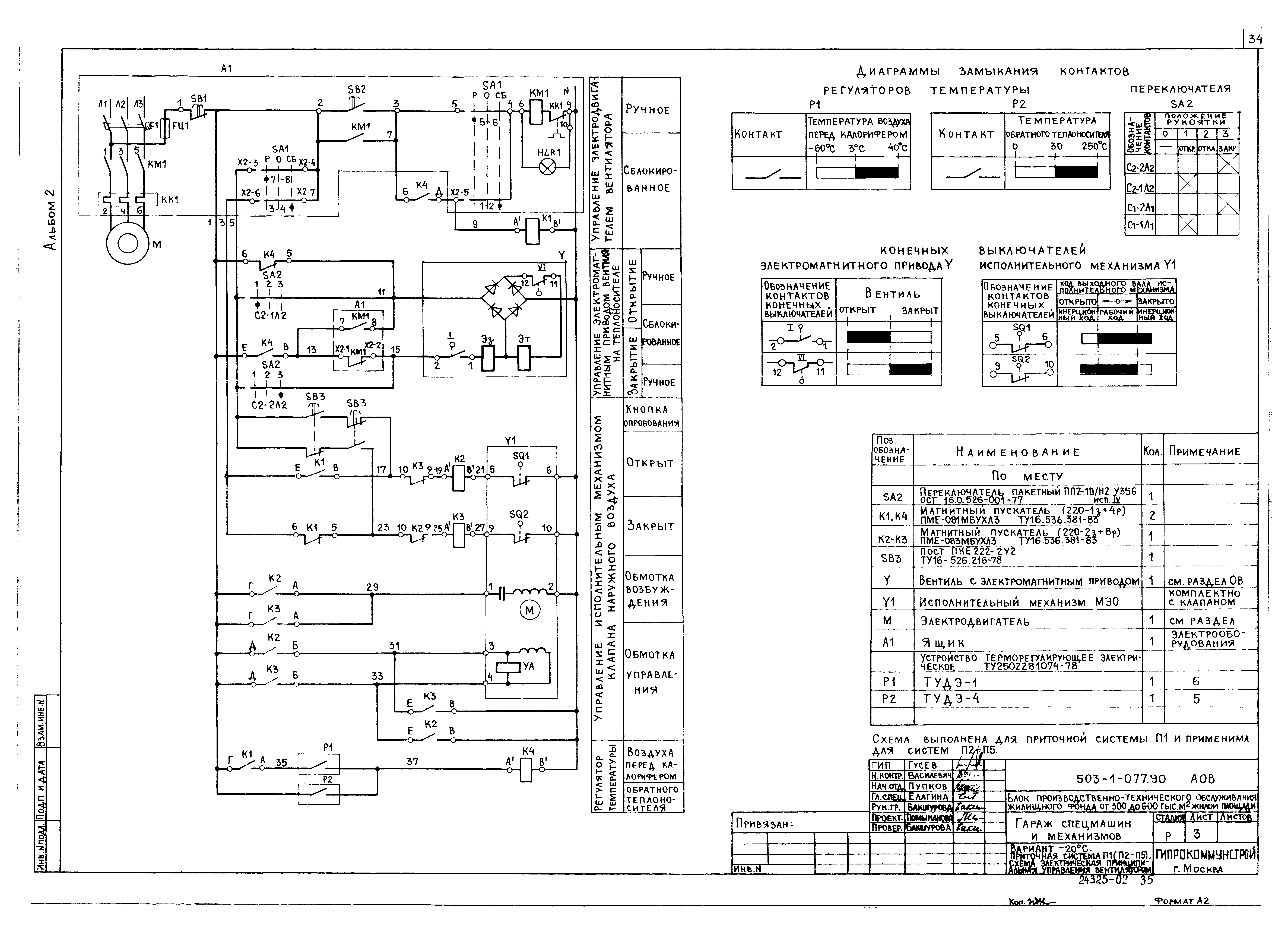
Скачать Типовые проектные решения 503-1-077.90 Альбом 2. Внутренний водопровод и канализация. Отопление и вентиляция. Силовое электрооборудования и электрическое освещение. Связь и сигнализация. Автоматизация санитарно-технических систем

Дата актуализации: 10.08.2017

Типовые проектные решения 503-1-077.90

Альбом 2. Внутренний водопровод и канализация. Отопление и вентиляция. Силовое электрооборудования и электрическое освещение. Связь и сигнализация. Автоматизация санитарно-технических систем

Обозначение: Типовые проектные решения 503-1-077.90
Обозначение англ: 503-1-077.90
Статус:cправочные материалы, мп, тпр
Название рус.:Альбом 2. Внутренний водопровод и канализация. Отопление и вентиляция. Силовое электрооборудования и электрическое освещение. Связь и сигнализация. Автоматизация санитарно-технических систем
Дата добавления в базу:12.02.2016
Дата актуализации:05.05.2017
Дата введения:06.10.1988
Разработан: Гипрокоммунстрой
Утверждён:06.10.1988 Минжилкомхоз РСФСР (Russian Federation Minzhilkomkhoz 252)
Издан: ЦИТП Госстроя СССР (CITP, Gosstroy (USSR) 1990 г. )
Расположен в:Техническая документация Строительство Справочные документы Типовые строительные конструкции, изделия и узлы Общероссийский строительный каталог Промышленные предприятия, здания и сооружения Предприятия, здания и сооружения транспорта Транспорт автомобильный Предприятия автотранспортные, гаражи и стоянки для легковых автомобилей, автобусов и мотоциклов
Типовые проектные решения 503-1-077.90Типовые проектные решения 503-1-077.90Типовые проектные решения 503-1-077.90Типовые проектные решения 503-1-077.90Типовые проектные решения 503-1-077.90Типовые проектные решения 503-1-077.90Типовые проектные решения 503-1-077.90Типовые проектные решения 503-1-077.90Типовые проектные решения 503-1-077.90Типовые проектные решения 503-1-077.90Типовые проектные решения 503-1-077.90Типовые проектные решения 503-1-077.90Типовые проектные решения 503-1-077.90Типовые проектные решения 503-1-077.90Типовые проектные решения 503-1-077.90Типовые проектные решения 503-1-077.90Типовые проектные решения 503-1-077.90Типовые проектные решения 503-1-077.90Типовые проектные решения 503-1-077.90Типовые проектные решения 503-1-077.90Типовые проектные решения 503-1-077.90Типовые проектные решения 503-1-077.90Типовые проектные решения 503-1-077.90Типовые проектные решения 503-1-077.90Типовые проектные решения 503-1-077.90Типовые проектные решения 503-1-077.90Типовые проектные решения 503-1-077.90Типовые проектные решения 503-1-077.90Типовые проектные решения 503-1-077.90Типовые проектные решения 503-1-077.90Типовые проектные решения 503-1-077.90Типовые проектные решения 503-1-077.90Типовые проектные решения 503-1-077.90Типовые проектные решения 503-1-077.90Типовые проектные решения 503-1-077.90Типовые проектные решения 503-1-077.90Типовые проектные решения 503-1-077.90Типовые проектные решения 503-1-077.90Типовые проектные решения 503-1-077.90Типовые проектные решения 503-1-077.90Типовые проектные решения 503-1-077.90Типовые проектные решения 503-1-077.90Типовые проектные решения 503-1-077.90

© 2013 Ёшкин Кот :-) Карта сайта