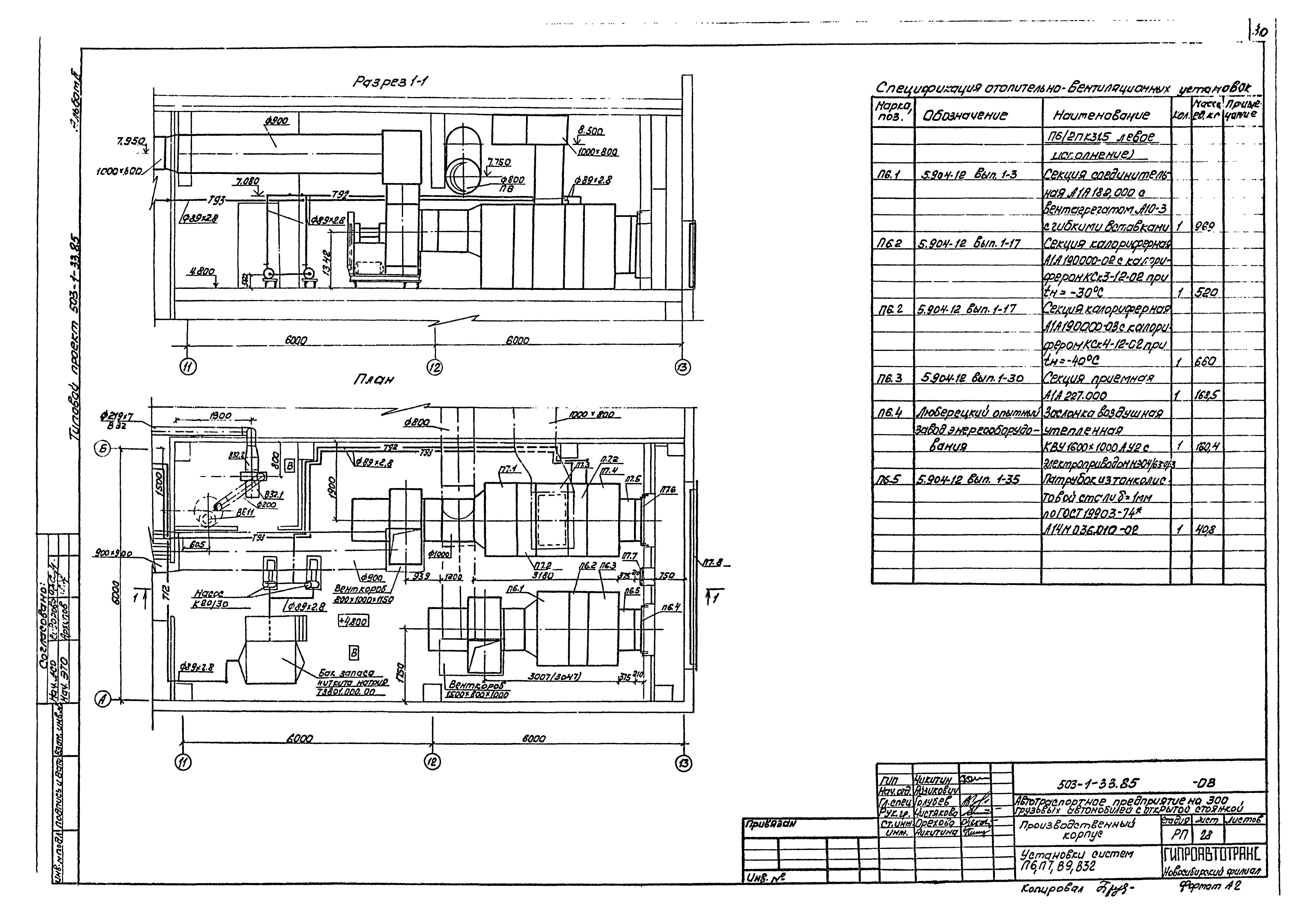
Скачать Типовой проект 503-1-33.85 Альбом II. Чертежи по отоплению и вентиляции, чертежи по водопроводу и канализацииДата актуализации: 10.08.2017 Типовой проект 503-1-33.85
Альбом II. Чертежи по отоплению и вентиляции, чертежи по водопроводу и канализацииОбозначение: | Типовой проект 503-1-33.85 | Обозначение англ: | 503-1-33.85 | Статус: | действует | Название рус.: | Альбом II. Чертежи по отоплению и вентиляции, чертежи по водопроводу и канализации | Дата добавления в базу: | 12.02.2016 | Дата актуализации: | 05.05.2017 | Разработан: | Новосибирский филиал Гипроавтотранса
| Утверждён: | 10.07.1984 Минавтотранс РСФСР (Russian Federation Minavtotrans 49)
| Издан: | ЦИТП Госстроя СССР (CITP, Gosstroy (USSR) 1988 г. )
| Расположен в: |
|
                                                         
|