Информационная система
«Ёшкин Кот»

Скачать базу одним архивом
Скачать обновления
История создания базы
Карта сайта

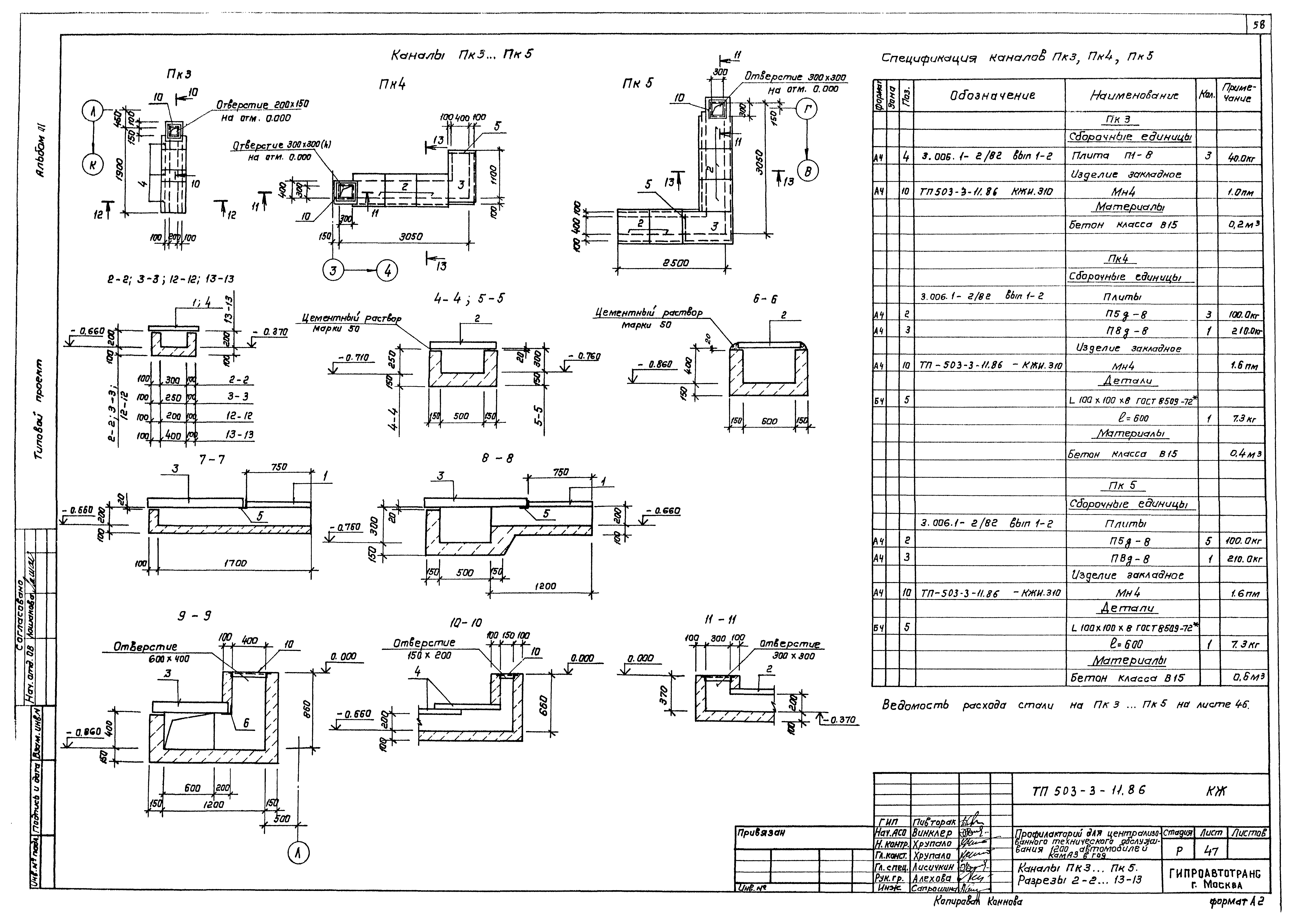
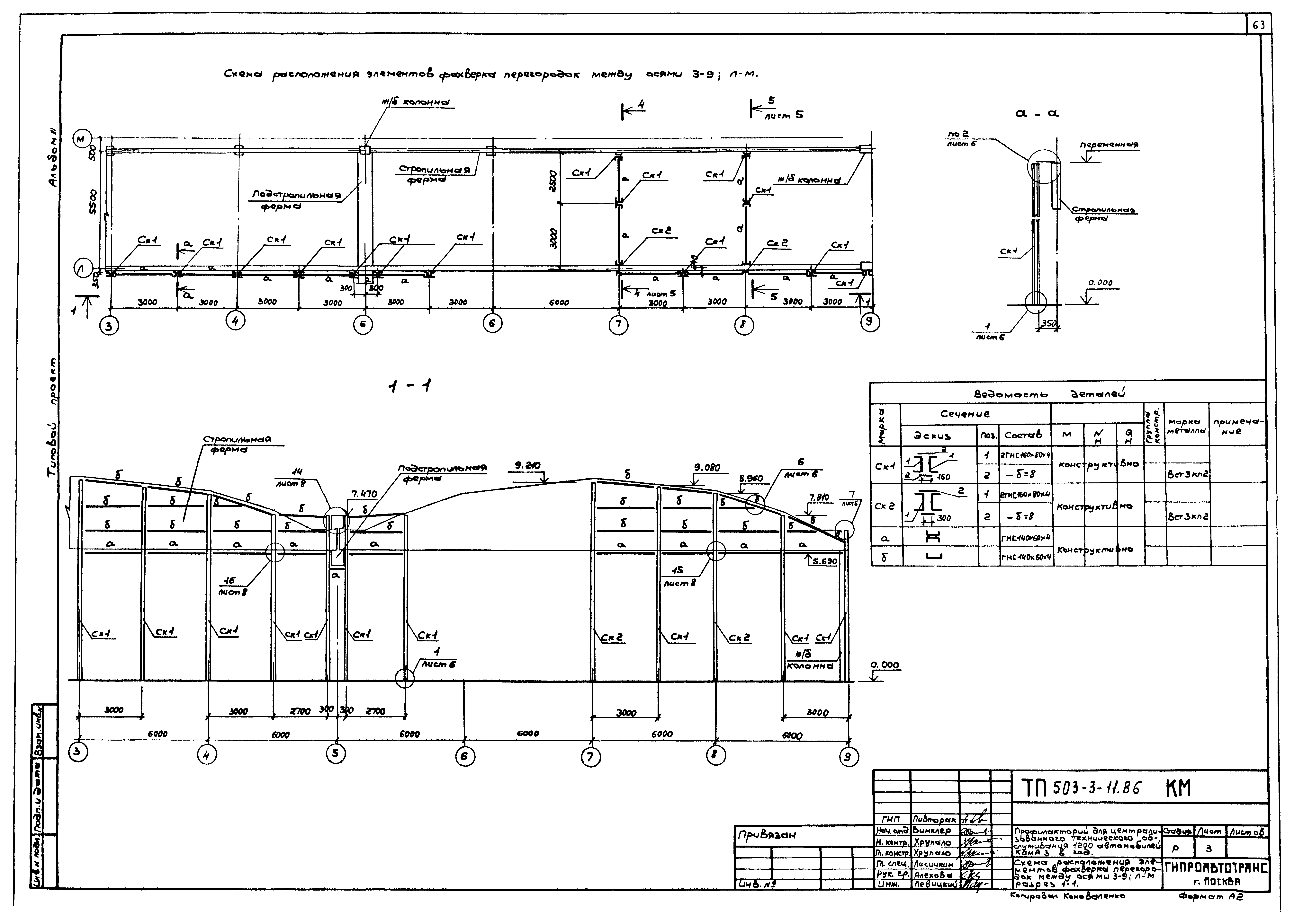
Скачать Типовой проект 503-3-11.86 Альбом III. Архитектурные решения. Конструкции железобетонные. Конструкции металлические

Дата актуализации: 10.08.2017

Типовой проект 503-3-11.86

Альбом III. Архитектурные решения. Конструкции железобетонные. Конструкции металлические

Обозначение: Типовой проект 503-3-11.86
Обозначение англ: 503-3-11.86
Статус:действует
Название рус.:Альбом III. Архитектурные решения. Конструкции железобетонные. Конструкции металлические
Дата добавления в базу:12.02.2016
Дата актуализации:05.05.2017
Разработан: Гипроавтотранс Минавтотранса РСФСР
Утверждён:28.06.1985 Минавтотранс РСФСР (Russian Federation Minavtotrans 21)
Издан: ЦИТП Госстроя СССР (CITP, Gosstroy (USSR) 1987 г. )
Расположен в:Техническая документация Строительство Справочные документы Типовые строительные конструкции, изделия и узлы Общероссийский строительный каталог Промышленные предприятия, здания и сооружения Предприятия, здания и сооружения транспорта Транспорт автомобильный Мойки и профилактории для грузовых и легковых автомобилей и автобусов
Типовой проект 503-3-11.86Типовой проект 503-3-11.86Типовой проект 503-3-11.86Типовой проект 503-3-11.86Типовой проект 503-3-11.86Типовой проект 503-3-11.86Типовой проект 503-3-11.86Типовой проект 503-3-11.86Типовой проект 503-3-11.86Типовой проект 503-3-11.86Типовой проект 503-3-11.86Типовой проект 503-3-11.86Типовой проект 503-3-11.86Типовой проект 503-3-11.86Типовой проект 503-3-11.86Типовой проект 503-3-11.86Типовой проект 503-3-11.86Типовой проект 503-3-11.86Типовой проект 503-3-11.86Типовой проект 503-3-11.86Типовой проект 503-3-11.86Типовой проект 503-3-11.86Типовой проект 503-3-11.86Типовой проект 503-3-11.86Типовой проект 503-3-11.86Типовой проект 503-3-11.86Типовой проект 503-3-11.86Типовой проект 503-3-11.86Типовой проект 503-3-11.86Типовой проект 503-3-11.86Типовой проект 503-3-11.86Типовой проект 503-3-11.86Типовой проект 503-3-11.86Типовой проект 503-3-11.86Типовой проект 503-3-11.86Типовой проект 503-3-11.86Типовой проект 503-3-11.86Типовой проект 503-3-11.86Типовой проект 503-3-11.86Типовой проект 503-3-11.86Типовой проект 503-3-11.86Типовой проект 503-3-11.86Типовой проект 503-3-11.86Типовой проект 503-3-11.86Типовой проект 503-3-11.86Типовой проект 503-3-11.86Типовой проект 503-3-11.86Типовой проект 503-3-11.86Типовой проект 503-3-11.86Типовой проект 503-3-11.86Типовой проект 503-3-11.86Типовой проект 503-3-11.86Типовой проект 503-3-11.86Типовой проект 503-3-11.86Типовой проект 503-3-11.86Типовой проект 503-3-11.86Типовой проект 503-3-11.86Типовой проект 503-3-11.86Типовой проект 503-3-11.86Типовой проект 503-3-11.86Типовой проект 503-3-11.86Типовой проект 503-3-11.86Типовой проект 503-3-11.86Типовой проект 503-3-11.86Типовой проект 503-3-11.86Типовой проект 503-3-11.86Типовой проект 503-3-11.86Типовой проект 503-3-11.86Типовой проект 503-3-11.86Типовой проект 503-3-11.86Типовой проект 503-3-11.86Типовой проект 503-3-11.86

© 2013 Ёшкин Кот :-) Карта сайта