Информационная система
«Ёшкин Кот»

Скачать базу одним архивом
Скачать обновления
История создания базы
Карта сайта

Скачать Типовой проект 902-5-47.87 Альбом V. Электротехнические решения. Автоматизация. Связь и сигнализация

Дата актуализации: 10.08.2017

Типовой проект 902-5-47.87

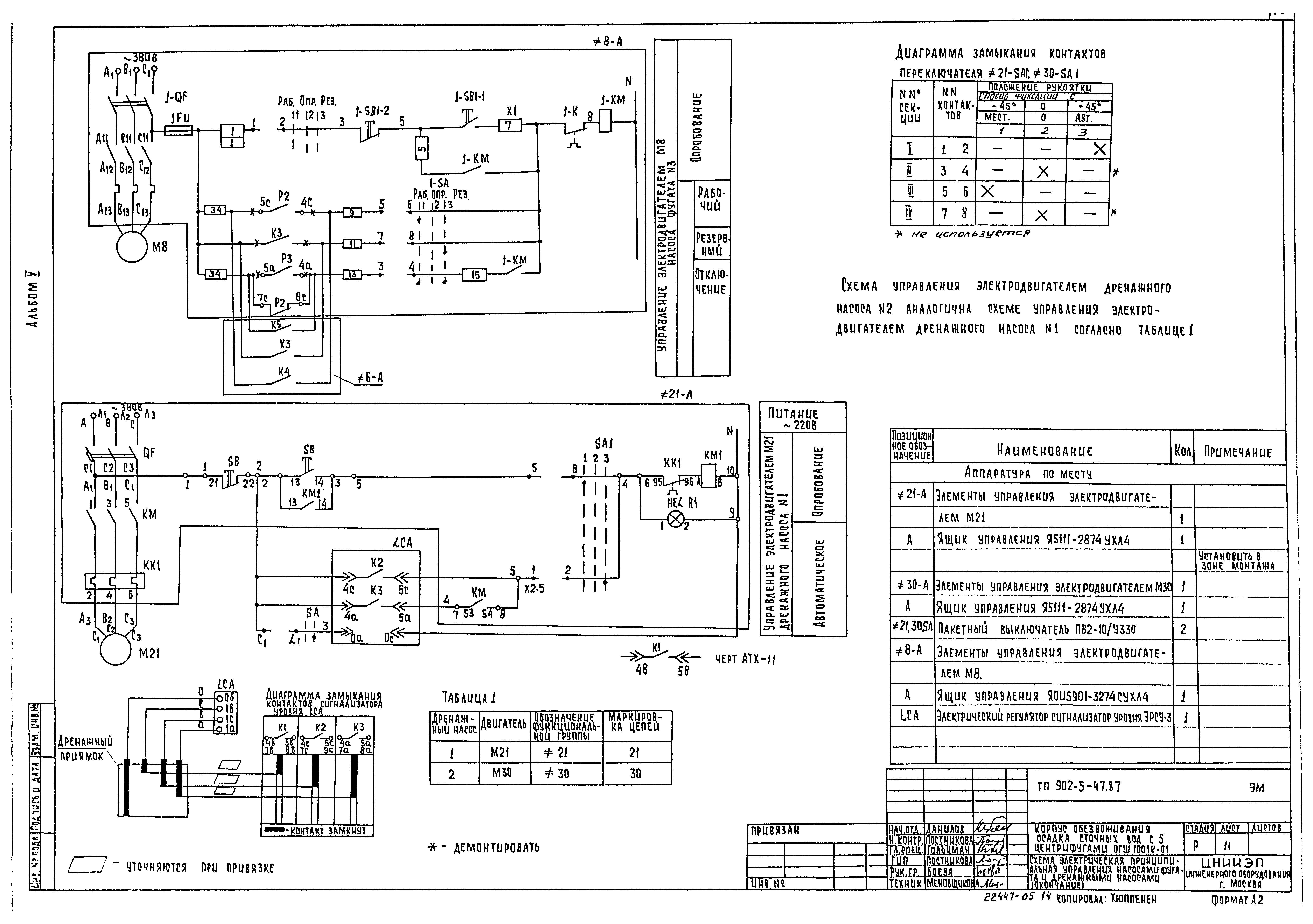
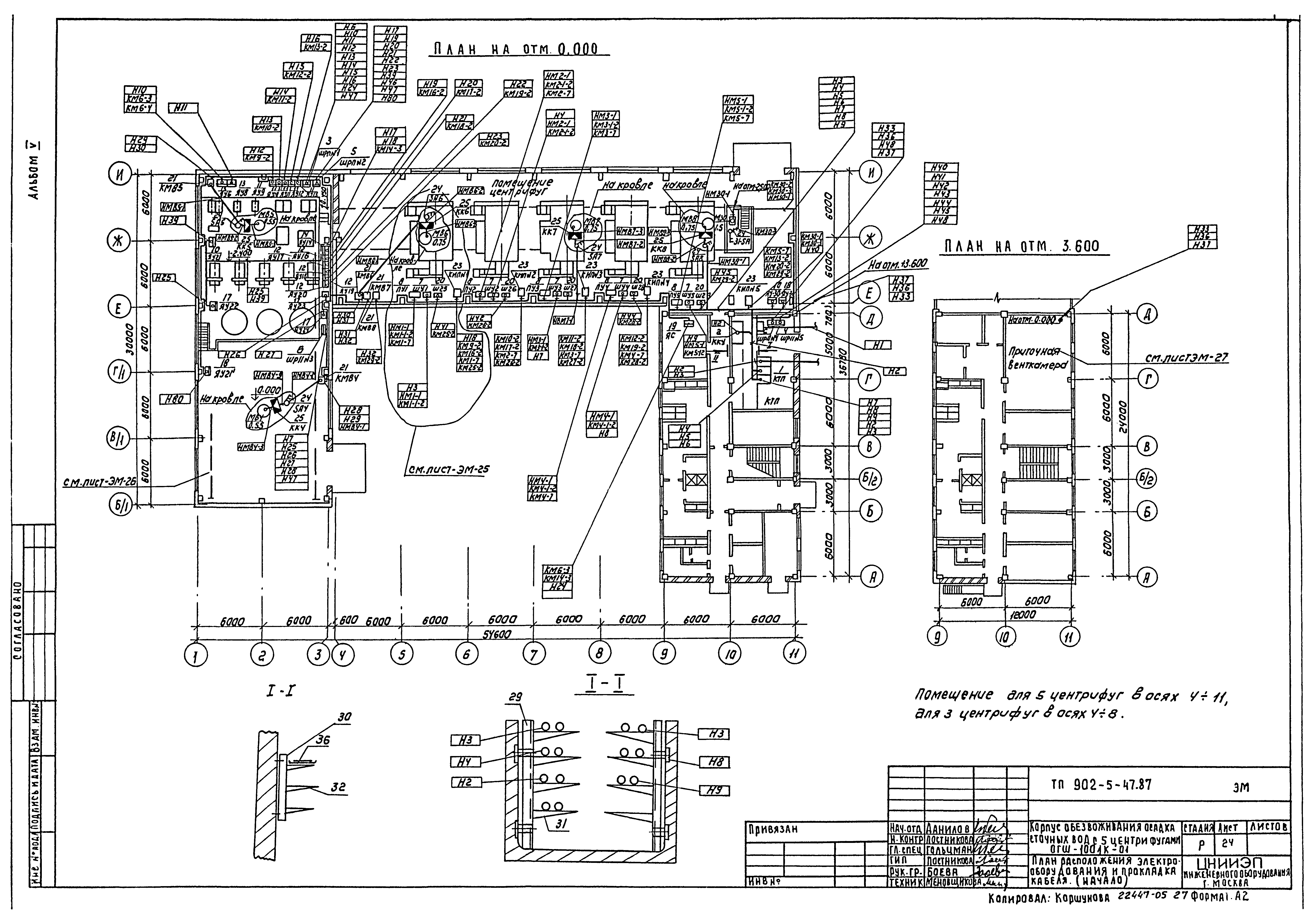
Альбом V. Электротехнические решения. Автоматизация. Связь и сигнализация

Обозначение: Типовой проект 902-5-47.87
Обозначение англ: 902-5-47.87
Статус:не определен законодательством
Название рус.:Альбом V. Электротехнические решения. Автоматизация. Связь и сигнализация
Дата добавления в базу:12.02.2016
Дата актуализации:05.05.2017
Дата введения:29.07.1986
Разработан: ЦНИИЭП инженерного оборудования
Утверждён:29.07.1986 Госгражданстрой (Gosgrazhdanstroy 241)
Расположен в:Техническая документация Строительство Справочные документы Типовые строительные конструкции, изделия и узлы Общероссийский строительный каталог Промышленные предприятия, здания и сооружения Здания и сооружения санитарно-технические Канализация Сооружения для очистки производственных сточных вод Сооружения для обработки осадка
Типовой проект 902-5-47.87Типовой проект 902-5-47.87Типовой проект 902-5-47.87Типовой проект 902-5-47.87Типовой проект 902-5-47.87Типовой проект 902-5-47.87Типовой проект 902-5-47.87Типовой проект 902-5-47.87Типовой проект 902-5-47.87Типовой проект 902-5-47.87Типовой проект 902-5-47.87Типовой проект 902-5-47.87Типовой проект 902-5-47.87Типовой проект 902-5-47.87Типовой проект 902-5-47.87Типовой проект 902-5-47.87Типовой проект 902-5-47.87Типовой проект 902-5-47.87Типовой проект 902-5-47.87Типовой проект 902-5-47.87Типовой проект 902-5-47.87Типовой проект 902-5-47.87Типовой проект 902-5-47.87Типовой проект 902-5-47.87Типовой проект 902-5-47.87Типовой проект 902-5-47.87Типовой проект 902-5-47.87Типовой проект 902-5-47.87Типовой проект 902-5-47.87Типовой проект 902-5-47.87Типовой проект 902-5-47.87Типовой проект 902-5-47.87Типовой проект 902-5-47.87Типовой проект 902-5-47.87Типовой проект 902-5-47.87Типовой проект 902-5-47.87Типовой проект 902-5-47.87Типовой проект 902-5-47.87Типовой проект 902-5-47.87Типовой проект 902-5-47.87Типовой проект 902-5-47.87Типовой проект 902-5-47.87Типовой проект 902-5-47.87Типовой проект 902-5-47.87Типовой проект 902-5-47.87Типовой проект 902-5-47.87Типовой проект 902-5-47.87Типовой проект 902-5-47.87Типовой проект 902-5-47.87Типовой проект 902-5-47.87Типовой проект 902-5-47.87Типовой проект 902-5-47.87Типовой проект 902-5-47.87Типовой проект 902-5-47.87Типовой проект 902-5-47.87Типовой проект 902-5-47.87Типовой проект 902-5-47.87Типовой проект 902-5-47.87Типовой проект 902-5-47.87Типовой проект 902-5-47.87Типовой проект 902-5-47.87Типовой проект 902-5-47.87Типовой проект 902-5-47.87Типовой проект 902-5-47.87Типовой проект 902-5-47.87Типовой проект 902-5-47.87

© 2013 Ёшкин Кот :-) Карта сайта