Информационная система
«Ёшкин Кот»

Скачать базу одним архивом
Скачать обновления
История создания базы
Карта сайта

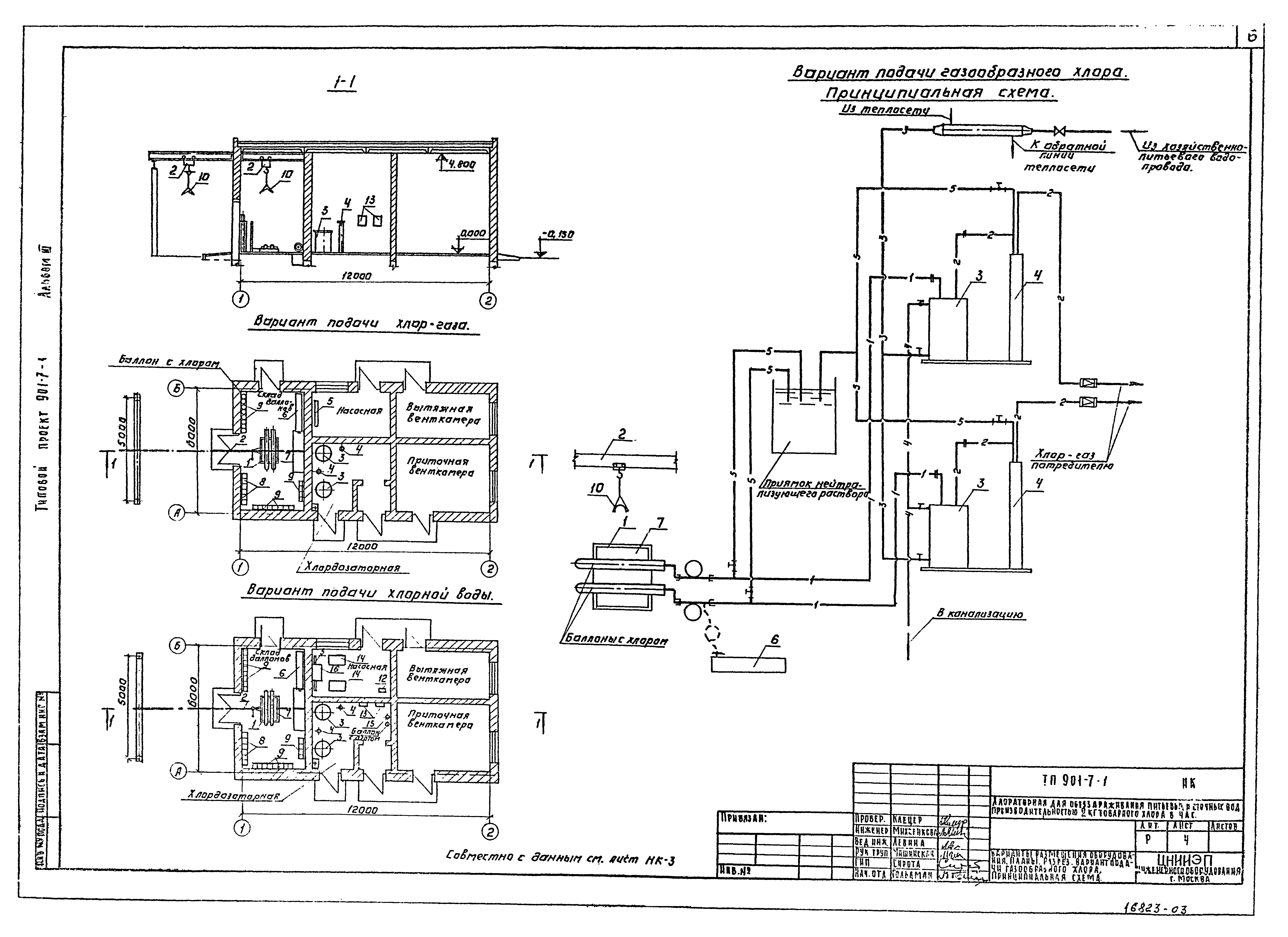
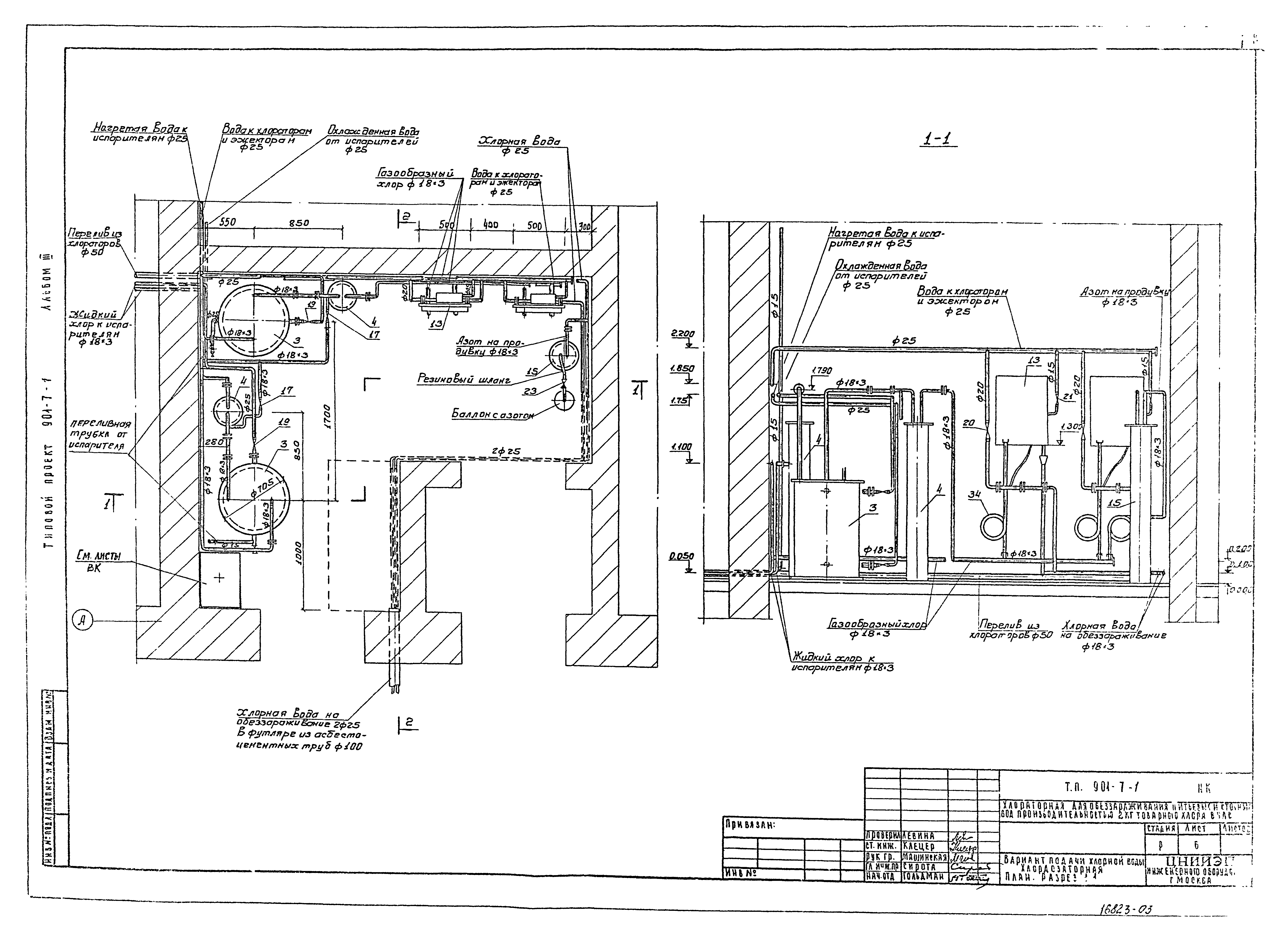
Скачать Типовой проект 901-7-1 Альбом III. Технологическая и санитарно-техническая части. Вариант обеззараживания сточных вод

Дата актуализации: 10.08.2017

Типовой проект 901-7-1

Альбом III. Технологическая и санитарно-техническая части. Вариант обеззараживания сточных вод

Обозначение: Типовой проект 901-7-1
Обозначение англ: 901-7-1
Статус:заменен
Название рус.:Альбом III. Технологическая и санитарно-техническая части. Вариант обеззараживания сточных вод
Дата добавления в базу:12.02.2016
Дата актуализации:05.05.2017
Дата введения:01.07.1984
Разработан: ЦНИИЭП инженерного оборудования
Утверждён:27.12.1979 Госгражданстрой (Gosgrazhdanstroy 279)
Расположен в:Техническая документация Строительство Справочные документы Типовые строительные конструкции, изделия и узлы Общероссийский строительный каталог Промышленные предприятия, здания и сооружения Здания и сооружения санитарно-технические Водоснабжение Сооружения и установки по обеззараживанию воды Реагентное хозяйство для станций очистки
Заменяет собой:
  • Типовой проект 901-3-17/69
Чем заменён:
Типовой проект 901-7-1Типовой проект 901-7-1Типовой проект 901-7-1Типовой проект 901-7-1Типовой проект 901-7-1Типовой проект 901-7-1Типовой проект 901-7-1Типовой проект 901-7-1Типовой проект 901-7-1Типовой проект 901-7-1Типовой проект 901-7-1Типовой проект 901-7-1Типовой проект 901-7-1Типовой проект 901-7-1Типовой проект 901-7-1Типовой проект 901-7-1Типовой проект 901-7-1Типовой проект 901-7-1Типовой проект 901-7-1Типовой проект 901-7-1Типовой проект 901-7-1

© 2013 Ёшкин Кот :-) Карта сайта