Информационная система
«Ёшкин Кот»

Скачать базу одним архивом
Скачать обновления
История создания базы
Карта сайта

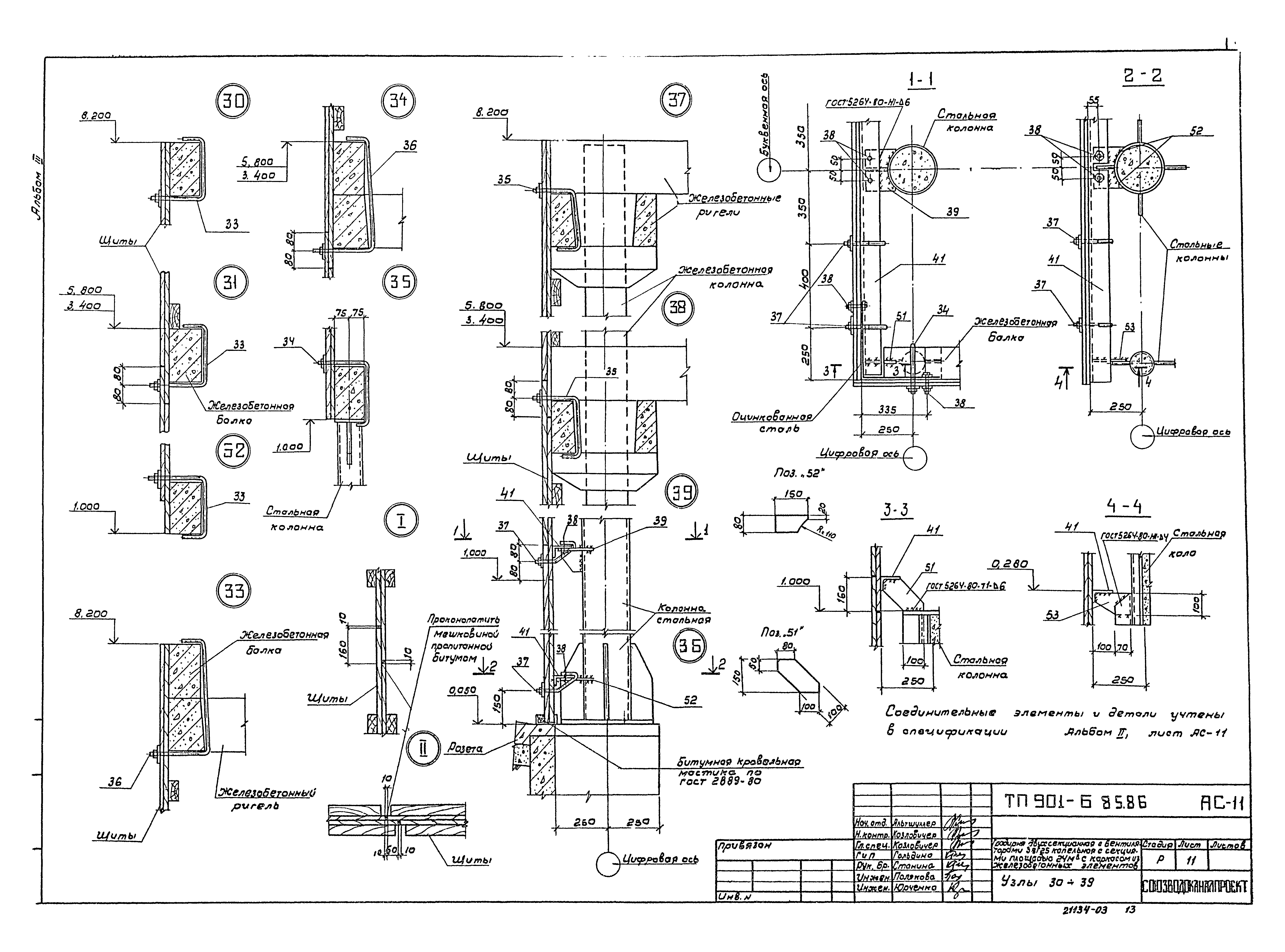
Скачать Типовой проект 901-6-88.86 Альбом III. Строительные узлы (из ТП 901-6-85.86)

Дата актуализации: 10.08.2017

Типовой проект 901-6-88.86

Альбом III. Строительные узлы (из ТП 901-6-85.86)

Обозначение: Типовой проект 901-6-88.86
Обозначение англ: 901-6-88.86
Статус:отменен
Название рус.:Альбом III. Строительные узлы (из ТП 901-6-85.86)
Дата добавления в базу:21.05.2015
Дата актуализации:05.05.2017
Дата введения:01.01.1991
Разработан: Союзводоканалпроект
Утверждён:03.12.1984 Госстрой СССР (37)
Издан: ЦИТП Госстроя СССР (CITP, Gosstroy (USSR) 1986 г. )
Расположен в:Техническая документация Строительство Справочные документы Типовые строительные конструкции, изделия и узлы Общероссийский строительный каталог Промышленные предприятия, здания и сооружения Здания и сооружения санитарно-технические Водоснабжение Градирни
Заменяет собой:
  • Типовой проект 901-6-56
Нормативные ссылки:
Типовой проект 901-6-88.86Типовой проект 901-6-88.86Типовой проект 901-6-88.86Типовой проект 901-6-88.86Типовой проект 901-6-88.86Типовой проект 901-6-88.86Типовой проект 901-6-88.86Типовой проект 901-6-88.86Типовой проект 901-6-88.86Типовой проект 901-6-88.86Типовой проект 901-6-88.86Типовой проект 901-6-88.86Типовой проект 901-6-88.86Типовой проект 901-6-88.86Типовой проект 901-6-88.86Типовой проект 901-6-88.86Типовой проект 901-6-88.86Типовой проект 901-6-88.86Типовой проект 901-6-88.86Типовой проект 901-6-88.86Типовой проект 901-6-88.86Типовой проект 901-6-88.86

© 2013 Ёшкин Кот :-) Карта сайта