Информационная система
«Ёшкин Кот»

Скачать базу одним архивом
Скачать обновления
История создания базы
Карта сайта

Скачать ТП 78.36.005-2014 Административное здание. Типовой рабочий проект. Система контроля и управления доступом

Дата актуализации: 10.08.2017

ТП 78.36.005-2014

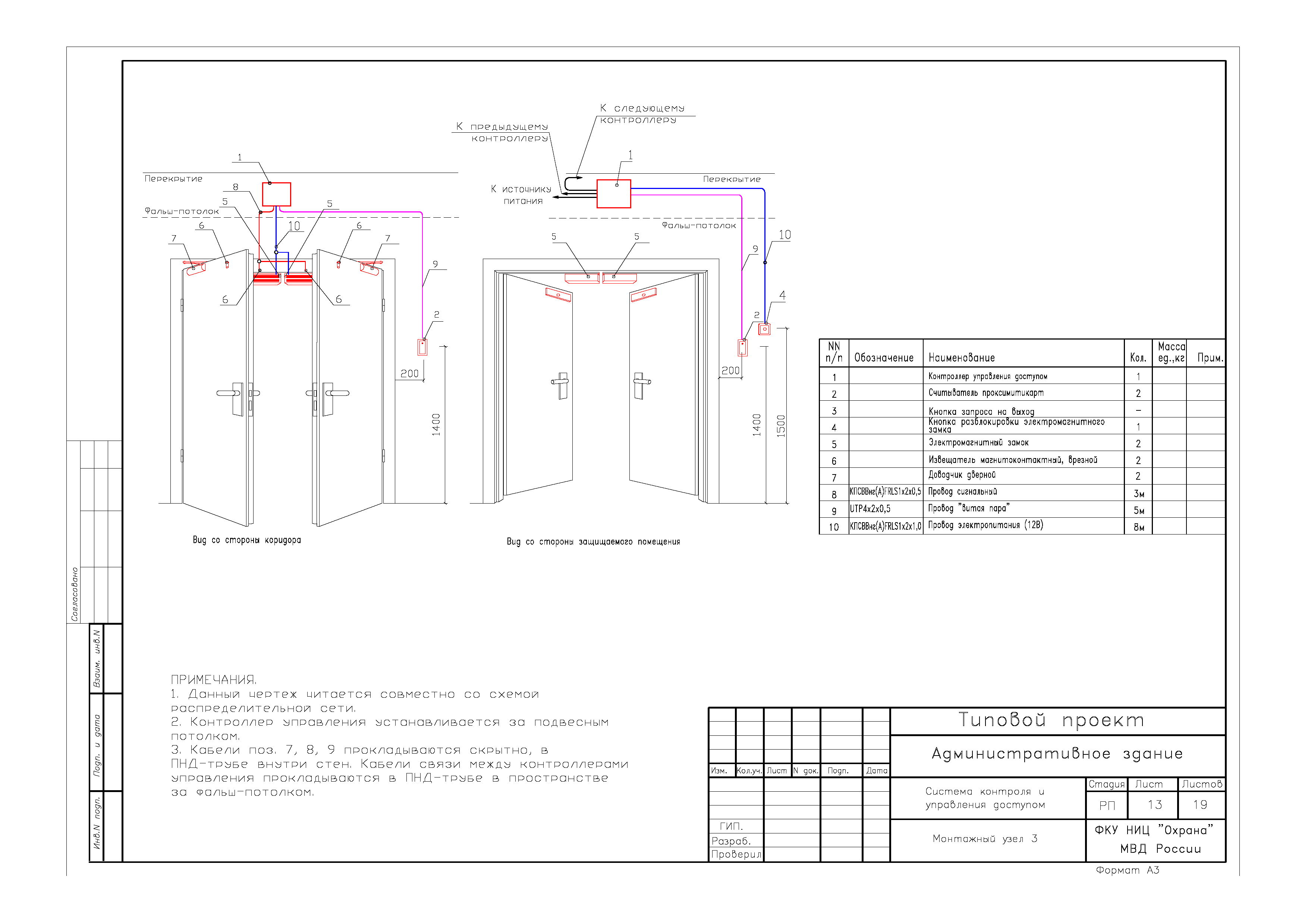
Административное здание. Типовой рабочий проект. Система контроля и управления доступом

Обозначение: ТП 78.36.005-2014
Обозначение англ: TP 78.36.005-2014
Статус:действует
Название рус.:Административное здание. Типовой рабочий проект. Система контроля и управления доступом
Дата добавления в базу:21.05.2015
Дата актуализации:05.05.2017
Область применения:Рабочий проект системы контроля и управления доступом (СКУД) административного здания предназначен для собственников объектов, специалистов строительных организаций, осуществляющих мероприятия по проектированию, строительству, капитальному ремонту, приему в эксплуатацию объектов, а также сотрудников инженерно-технической службы, осуществляющих обследование объектов и прием их на ПДО, подразделений вневедомственной охраны полиции, осуществляющих мероприятия по проверке уровня инженерно-технической укрепленности и противокриминальной, в том числе антитеррористической защищенности объектов.
Оглавление:Состав рабочего проекта
Пояснительная записка
   1 Общая часть
   2 Характеристика защищаемого объекта
   3 Основные технические решения, принятые в проекте
   4 Монтаж проводов и кабелей
   5 Электропитание
   6 Сведения об организации и ведении монтажных работ
   7 Профессиональный и квалификационный состав лиц, работающих на объекте по техническому обслуживанию и эксплуатации систем
Графическая часть
Разработан: ФКУ НИЦ Охрана МВД России
Утверждён: ГУВО МВД России (Security Guard Service Administration at the Russian Federation Ministry of Internal Affairs )
Издан: ФКУ НИЦ Охрана МВД России (2014 г. )
Расположен в:Техническая документация Экология ОХРАНА ОКРУЖАЮЩЕЙ СРЕДЫ, ЗАЩИТА ЧЕЛОВЕКА ОТ ВОЗДЕЙСТВИЯ ОКРУЖАЮЩЕЙ СРЕДЫ. БЕЗОПАСНОСТЬ Системы аварийной сигнализации и оповещения Строительство Нормативные документы Отраслевые и ведомственные нормативно-методические документы Проектирование и строительство объектов МВД
Нормативные ссылки:
ТП 78.36.005-2014ТП 78.36.005-2014ТП 78.36.005-2014ТП 78.36.005-2014ТП 78.36.005-2014ТП 78.36.005-2014ТП 78.36.005-2014ТП 78.36.005-2014ТП 78.36.005-2014ТП 78.36.005-2014ТП 78.36.005-2014ТП 78.36.005-2014ТП 78.36.005-2014ТП 78.36.005-2014ТП 78.36.005-2014ТП 78.36.005-2014ТП 78.36.005-2014ТП 78.36.005-2014ТП 78.36.005-2014ТП 78.36.005-2014ТП 78.36.005-2014ТП 78.36.005-2014ТП 78.36.005-2014ТП 78.36.005-2014ТП 78.36.005-2014ТП 78.36.005-2014ТП 78.36.005-2014ТП 78.36.005-2014ТП 78.36.005-2014ТП 78.36.005-2014ТП 78.36.005-2014ТП 78.36.005-2014ТП 78.36.005-2014ТП 78.36.005-2014ТП 78.36.005-2014ТП 78.36.005-2014ТП 78.36.005-2014

© 2013 Ёшкин Кот :-) Карта сайта