Информационная система
«Ёшкин Кот»

Скачать базу одним архивом
Скачать обновления
История создания базы
Карта сайта

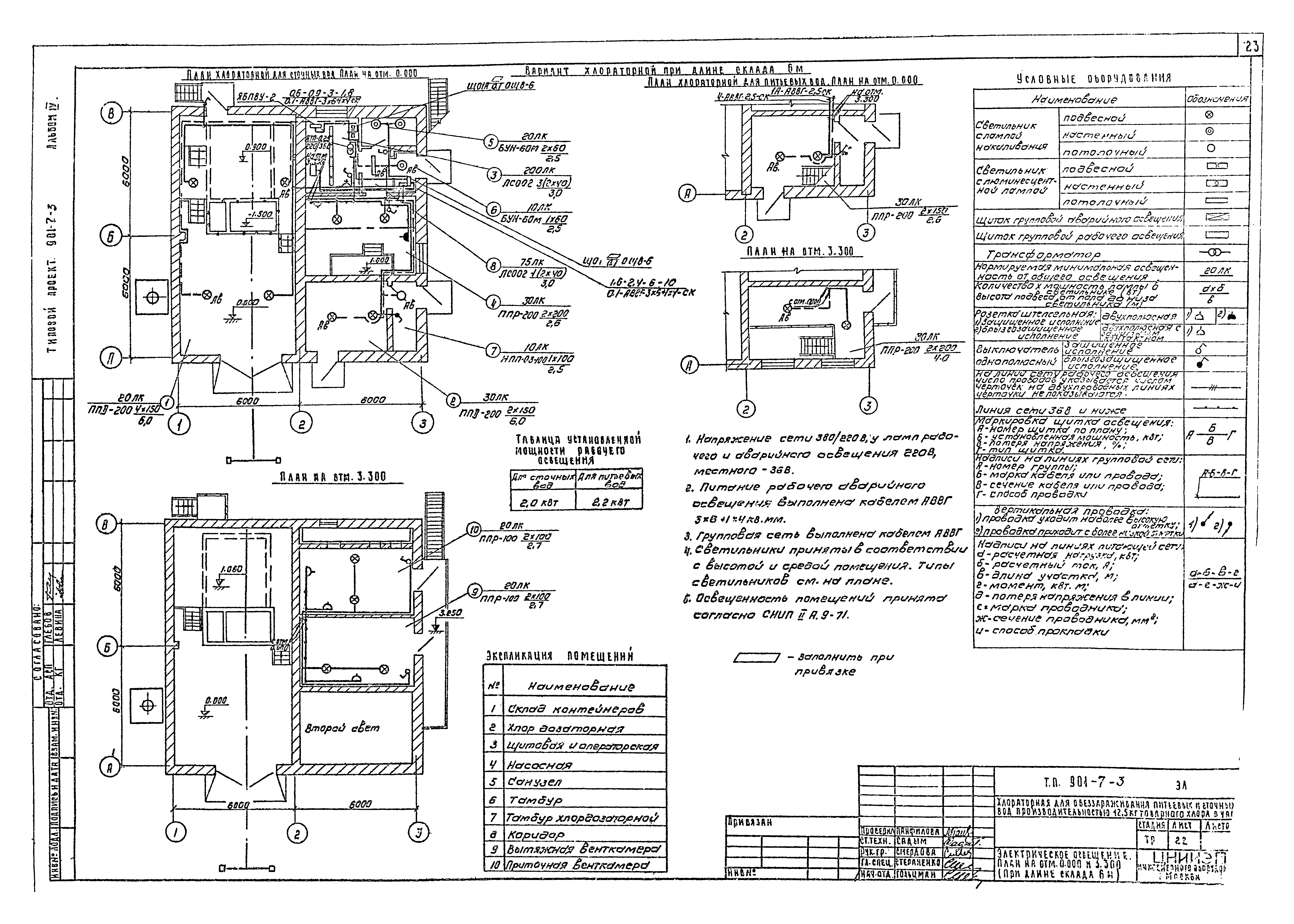
Скачать Типовой проект 901-7-3 Альбом IV. Электротехническая часть

Дата актуализации: 10.08.2017

Типовой проект 901-7-3

Альбом IV. Электротехническая часть

Обозначение: Типовой проект 901-7-3
Обозначение англ: 901-7-3
Статус:заменен
Название рус.:Альбом IV. Электротехническая часть
Дата добавления в базу:21.05.2015
Дата актуализации:05.05.2017
Дата введения:01.07.1984
Разработан: ЦНИИЭП инженерного оборудования
Утверждён:27.12.1979 Госгражданстрой (Gosgrazhdanstroy 279)
Издан: ЦИТП Госстроя СССР (CITP, Gosstroy (USSR) 1981 г. )
Расположен в:Техническая документация Строительство Справочные документы Типовые строительные конструкции, изделия и узлы Общероссийский строительный каталог Промышленные предприятия, здания и сооружения Здания и сооружения санитарно-технические Водоснабжение Сооружения и установки по обеззараживанию воды Реагентное хозяйство для станций очистки
Заменяет собой:
  • Типовой проект 901-3-15/70
Чем заменён:
Типовой проект 901-7-3Типовой проект 901-7-3Типовой проект 901-7-3Типовой проект 901-7-3Типовой проект 901-7-3Типовой проект 901-7-3Типовой проект 901-7-3Типовой проект 901-7-3Типовой проект 901-7-3Типовой проект 901-7-3Типовой проект 901-7-3Типовой проект 901-7-3Типовой проект 901-7-3Типовой проект 901-7-3Типовой проект 901-7-3Типовой проект 901-7-3Типовой проект 901-7-3Типовой проект 901-7-3Типовой проект 901-7-3Типовой проект 901-7-3Типовой проект 901-7-3Типовой проект 901-7-3Типовой проект 901-7-3Типовой проект 901-7-3Типовой проект 901-7-3Типовой проект 901-7-3Типовой проект 901-7-3Типовой проект 901-7-3

© 2013 Ёшкин Кот :-) Карта сайта