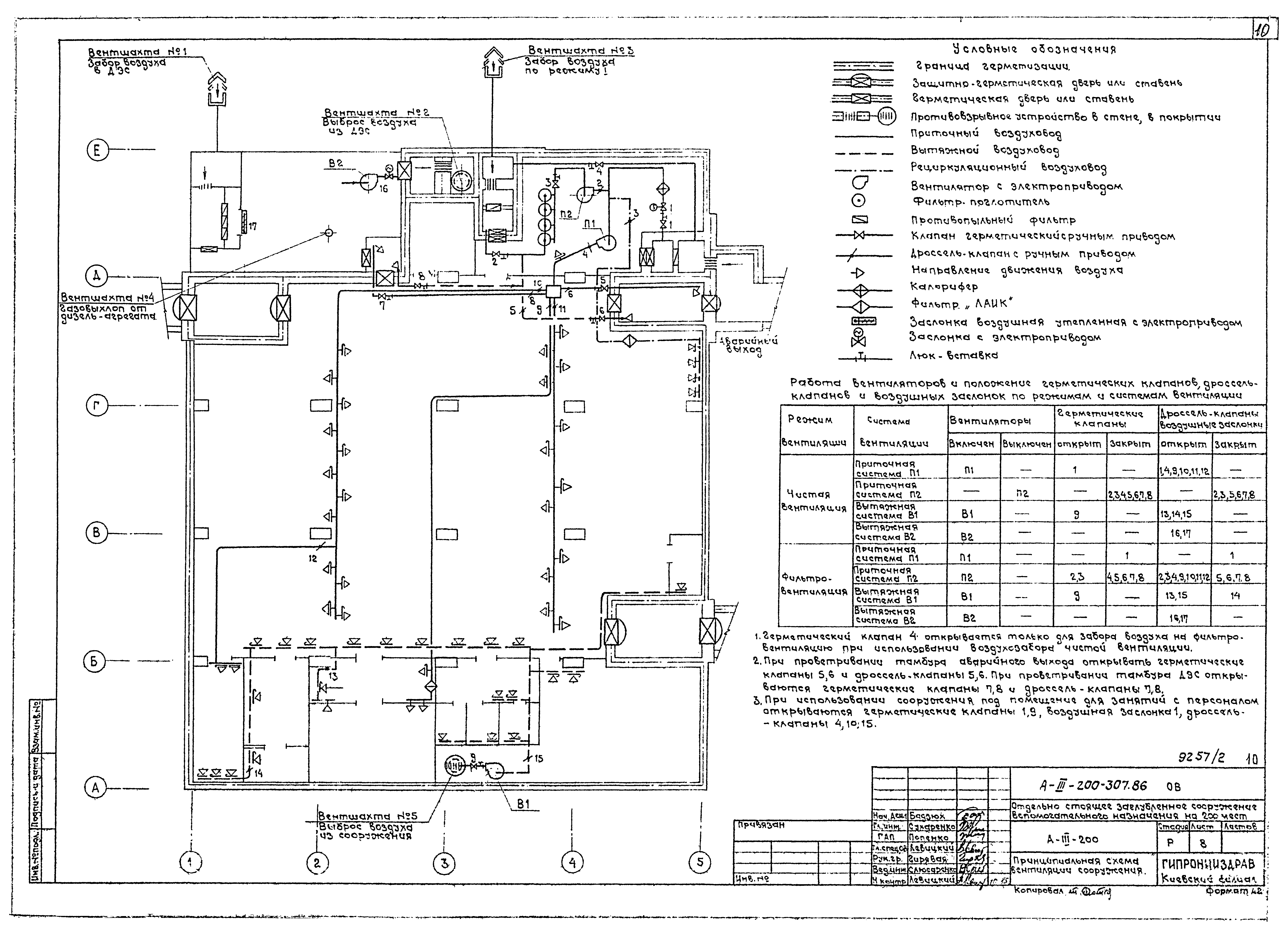
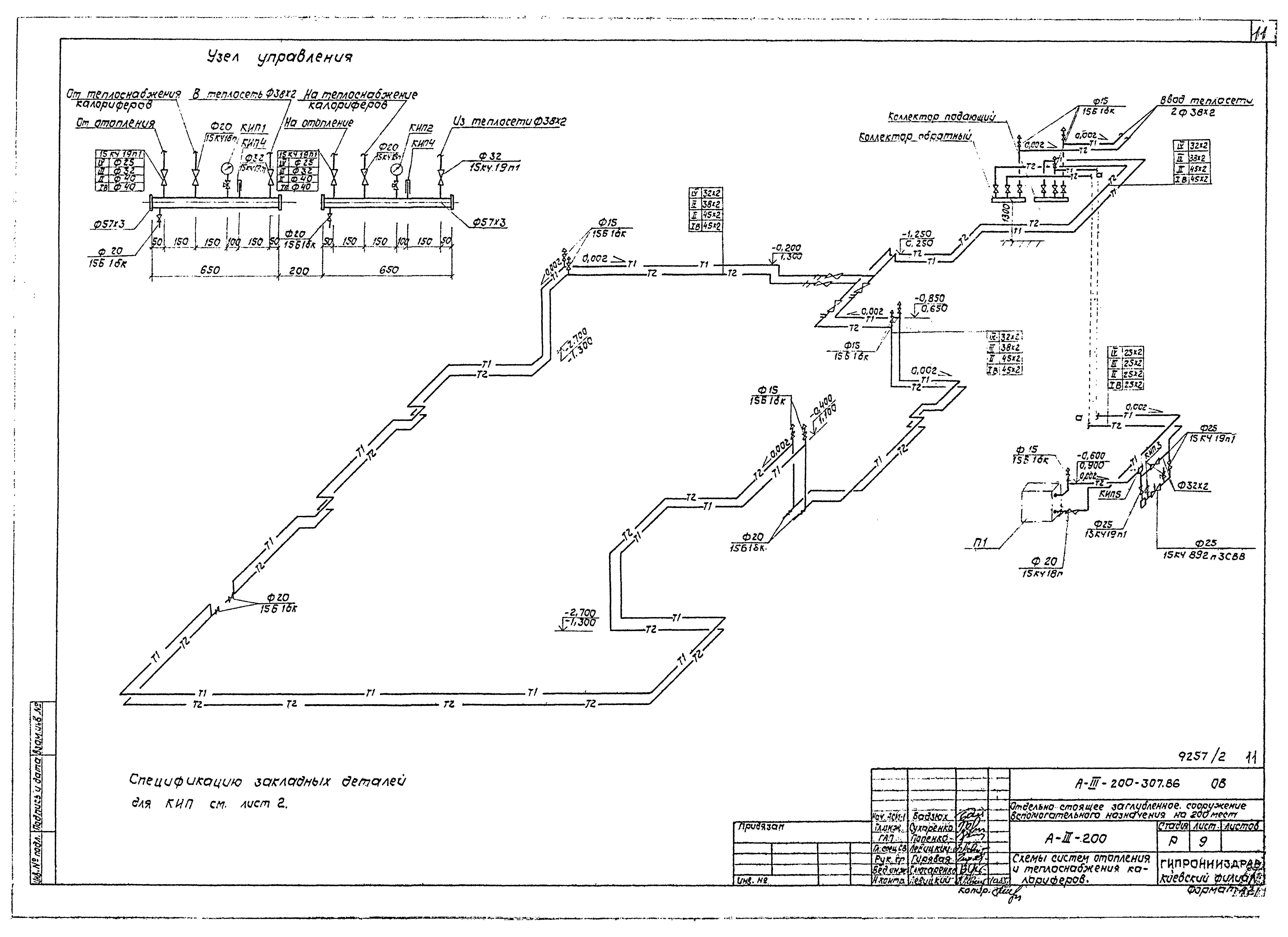
Скачать Типовой проект А-III-200-307.86 Альбом 2. Отопление и вентиляция. Водопровод и канализация. Электрооборудование. Связь и сигнализация. АвтоматизацияДата актуализации: 10.08.2017 Типовой проект А-III-200-307.86
Альбом 2. Отопление и вентиляция. Водопровод и канализация. Электрооборудование. Связь и сигнализация. АвтоматизацияОбозначение: | Типовой проект А-III-200-307.86 | Обозначение англ: | А-III-200-307.86 | Статус: | действует | Название рус.: | Альбом 2. Отопление и вентиляция. Водопровод и канализация. Электрооборудование. Связь и сигнализация. Автоматизация | Дата добавления в базу: | 21.05.2015 | Дата актуализации: | 05.05.2017 | Утверждён: | 07.02.1985 Госгражданстрой (Gosgrazhdanstroy 36)
| Расположен в: |
|
                                      
|