Информационная система
«Ёшкин Кот»

Скачать базу одним архивом
Скачать обновления
История создания базы
Карта сайта

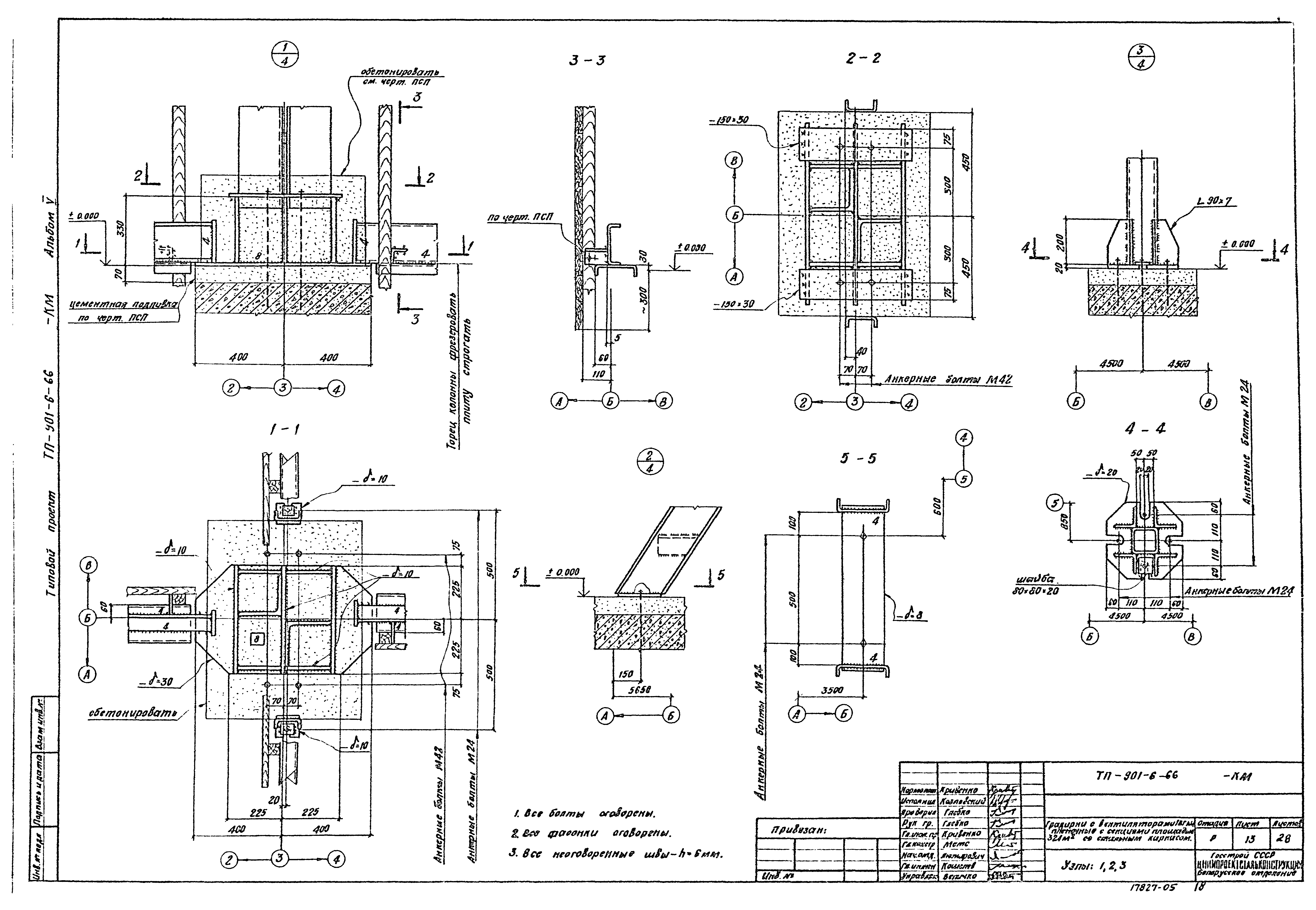
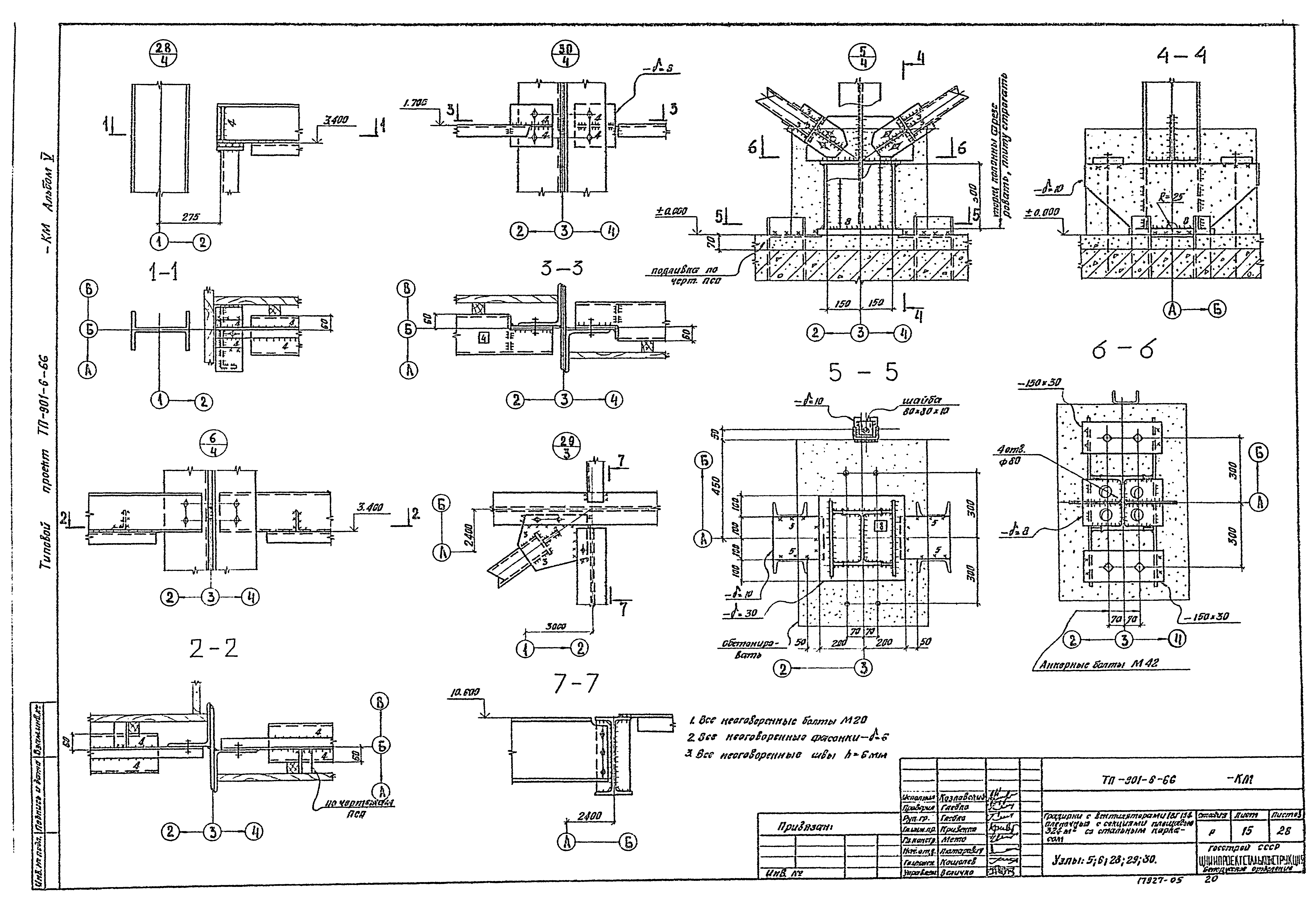
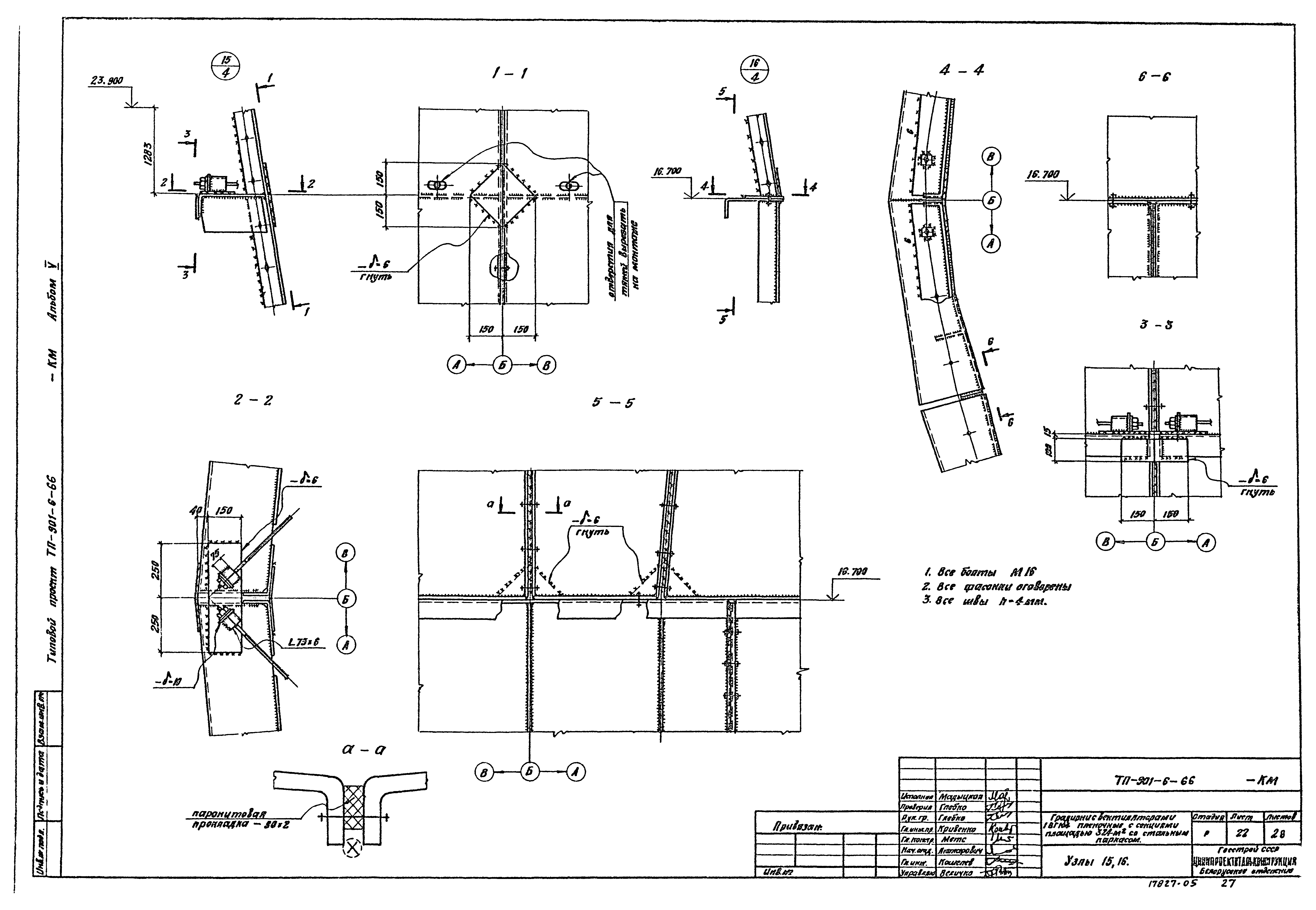
Скачать Типовой проект 901-6-66 Альбом V. Конструкции металлические

Дата актуализации: 10.08.2017

Типовой проект 901-6-66

Альбом V. Конструкции металлические

Обозначение: Типовой проект 901-6-66
Обозначение англ: 901-6-66
Статус:отменен
Название рус.:Альбом V. Конструкции металлические
Дата добавления в базу:21.05.2015
Дата актуализации:05.05.2017
Дата введения:01.01.1990
Разработан: Союзводоканалпроект
ЦНИИпроектстальконструкция
Промстройпроект
Ростовский Водоканалпроект
Утверждён:16.11.1981 Союзводоканалпроект (Soyuzvodokanalproject 56)
Издан: ЦИТП Госстроя СССР (CITP, Gosstroy (USSR) 1982 г. )
Расположен в:Техническая документация Строительство Справочные документы Типовые строительные конструкции, изделия и узлы Общероссийский строительный каталог Промышленные предприятия, здания и сооружения Здания и сооружения санитарно-технические Водоснабжение Градирни
Типовой проект 901-6-66Типовой проект 901-6-66Типовой проект 901-6-66Типовой проект 901-6-66Типовой проект 901-6-66Типовой проект 901-6-66Типовой проект 901-6-66Типовой проект 901-6-66Типовой проект 901-6-66Типовой проект 901-6-66Типовой проект 901-6-66Типовой проект 901-6-66Типовой проект 901-6-66Типовой проект 901-6-66Типовой проект 901-6-66Типовой проект 901-6-66Типовой проект 901-6-66Типовой проект 901-6-66Типовой проект 901-6-66Типовой проект 901-6-66Типовой проект 901-6-66Типовой проект 901-6-66Типовой проект 901-6-66Типовой проект 901-6-66Типовой проект 901-6-66Типовой проект 901-6-66Типовой проект 901-6-66Типовой проект 901-6-66Типовой проект 901-6-66Типовой проект 901-6-66Типовой проект 901-6-66Типовой проект 901-6-66Типовой проект 901-6-66

© 2013 Ёшкин Кот :-) Карта сайта