Скачать Типовой проект 901-3-235.87 Альбом IV. Отстойники и фильтры. Архитектурные решения, конструкции железобетонные и металлические (из ТП 901-3-233.87)Дата актуализации: 10.08.2017 Типовой проект 901-3-235.87
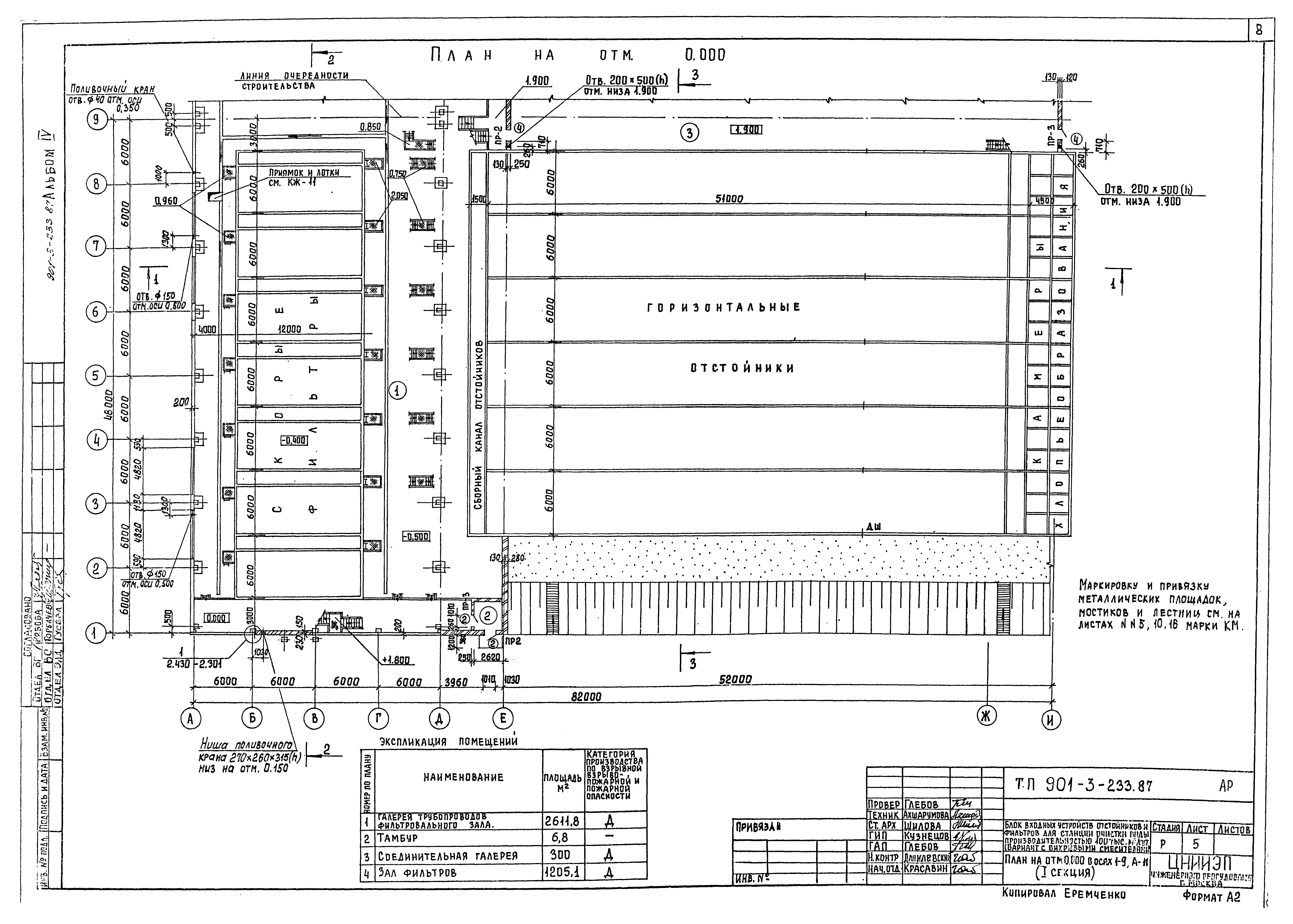
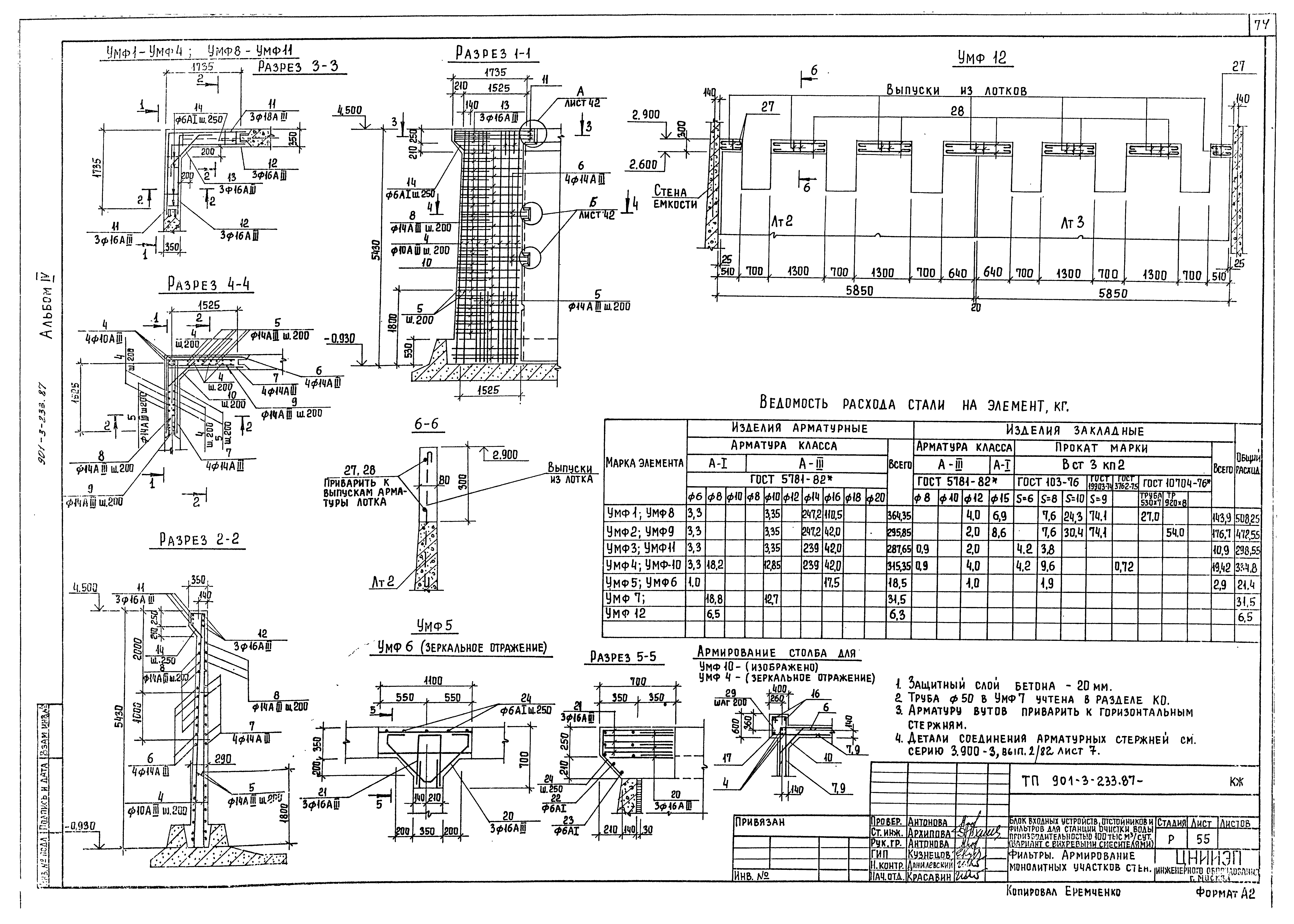
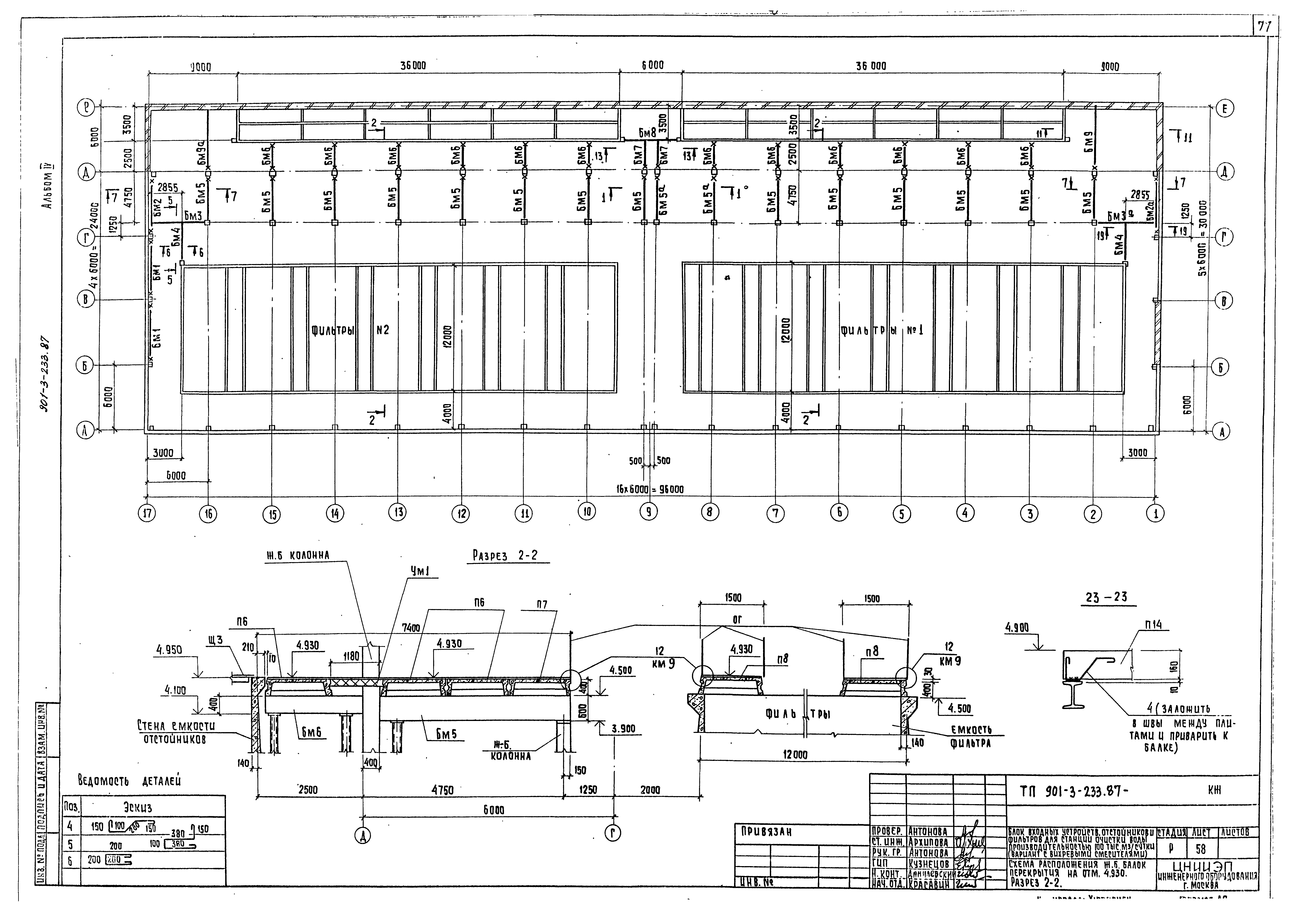
Альбом IV. Отстойники и фильтры. Архитектурные решения, конструкции железобетонные и металлические (из ТП 901-3-233.87)Обозначение: | Типовой проект 901-3-235.87 | Обозначение англ: | 901-3-235.87 | Статус: | не определен законодательством | Название рус.: | Альбом IV. Отстойники и фильтры. Архитектурные решения, конструкции железобетонные и металлические (из ТП 901-3-233.87) | Дата добавления в базу: | 21.05.2015 | Дата актуализации: | 05.05.2017 | Дата введения: | 13.02.1985 | Оглавление: | Содержание альбома Архитектурные решения Общие данные Компоновочные схемы (вариант с вихревыми смесителями) Компоновочные схемы (вариант с контактными камерами) Компоновочные схемы (вариант с микрофильтрами) План на отм. 0.000 в осях 1 - 9; А - И (1 секция) План на отм. 0.000 в осях 9 - 17; А - И (2 секция) План на отм. 4.930 в осях 1 - 9; А - И (1 секция) План на отм. 4.930 в осях 9 - 17; А - И (2 секция) Разрезы 1-1; 2-2 Разрез 3-3. Детали Фасады 1 - 17; 17 - 1 Фасады А - И; И - А Ведомости: проемов ворот и дверей, перемычек, отделки помещений. Спецификации перемычек и элементов заполнения проемов План кровли. Планы полов на отм. 0.000; 1.900 и 4.930 Фрагменты I-ой очереди строительства Фрагменты II-ой очереди строительства Конструкции железобетонные Общие данные Схема расположения фундаментов, фундаментных балок и блоков Схема расположения фундаментов, фундаментных балок, подпорных стенок. Вид 1-1 - 3-3. Сечения 4-4; 5-5 Схема расположения фундаментов, фундаментных балок, подпорных стенок. Вид 6-6. Сечения 7-7 - 10-10 Схема расположения фундаментов, фундаментных балок и блоков. Фрагмент плана №1. Сечения 11-11 - 15-15 Фундаменты Фм1 - Фм4 Фундаменты Фм7 - Фм10 Фундаменты Фм5, Фм11 Фундаменты Фм6, Фм13. Ведомость расхода стали на элемент, кг Зал фильтров. Схема расположения лотков, приямков, бетонных опор. Бетонные опоры ОП1 - ОП10. Фрагмент 1. Сечения 2-2; 3-3 Зал фильтров. Схема расположения лотков, приямков, бетонных опор. Сечения 4-4 - 12-12. Узлы 1; 2 Схема расположения колонн, ферм и обвязочных балок. Разрез 1-1 Схема расположения колонн, ферм и обвязочных балок. Разрезы 2-2; 3-3. Узлы Схема расположения плит покрытия. Сечение 1-1 Схема расположения стеновых панелей Схема расположения стеновых панелей. Фрагменты 1 - 10 Схема расположения плит покрытия отстойника №1. Сечения а-а - в-в Схема расположения плит покрытия отстойника №2. Фрагмент 1. Сечение 2-2 Отстойник №1. Схема расположения стеновых панелей Отстойник №2. Схема расположения стеновых панелей Отстойники. Схема расположения стеновых панелей. Разрез 1-1. Виды 2-2; 3-3 Отстойники. Схема расположения стеновых панелей. Разрезы 4-4; 5-5; 10-10 Отстойники. Схема расположения стеновых панелей. Виды 6-6 - 8-8 Отстойник №2. Вид 9-9 Отстойники. Схема расположения желобов. Схема набетонок. Сечения 11-11 - 13-13 Отстойники. Схема расположения желобов. Виды 14-14; 15-15. Сечения 16-16 - 18-18 Отстойники. Узлы I - V. Спецификация Отстойники. Опалубочный чертеж днища. Сечения а-а - и-и Отстойники. Армирование днища. Схема расположения нижних сеток Отстойники. Армирование днища. Схема расположения верхних сеток Отстойники. Армирование днища. Схема расположения каркасов Отстойники. Армирование днища. Разрезы 1-1 - 3-3 Отстойники. Армирование днища. Узлы I - VIII Отстойники. Армирование днища. Спецификация Отстойники. Монолитные участки УМо3; УМо4. Опалубочные чертежи. Вид 1-1. Фрагменты 1; 2. Сечения 2-2 Отстойники. Монолитные участки УМо1 - УМо6. Опалубочные чертежи. Сечения 3-3 - 10-10 Отстойники. Монолитные участки УМо7 - УМо11. Опалубочные чертежи. Сечения 10`-10` - 13-13 Отстойники. Монолитные участки УМо3; УМо4. Армирование. Узел А Отстойники. Монолитные участки УМо3; УМо4. Армирование. Узел Б; В Отстойники. Монолитные участки УМо5 - УМо9. Армирование Отстойники. Монолитные участки УМо1; 1а; УМо2; УМо10; УМо10а; УМо11. Армирование Отстойники. Спецификация монолитных участков Фильтр №1. Общий вид. Разрезы 1-1; 2-2 Фильтр №1. Общий вид. Виды 3-3; 4-4 Фильтр №1. Общий вид. Разрез 5-5. Вид 6-6. Спецификация Фильтр №1. Общий вид. Разрез 7-7 Фильтр №2. Общий вид. Виды 9-9; 10-10. Разрез 8-8 Фильтры 1; 2. Общий вид. Узлы. Виды 11-11 - 13-13. Спецификация Фильтр №1. Армирование днища. Схема расположения нижних сеток. Разрез 1-1 Фильтр №1. Армирование днища. Схема расположения верхних сеток. Разрез 2-2 Фильтр №1. Опалубочный чертеж, армирование днища и схема расположения каркасов Фильтр №1. Армирование днища. Узлы I - V Фильтры 1; 2. Опалубочные чертежи монолитных участков стен. Узлы А; Б Фильтры. Армирование монолитных участков стен Фильтры 1; 2. Армирование монолитных участков стен. Спецификация Схема расположения плит перекрытия на отм. 4.930. Разрез 1-1 Схема расположения железобетонных балок перекрытия на отм. 4.930. Разрез 2-2 Схема расположения плит перекрытия на отм. 4.930. Разрезы 3-3 - 12-12. Фрагмент 1 Схема расположения плит перекрытия на отм. 4.930. Разрезы 13-13 - 22-22. Фрагмент 1 Схема расположения плит перекрытия на отм. 4.930. Балки монолитные БМ1, 2, 2а, 3, 3а, 4, 5, 5а, 6, 7, 8, 9, 9а. Сечения Схема расположения плит перекрытия на отм. 4.930. Балки монолитные. Сечения. Расчетные схемы. Спецификации Схема расположения плит перекрытия на отм. 4.930. Спецификация к монолитным балкам Схема расположения плит перекрытия на отм. 4.930. Участки монолитные Ум1 - Ум3; Ум9. Сечения 1-1 - 6-6 Схема расположения плит перекрытия на отм. 4.930. Участки монолитные Ум4 - Ум8а. Сечения 7-7 - 12-12 Схема расположения плит перекрытия на отм. 4.930. Участки монолитные Ум1 - Ум9. Спецификация Конструкции металлические Общие данные. Техническая спецификация стали Общие данные. Ведомость металлоконструкций по видам профилей Схема расположения подвесных путей в осях А - Д Зал фильтров. Перекрытие на отм. 4.930. Схема расположения балочной клетки. Фрагмент 1. Разрезы 1-1 - 3-3. Узел 1 Зал фильтров. Перекрытие на отм. 4.930. Схема расположения балочной клетки. Разрезы 4-4 - 10-10. Узлы 2 - 4 Зал фильтров. Перекрытие на отм. 4.930. Схема расположения балочной клетки. Разрезы 11-11 - 15-15. Узел 5 Зал фильтров. Перекрытие на отм. 4.930. Схема расположения балочной клетки. Узлы 7 - 10. Разрезы 16-16 - 20-20 Зал фильтров. Перекрытие на отм. 4.930. Схема расположения балочной клетки. Узлы 11 - 16. Разрезы 21-21 - 28-28 Зал фильтров. Схема расположения переходных площадок. Фрагмент 1. Узлы 18, 19 Зал фильтров. Схема расположения переходных площадок. Фрагменты 2, 3, 4. Узел 20 Зал фильтров. Схема расположения переходных площадок. Фрагмент 5. Узлы 22-22 - 25-25 Зал фильтров. Схема расположения переходных площадок. Металлические опоры ОС1 - ОС4. Узел 17 Схема расположения площадок на отм. 2.500; 6.700 и пожарной лестницы Схема расположения переходных площадок и ограждений на отм. 3.800 и 5.350 Отстойники. Схема расположения перегородок. Виды. Узлы. Сечения Схема расположения подвесного пути в осях Е - Д. Организация строительства Организация строительства Схема монтажа сборных ж/б конструкций сооружения График производства работ | Разработан: | ЦНИИЭП инженерного оборудования
| Утверждён: | 13.02.1985 Госгражданстрой (Gosgrazhdanstroy 43)
| Расположен в: |
| Заменяет собой: | |
                                                                                                        
|