Информационная система
«Ёшкин Кот»

Скачать базу одним архивом
Скачать обновления
История создания базы
Карта сайта

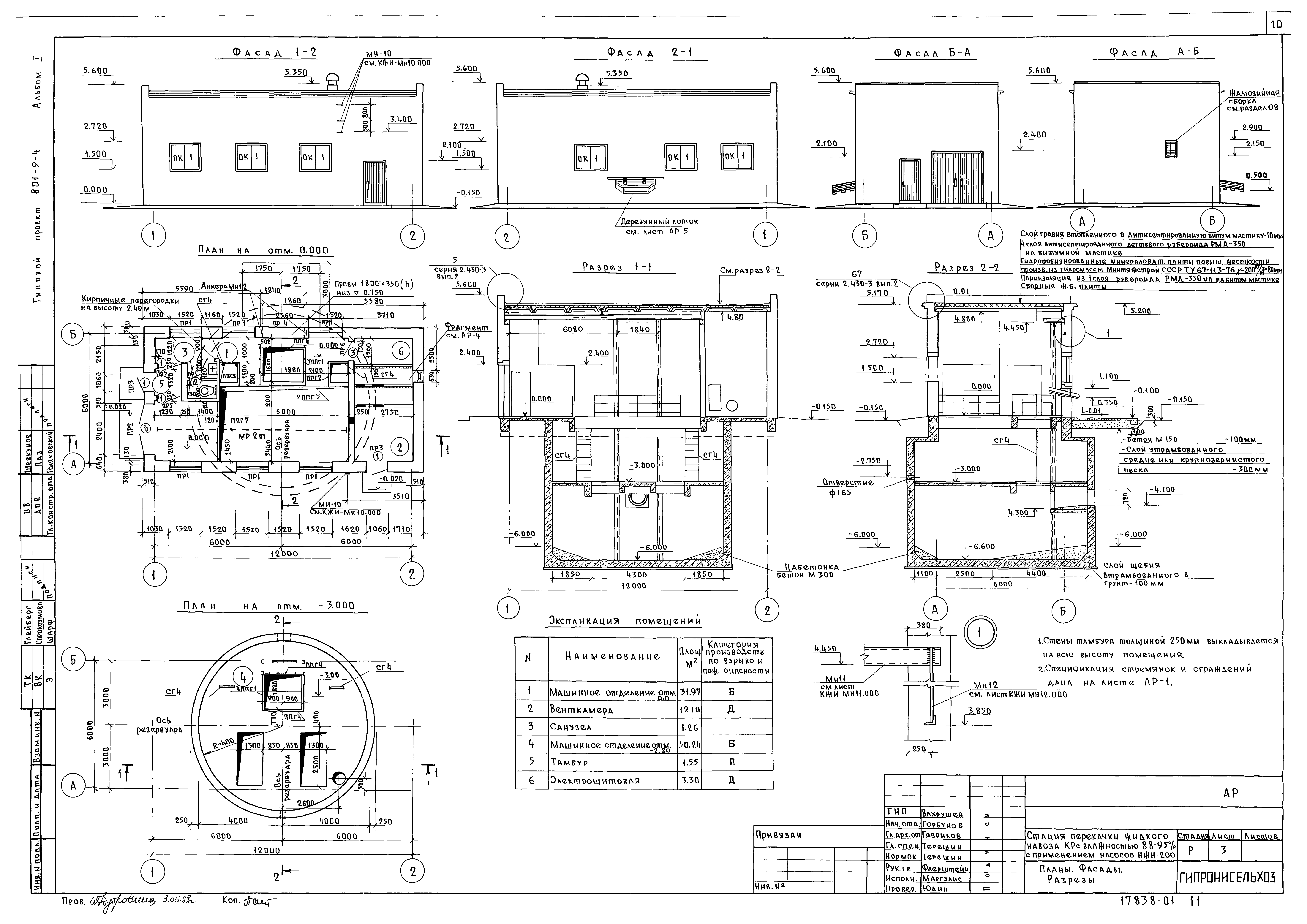
Скачать Типовой проект 801-9-4 Альбом I. Пояснительная записка. Технология производства. Архитектурные решения. Конструкции железобетонные и металлические. Отопление и вентиляция. Внутренние водопровод и канализация. Электротехнические чертежи. Автоматизация отопления и вентиляции

Дата актуализации: 10.08.2017

Типовой проект 801-9-4

Альбом I. Пояснительная записка. Технология производства. Архитектурные решения. Конструкции железобетонные и металлические. Отопление и вентиляция. Внутренние водопровод и канализация. Электротехнические чертежи. Автоматизация отопления и вентиляции

Обозначение: Типовой проект 801-9-4
Обозначение англ: 801-9-4
Статус:не определен законодательством
Название рус.:Альбом I. Пояснительная записка. Технология производства. Архитектурные решения. Конструкции железобетонные и металлические. Отопление и вентиляция. Внутренние водопровод и канализация. Электротехнические чертежи. Автоматизация отопления и вентиляции
Дата добавления в базу:21.05.2015
Дата актуализации:05.05.2017
Дата введения:17.09.1981
Разработан: ГипроНИсельхоз (Институт Гипронисельхоз )
Утверждён:28.07.1981 Минсельхоз СССР (USSR Minselkhoz 282)
Расположен в:Техническая документация Строительство Справочные документы Типовые строительные конструкции, изделия и узлы Общероссийский строительный каталог Сельскохозяйственные предприятия, здания и сооружения Здания и сооружения по транспортировке, очистке и хранению навоза
Типовой проект 801-9-4Типовой проект 801-9-4Типовой проект 801-9-4Типовой проект 801-9-4Типовой проект 801-9-4Типовой проект 801-9-4Типовой проект 801-9-4Типовой проект 801-9-4Типовой проект 801-9-4Типовой проект 801-9-4Типовой проект 801-9-4Типовой проект 801-9-4Типовой проект 801-9-4Типовой проект 801-9-4Типовой проект 801-9-4Типовой проект 801-9-4Типовой проект 801-9-4Типовой проект 801-9-4Типовой проект 801-9-4Типовой проект 801-9-4Типовой проект 801-9-4Типовой проект 801-9-4Типовой проект 801-9-4Типовой проект 801-9-4Типовой проект 801-9-4Типовой проект 801-9-4Типовой проект 801-9-4Типовой проект 801-9-4Типовой проект 801-9-4Типовой проект 801-9-4Типовой проект 801-9-4Типовой проект 801-9-4Типовой проект 801-9-4Типовой проект 801-9-4Типовой проект 801-9-4Типовой проект 801-9-4

© 2013 Ёшкин Кот :-) Карта сайта