Информационная система
«Ёшкин Кот»

Скачать базу одним архивом
Скачать обновления
История создания базы
Карта сайта

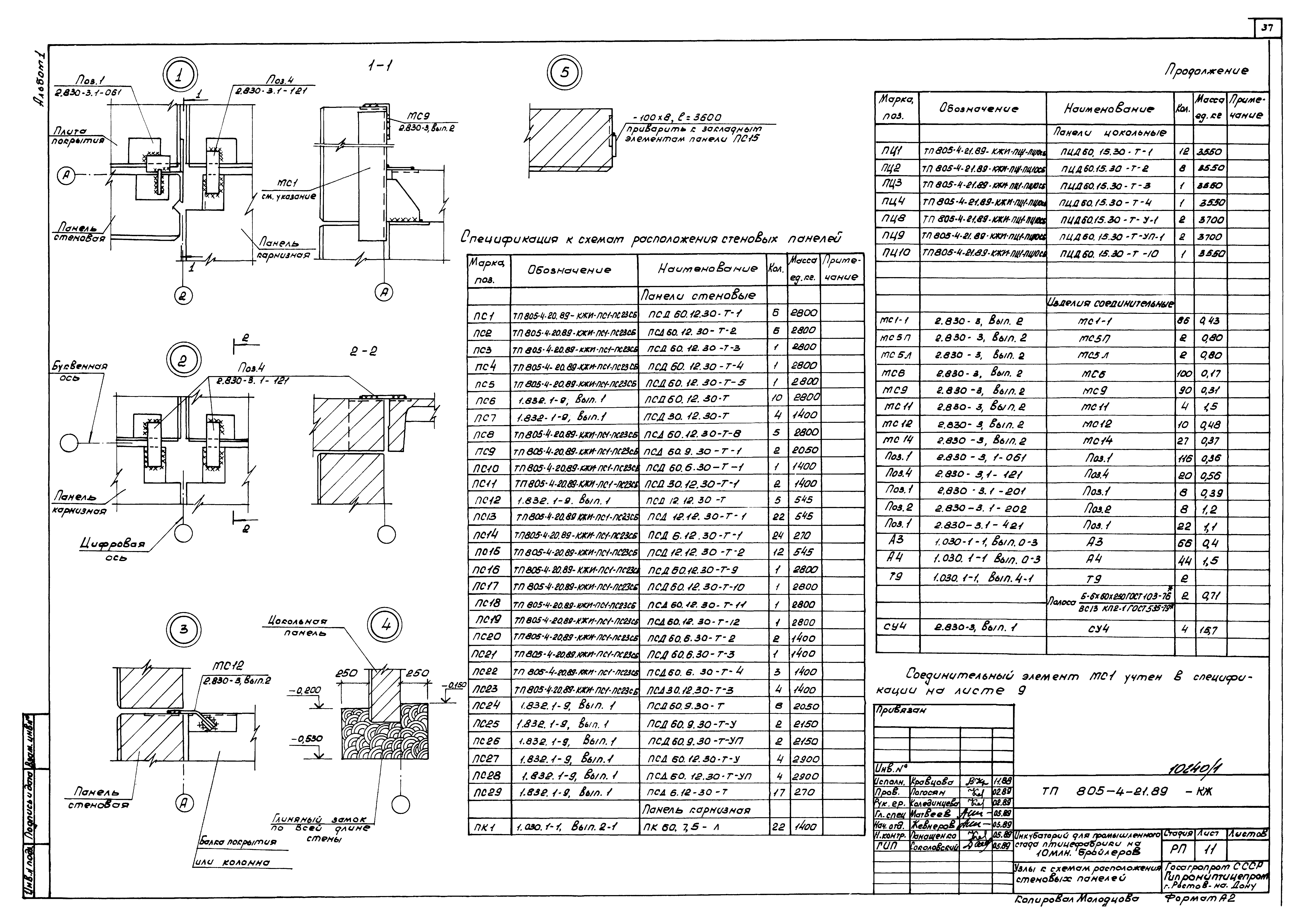
Скачать Типовой проект 805-4-21.89 Альбом 1. Общая пояснительная записка. Технология производства. Архитектурные решения. Конструкции железобетонные

Дата актуализации: 10.08.2017

Типовой проект 805-4-21.89

Альбом 1. Общая пояснительная записка. Технология производства. Архитектурные решения. Конструкции железобетонные

Обозначение: Типовой проект 805-4-21.89
Обозначение англ: 805-4-21.89
Статус:не определен законодательством
Название рус.:Альбом 1. Общая пояснительная записка. Технология производства. Архитектурные решения. Конструкции железобетонные
Дата добавления в базу:21.05.2015
Дата актуализации:05.05.2017
Дата введения:09.08.1989
Разработан: Гипрониптицепром
Утверждён:09.08.1989 Гипрониптицепром (15-ТП)
Издан: ЦИТП Госстроя СССР (CITP, Gosstroy (USSR) 1989 г. )
Расположен в:Техническая документация Строительство Справочные документы Типовые строительные конструкции, изделия и узлы Общероссийский строительный каталог Сельскохозяйственные предприятия, здания и сооружения Предприятия, здания и сооружения птицеводческие Здания и сооружения Инкубатории и яйцесклады
Типовой проект 805-4-21.89Типовой проект 805-4-21.89Типовой проект 805-4-21.89Типовой проект 805-4-21.89Типовой проект 805-4-21.89Типовой проект 805-4-21.89Типовой проект 805-4-21.89Типовой проект 805-4-21.89Типовой проект 805-4-21.89Типовой проект 805-4-21.89Типовой проект 805-4-21.89Типовой проект 805-4-21.89Типовой проект 805-4-21.89Типовой проект 805-4-21.89Типовой проект 805-4-21.89Типовой проект 805-4-21.89Типовой проект 805-4-21.89Типовой проект 805-4-21.89Типовой проект 805-4-21.89Типовой проект 805-4-21.89Типовой проект 805-4-21.89Типовой проект 805-4-21.89Типовой проект 805-4-21.89Типовой проект 805-4-21.89Типовой проект 805-4-21.89Типовой проект 805-4-21.89Типовой проект 805-4-21.89Типовой проект 805-4-21.89Типовой проект 805-4-21.89Типовой проект 805-4-21.89Типовой проект 805-4-21.89Типовой проект 805-4-21.89Типовой проект 805-4-21.89Типовой проект 805-4-21.89Типовой проект 805-4-21.89Типовой проект 805-4-21.89Типовой проект 805-4-21.89Типовой проект 805-4-21.89Типовой проект 805-4-21.89Типовой проект 805-4-21.89Типовой проект 805-4-21.89Типовой проект 805-4-21.89Типовой проект 805-4-21.89Типовой проект 805-4-21.89

© 2013 Ёшкин Кот :-) Карта сайта