Информационная система
«Ёшкин Кот»

Скачать базу одним архивом
Скачать обновления
История создания базы
Карта сайта

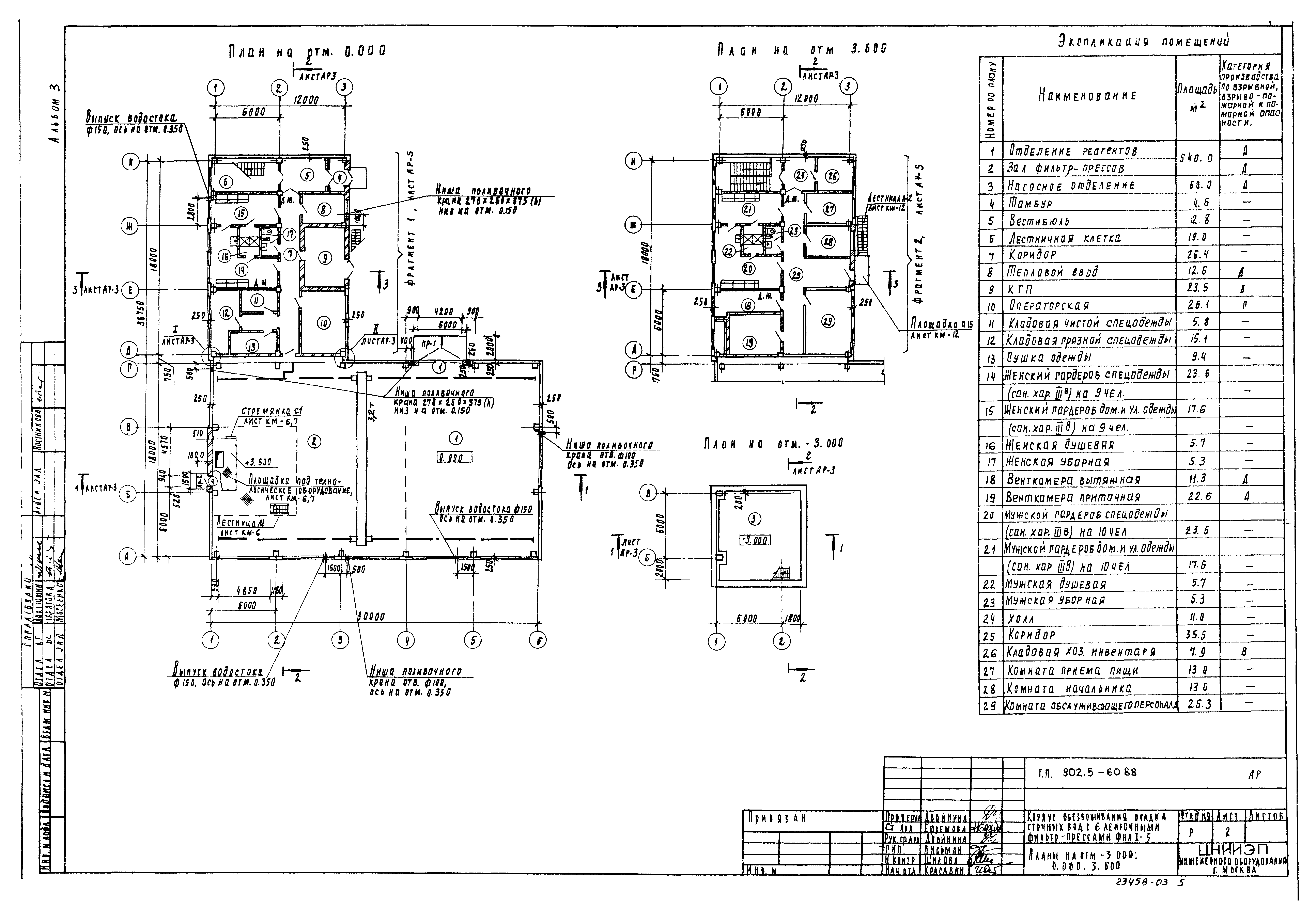
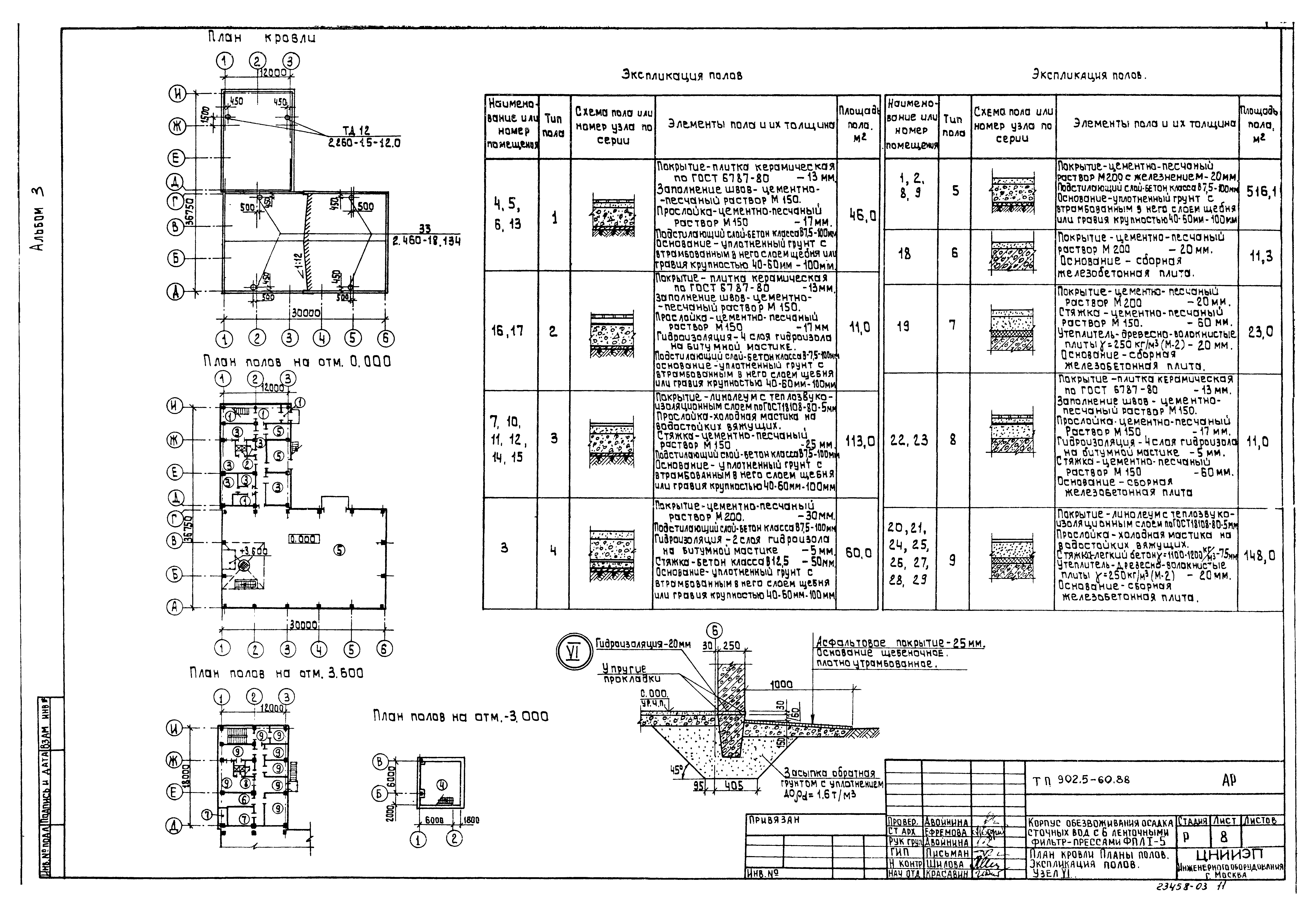
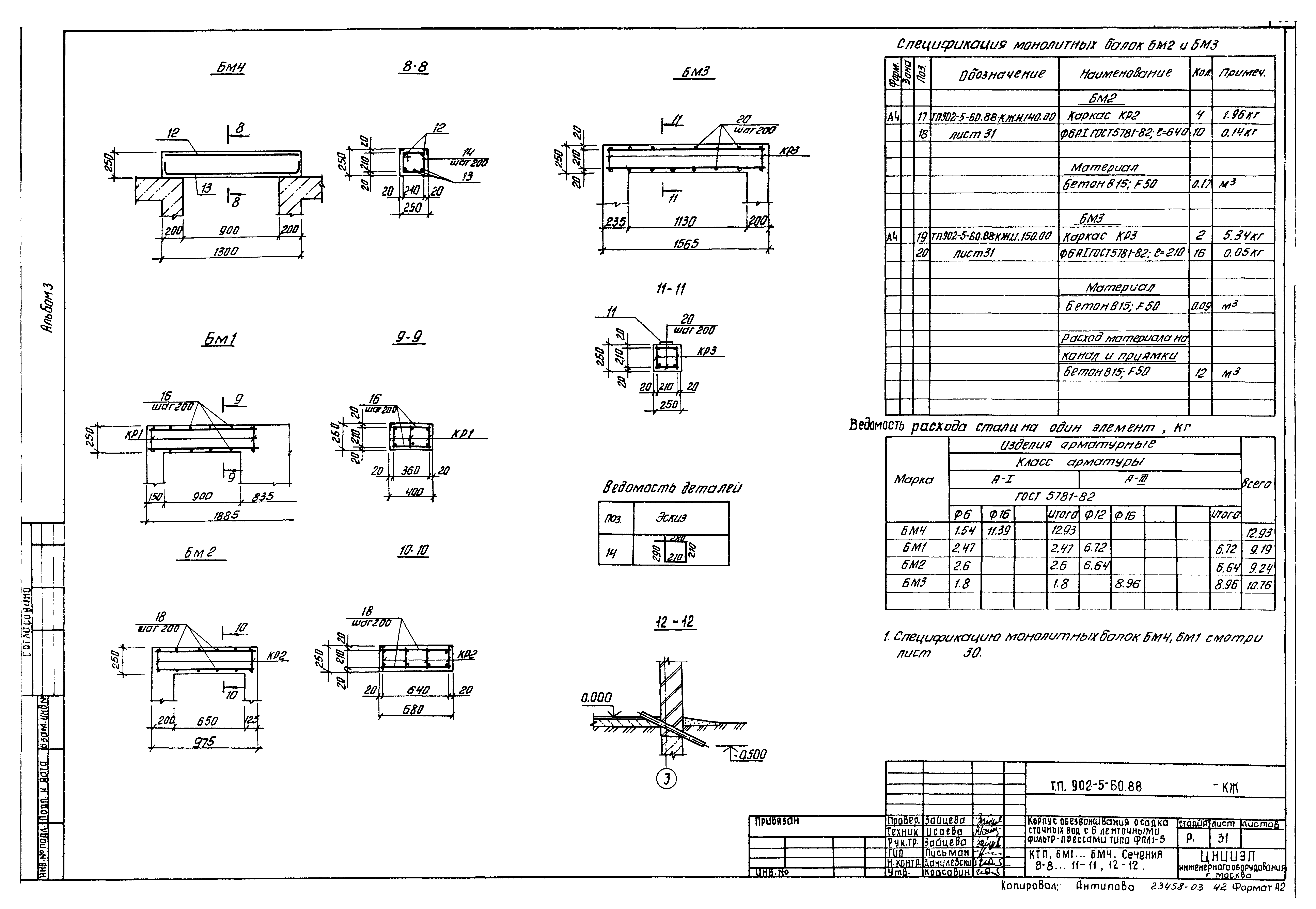
Скачать Типовой проект 902-5-60.88 Альбом 3. Архитектурные решения. Конструкции железобетонные. Конструкции металлические. Организация строительства

Дата актуализации: 10.08.2017

Типовой проект 902-5-60.88

Альбом 3. Архитектурные решения. Конструкции железобетонные. Конструкции металлические. Организация строительства

Обозначение: Типовой проект 902-5-60.88
Обозначение англ: 902-5-60.88
Статус:не определен законодательством
Название рус.:Альбом 3. Архитектурные решения. Конструкции железобетонные. Конструкции металлические. Организация строительства
Дата добавления в базу:21.05.2015
Дата актуализации:05.05.2017
Дата введения:28.07.1988
Разработан: ЦНИИЭП инженерного оборудования
Утверждён:28.07.1988 Госкомархитектура (221)
Издан: ЦИТП Госстроя СССР (CITP, Gosstroy (USSR) 1989 г. )
Расположен в:Техническая документация Строительство Справочные документы Типовые строительные конструкции, изделия и узлы Общероссийский строительный каталог Промышленные предприятия, здания и сооружения Здания и сооружения санитарно-технические Канализация Сооружения для очистки производственных сточных вод Сооружения для обработки осадка
Нормативные ссылки:
Типовой проект 902-5-60.88Типовой проект 902-5-60.88Типовой проект 902-5-60.88Типовой проект 902-5-60.88Типовой проект 902-5-60.88Типовой проект 902-5-60.88Типовой проект 902-5-60.88Типовой проект 902-5-60.88Типовой проект 902-5-60.88Типовой проект 902-5-60.88Типовой проект 902-5-60.88Типовой проект 902-5-60.88Типовой проект 902-5-60.88Типовой проект 902-5-60.88Типовой проект 902-5-60.88Типовой проект 902-5-60.88Типовой проект 902-5-60.88Типовой проект 902-5-60.88Типовой проект 902-5-60.88Типовой проект 902-5-60.88Типовой проект 902-5-60.88Типовой проект 902-5-60.88Типовой проект 902-5-60.88Типовой проект 902-5-60.88Типовой проект 902-5-60.88Типовой проект 902-5-60.88Типовой проект 902-5-60.88Типовой проект 902-5-60.88Типовой проект 902-5-60.88Типовой проект 902-5-60.88Типовой проект 902-5-60.88Типовой проект 902-5-60.88Типовой проект 902-5-60.88Типовой проект 902-5-60.88Типовой проект 902-5-60.88Типовой проект 902-5-60.88Типовой проект 902-5-60.88Типовой проект 902-5-60.88Типовой проект 902-5-60.88Типовой проект 902-5-60.88Типовой проект 902-5-60.88Типовой проект 902-5-60.88Типовой проект 902-5-60.88Типовой проект 902-5-60.88Типовой проект 902-5-60.88Типовой проект 902-5-60.88Типовой проект 902-5-60.88Типовой проект 902-5-60.88Типовой проект 902-5-60.88Типовой проект 902-5-60.88Типовой проект 902-5-60.88Типовой проект 902-5-60.88Типовой проект 902-5-60.88Типовой проект 902-5-60.88Типовой проект 902-5-60.88Типовой проект 902-5-60.88

© 2013 Ёшкин Кот :-) Карта сайта