Информационная система
«Ёшкин Кот»

Скачать базу одним архивом
Скачать обновления
История создания базы
Карта сайта

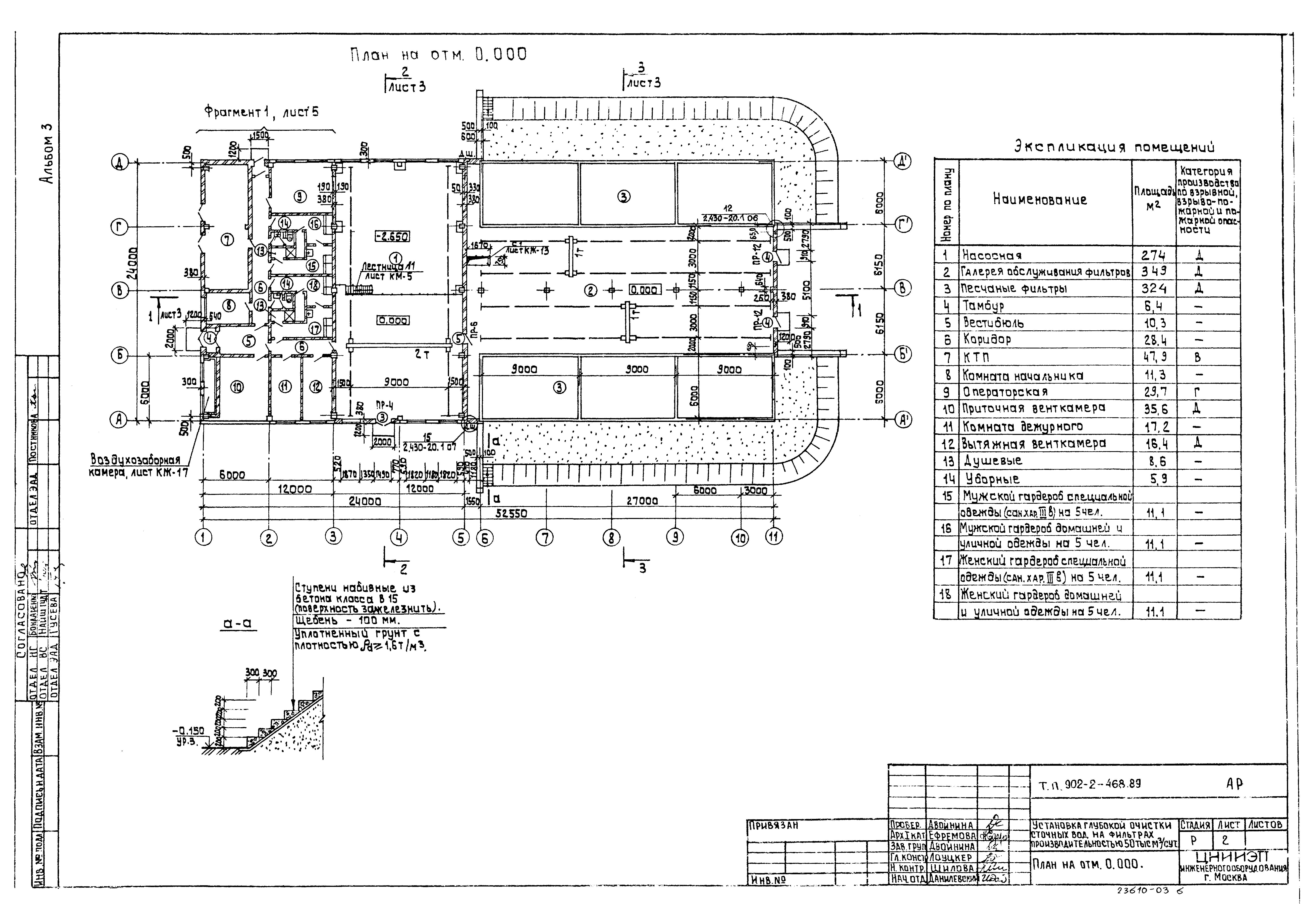
Скачать Типовой проект 902-2-468.89 Альбом 3. Архитектурно-строительные решения. Конструкции железобетонные. Конструкции металлические. Генплан

Дата актуализации: 10.08.2017

Типовой проект 902-2-468.89

Альбом 3. Архитектурно-строительные решения. Конструкции железобетонные. Конструкции металлические. Генплан

Обозначение: Типовой проект 902-2-468.89
Обозначение англ: 902-2-468.89
Статус:не определен законодательством
Название рус.:Альбом 3. Архитектурно-строительные решения. Конструкции железобетонные. Конструкции металлические. Генплан
Дата добавления в базу:21.05.2015
Дата актуализации:05.05.2017
Дата введения:21.11.1988
Разработан: ЦНИИЭП инженерного оборудования
Утверждён:21.11.1988 Госкомархитектура (309)
Издан: ЦИТП Госстроя СССР (CITP, Gosstroy (USSR) 1989 г. )
Расположен в:Техническая документация Строительство Справочные документы Типовые строительные конструкции, изделия и узлы Общероссийский строительный каталог Промышленные предприятия, здания и сооружения Здания и сооружения санитарно-технические Канализация Сооружения доочистки Установки очистные и контактные резервуары
Типовой проект 902-2-468.89Типовой проект 902-2-468.89Типовой проект 902-2-468.89Типовой проект 902-2-468.89Типовой проект 902-2-468.89Типовой проект 902-2-468.89Типовой проект 902-2-468.89Типовой проект 902-2-468.89Типовой проект 902-2-468.89Типовой проект 902-2-468.89Типовой проект 902-2-468.89Типовой проект 902-2-468.89Типовой проект 902-2-468.89Типовой проект 902-2-468.89Типовой проект 902-2-468.89Типовой проект 902-2-468.89Типовой проект 902-2-468.89Типовой проект 902-2-468.89Типовой проект 902-2-468.89Типовой проект 902-2-468.89Типовой проект 902-2-468.89Типовой проект 902-2-468.89Типовой проект 902-2-468.89Типовой проект 902-2-468.89Типовой проект 902-2-468.89Типовой проект 902-2-468.89Типовой проект 902-2-468.89Типовой проект 902-2-468.89Типовой проект 902-2-468.89Типовой проект 902-2-468.89Типовой проект 902-2-468.89Типовой проект 902-2-468.89Типовой проект 902-2-468.89Типовой проект 902-2-468.89Типовой проект 902-2-468.89Типовой проект 902-2-468.89Типовой проект 902-2-468.89Типовой проект 902-2-468.89Типовой проект 902-2-468.89Типовой проект 902-2-468.89Типовой проект 902-2-468.89Типовой проект 902-2-468.89Типовой проект 902-2-468.89Типовой проект 902-2-468.89Типовой проект 902-2-468.89Типовой проект 902-2-468.89Типовой проект 902-2-468.89Типовой проект 902-2-468.89Типовой проект 902-2-468.89Типовой проект 902-2-468.89Типовой проект 902-2-468.89Типовой проект 902-2-468.89

© 2013 Ёшкин Кот :-) Карта сайта