Информационная система
«Ёшкин Кот»

Скачать базу одним архивом
Скачать обновления
История создания базы
Карта сайта

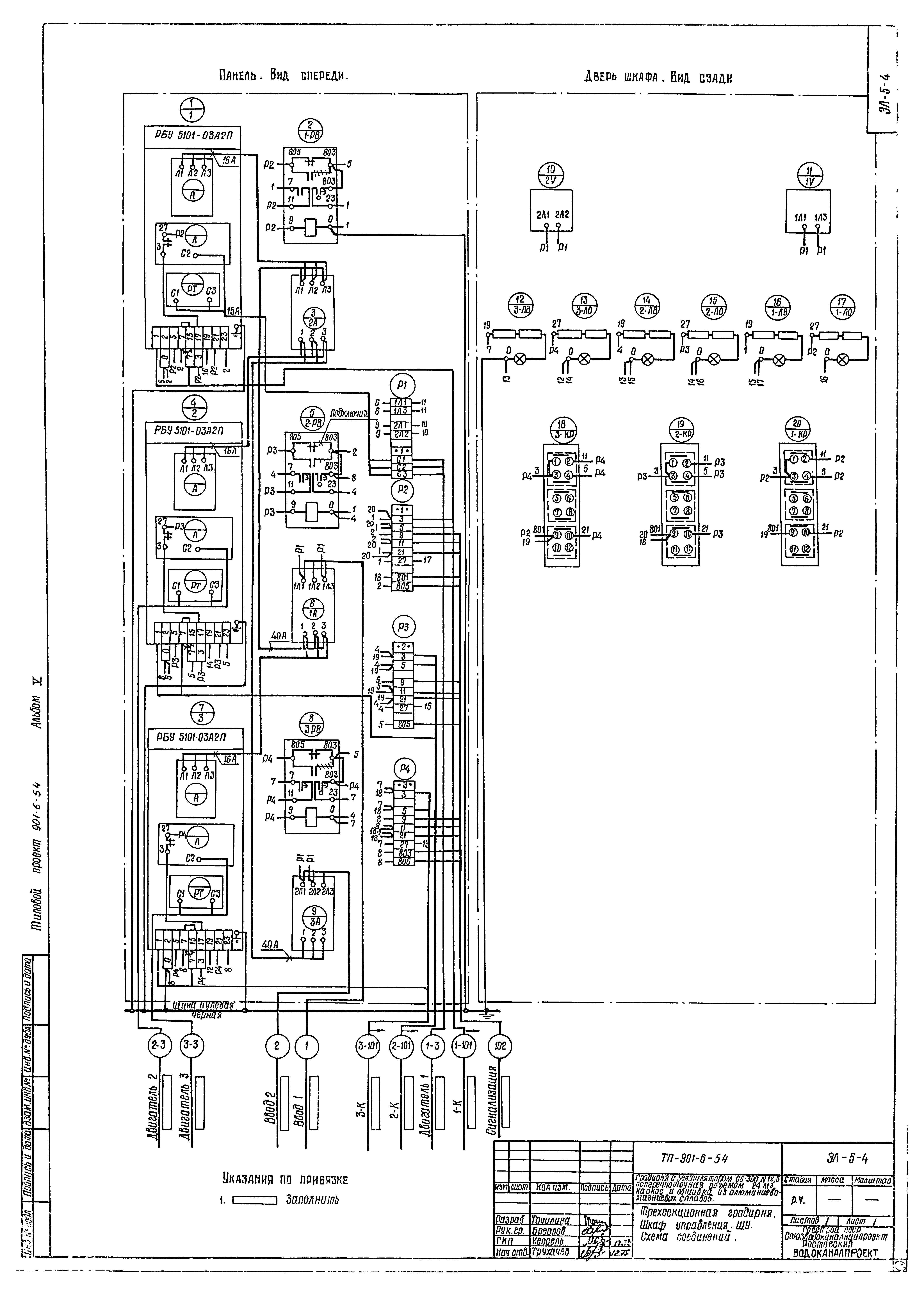
Скачать Типовой проект 901-6-54 Альбом V. Трехсекционная градирня. Электротехническая часть

Дата актуализации: 10.08.2017

Типовой проект 901-6-54

Альбом V. Трехсекционная градирня. Электротехническая часть

Обозначение: Типовой проект 901-6-54
Обозначение англ: 901-6-54
Статус:отменен
Название рус.:Альбом V. Трехсекционная градирня. Электротехническая часть
Дата добавления в базу:21.05.2015
Дата актуализации:05.05.2017
Дата введения:01.07.1996
Разработан: Союзводоканалпроект
ЦНИИпроектстальконструкция
Утверждён:20.12.1976 Главпромстройпроект Госстроя СССР (90)
Издан: ЦИТП Госстроя СССР (CITP, Gosstroy (USSR) 1978 г. )
Расположен в:Техническая документация Строительство Справочные документы Типовые строительные конструкции, изделия и узлы Общероссийский строительный каталог Промышленные предприятия, здания и сооружения Здания и сооружения санитарно-технические Водоснабжение Градирни
Типовой проект 901-6-54Типовой проект 901-6-54Типовой проект 901-6-54Типовой проект 901-6-54Типовой проект 901-6-54Типовой проект 901-6-54Типовой проект 901-6-54Типовой проект 901-6-54Типовой проект 901-6-54Типовой проект 901-6-54

© 2013 Ёшкин Кот :-) Карта сайта