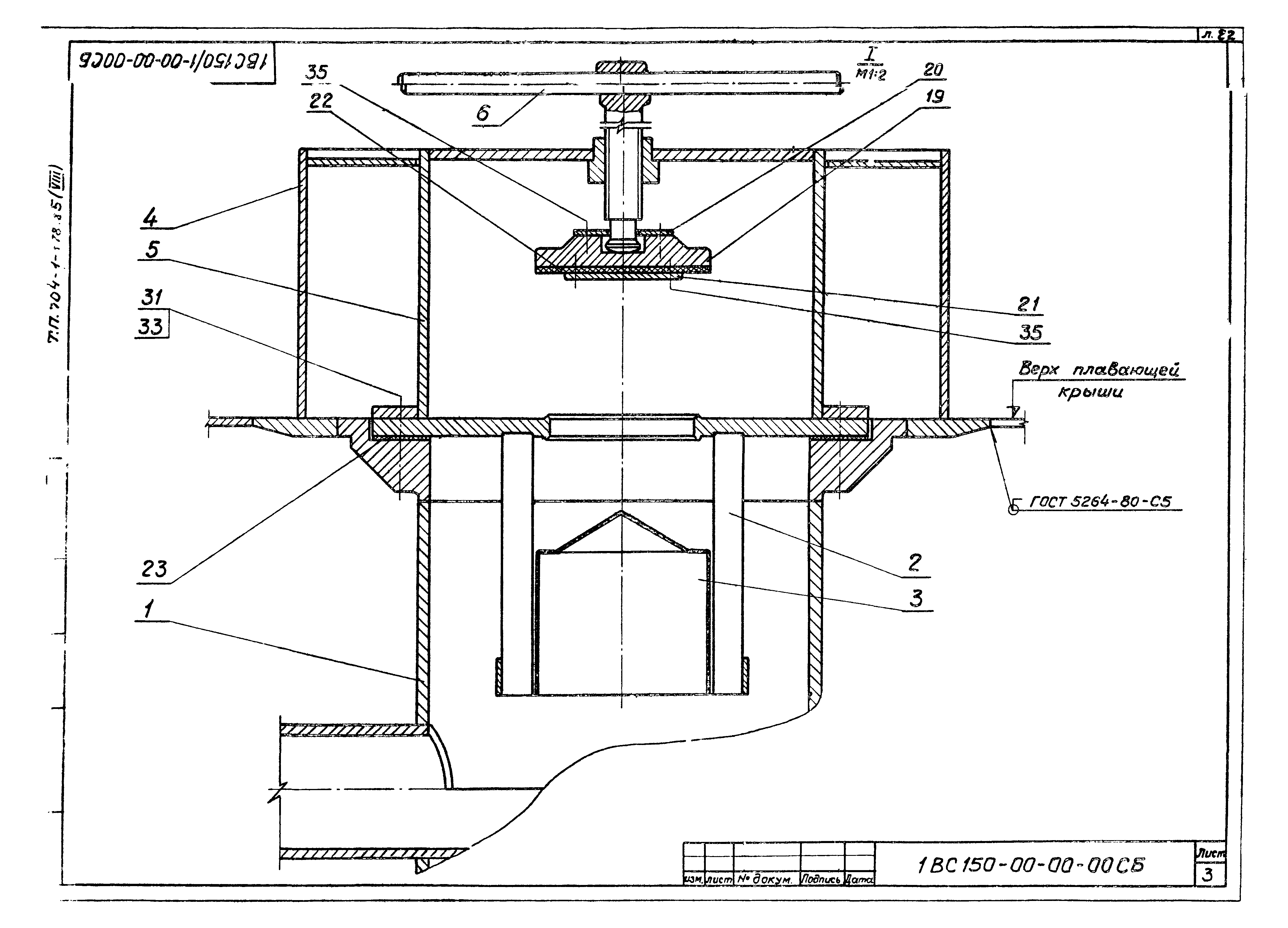
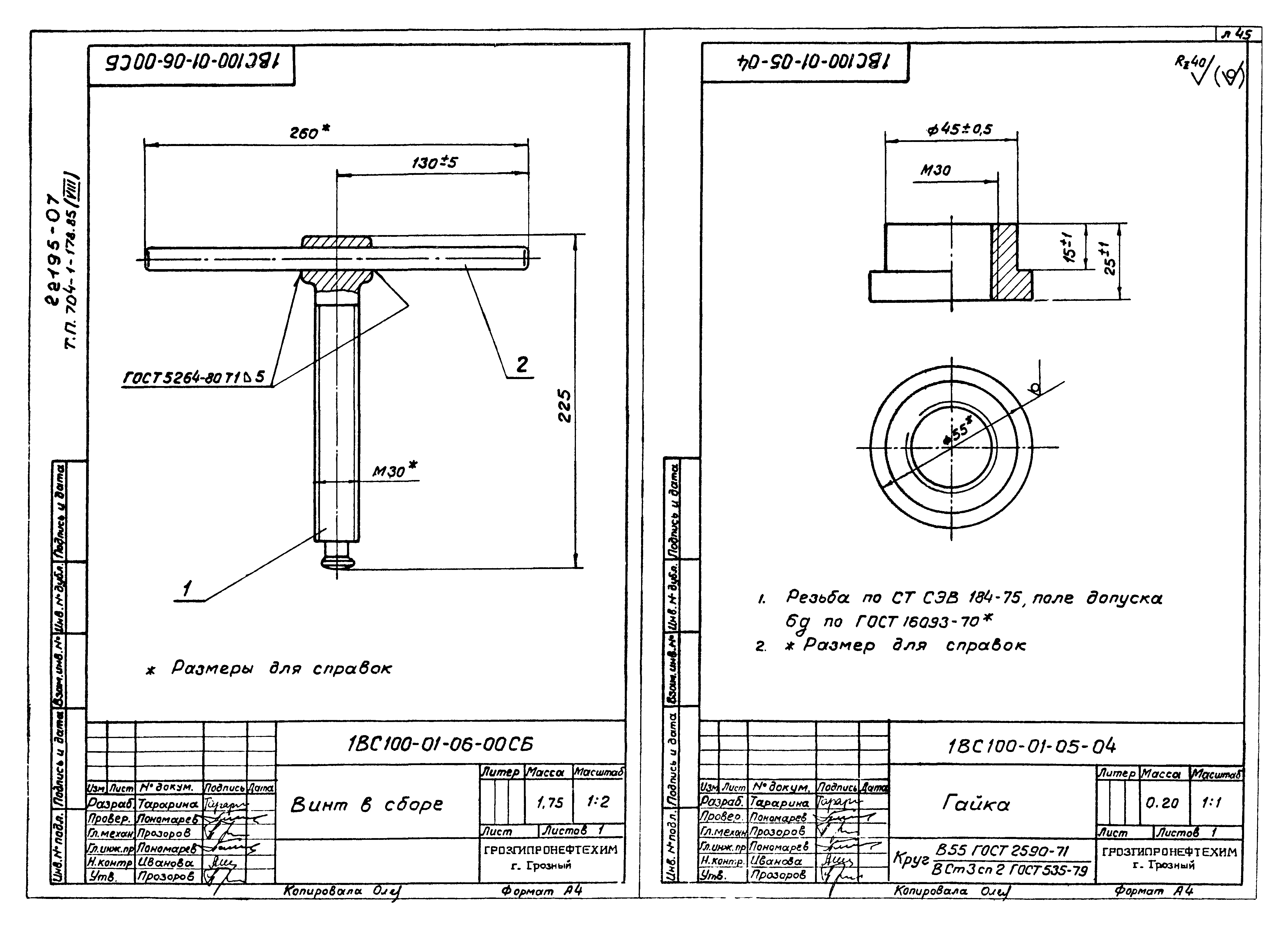
Скачать Типовой проект 704-1-178.85 Альбом VIII. Устройство для отвода ливневых вод с плавающих крыш резервуаров емкостью 10, 20 и 40 тыс. куб. м (водоспуск)Дата актуализации: 10.08.2017 Типовой проект 704-1-178.85
Альбом VIII. Устройство для отвода ливневых вод с плавающих крыш резервуаров емкостью 10, 20 и 40 тыс. куб. м (водоспуск)Обозначение: | Типовой проект 704-1-178.85 | Обозначение англ: | 704-1-178.85 | Статус: | действует | Название рус.: | Альбом VIII. Устройство для отвода ливневых вод с плавающих крыш резервуаров емкостью 10, 20 и 40 тыс. куб. м (водоспуск) | Дата добавления в базу: | 21.05.2015 | Дата актуализации: | 05.05.2017 | Разработан: | Грозгипронефтехим
| Утверждён: | 07.06.1984 Миннефтехимпром СССР (USSR Minneftekhimprom 20/1077-б)
| Расположен в: |
|
                                                                         
|