Скачать Серия КЭ-01-07 Выпуск 4. Колонны двухветвевые безраскосные с нагрузкой от кранов 30 и 50 тонн с шагом для наружных рядов 6 м и для внутренних рядов 12 м (для II-го географического района ветровой нагрузки)Дата актуализации: 10.08.2017 Серия КЭ-01-07
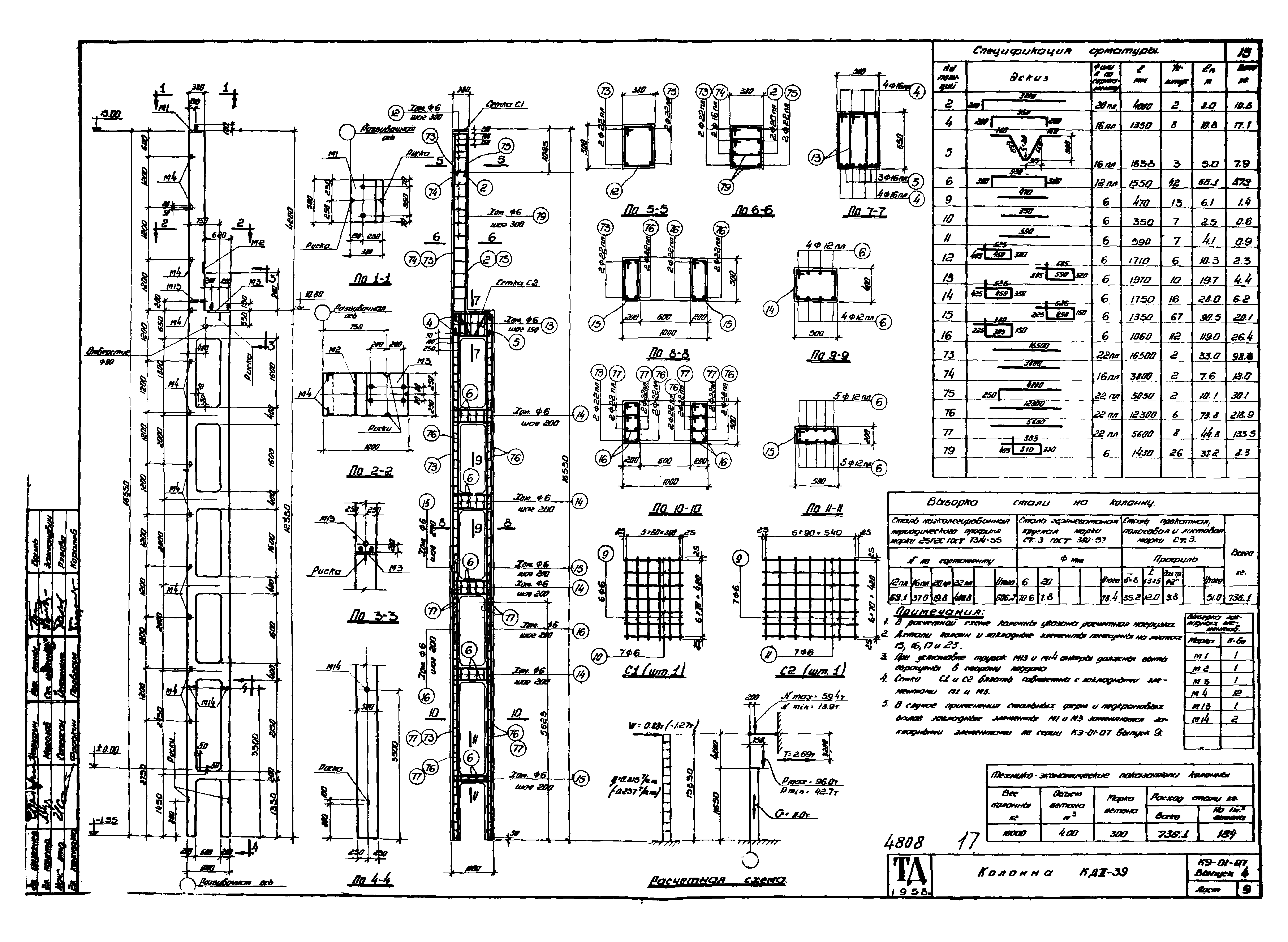
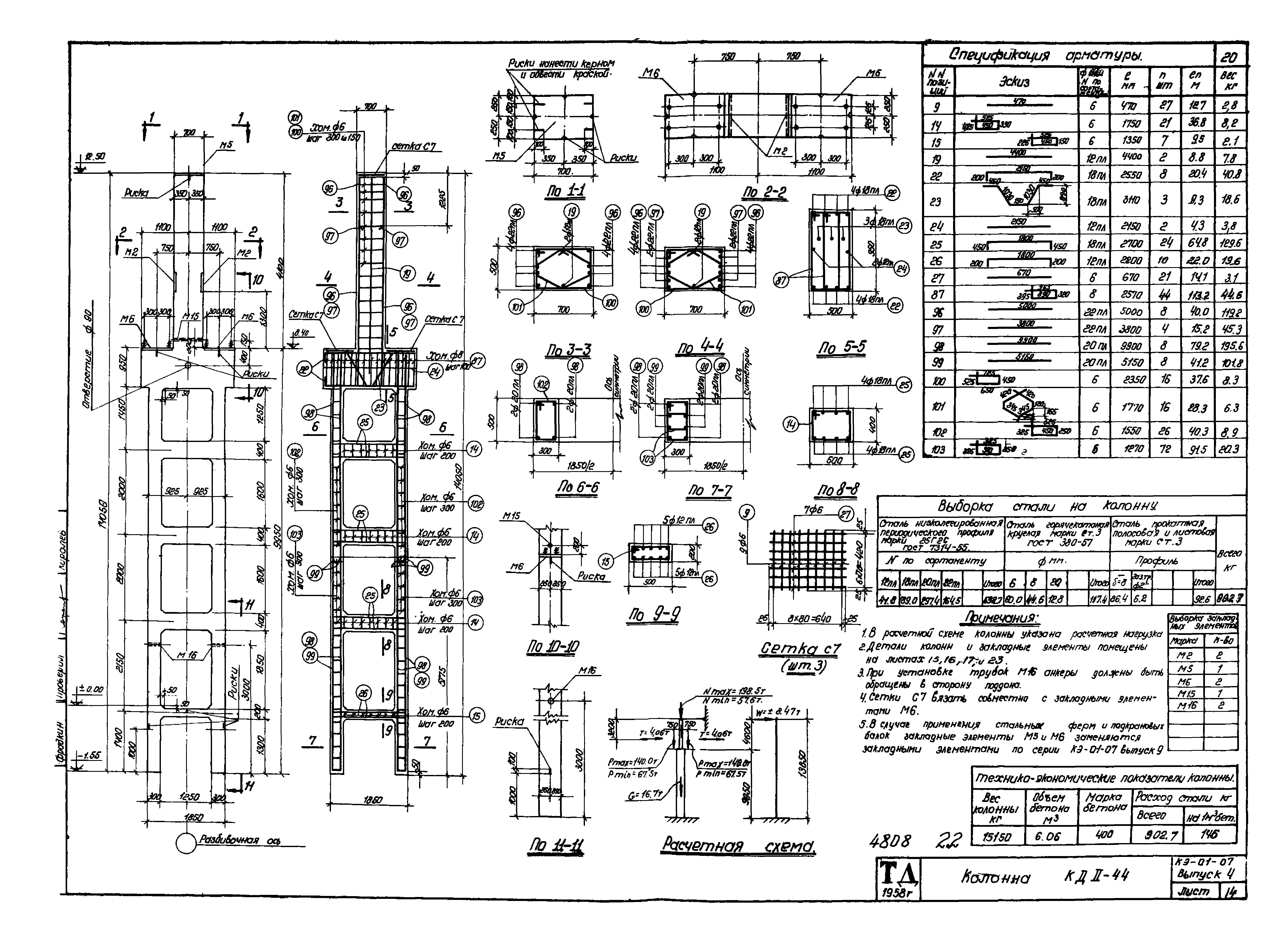
Выпуск 4. Колонны двухветвевые безраскосные с нагрузкой от кранов 30 и 50 тонн с шагом для наружных рядов 6 м и для внутренних рядов 12 м (для II-го географического района ветровой нагрузки)Обозначение: | Серия КЭ-01-07 | Обозначение англ: | Series КЭ-01-07 | Статус: | действует | Название рус.: | Выпуск 4. Колонны двухветвевые безраскосные с нагрузкой от кранов 30 и 50 тонн с шагом для наружных рядов 6 м и для внутренних рядов 12 м (для II-го географического района ветровой нагрузки) | Дата добавления в базу: | 21.05.2015 | Дата актуализации: | 05.05.2017 | Разработан: | Государственный Проектный Институт №6
| Утверждён: | 01.01.1958 Государственный комитет Совета Министров СССР по делам строительства
| Расположен в: |
|
                                       
|