Информационная система
«Ёшкин Кот»

Скачать базу одним архивом
Скачать обновления
История создания базы
Карта сайта

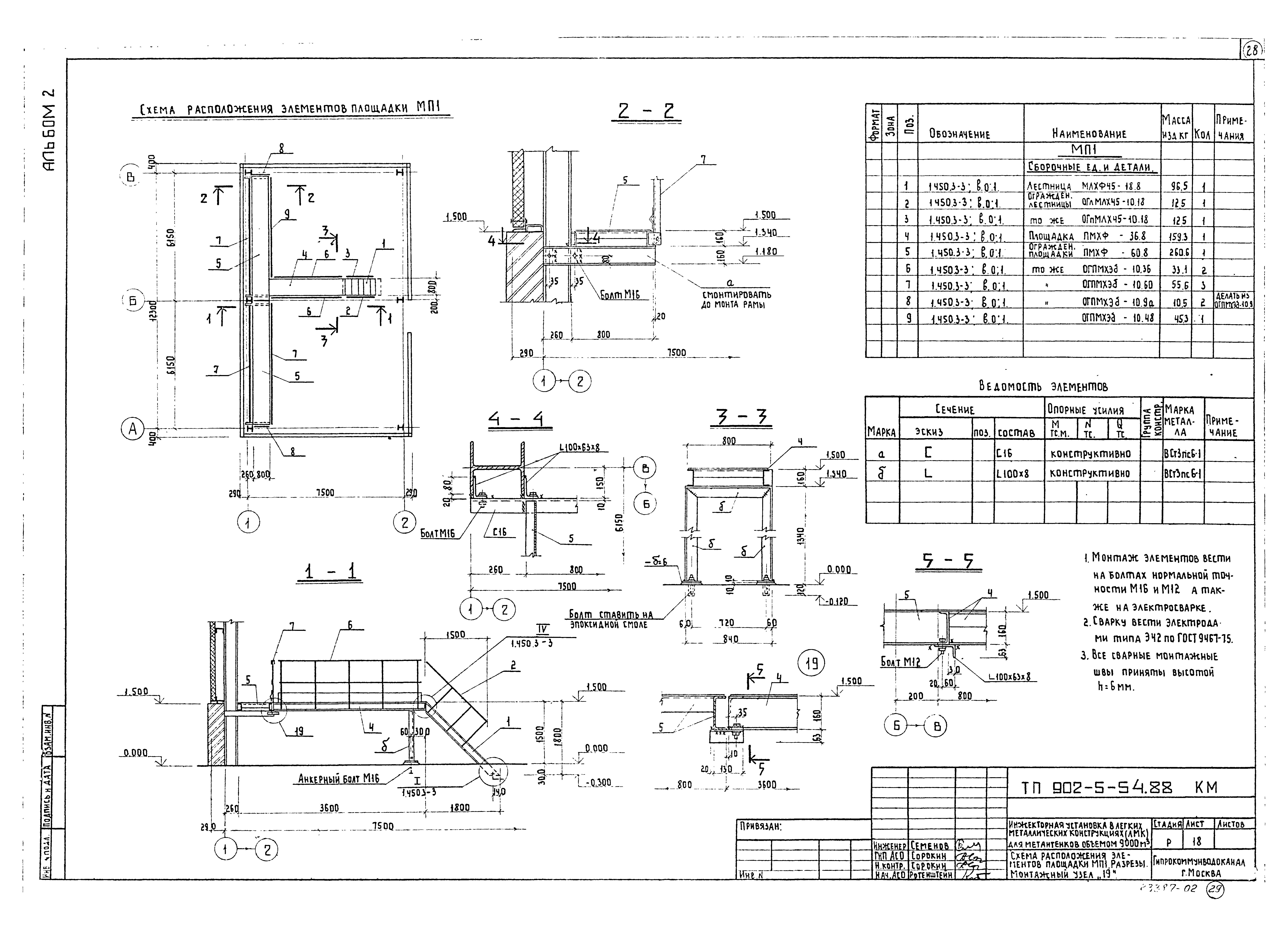
Скачать Типовой проект 902-5-53.88 Альбом 2. Архитектурные решения. Конструкции железобетонные. Конструкции металлические (из ТП 902-5-54.88)

Дата актуализации: 10.08.2017

Типовой проект 902-5-53.88

Альбом 2. Архитектурные решения. Конструкции железобетонные. Конструкции металлические (из ТП 902-5-54.88)

Обозначение: Типовой проект 902-5-53.88
Обозначение англ: 902-5-53.88
Статус:не определен законодательством
Название рус.:Альбом 2. Архитектурные решения. Конструкции железобетонные. Конструкции металлические (из ТП 902-5-54.88)
Дата добавления в базу:21.05.2015
Дата актуализации:05.05.2017
Дата введения:09.02.1989
Разработан: Гипрокоммунводоканал Минжилкомхоза РСФСР
Утверждён:07.09.1988 МЖКХ РСФСР (232)
Издан: ЦИТП Госстроя СССР (CITP, Gosstroy (USSR) 1988 г. )
Расположен в:Техническая документация Строительство Справочные документы Типовые строительные конструкции, изделия и узлы Общероссийский строительный каталог Промышленные предприятия, здания и сооружения Здания и сооружения санитарно-технические Канализация Сооружения для очистки производственных сточных вод Сооружения для обработки осадка
Типовой проект 902-5-53.88Типовой проект 902-5-53.88Типовой проект 902-5-53.88Типовой проект 902-5-53.88Типовой проект 902-5-53.88Типовой проект 902-5-53.88Типовой проект 902-5-53.88Типовой проект 902-5-53.88Типовой проект 902-5-53.88Типовой проект 902-5-53.88Типовой проект 902-5-53.88Типовой проект 902-5-53.88Типовой проект 902-5-53.88Типовой проект 902-5-53.88Типовой проект 902-5-53.88Типовой проект 902-5-53.88Типовой проект 902-5-53.88Типовой проект 902-5-53.88Типовой проект 902-5-53.88Типовой проект 902-5-53.88Типовой проект 902-5-53.88Типовой проект 902-5-53.88Типовой проект 902-5-53.88Типовой проект 902-5-53.88Типовой проект 902-5-53.88Типовой проект 902-5-53.88Типовой проект 902-5-53.88Типовой проект 902-5-53.88Типовой проект 902-5-53.88

© 2013 Ёшкин Кот :-) Карта сайта